EasyManua.ls Logo

FLOWTECH flowpress WMDA - Installation; Pipe Connections; Typical Installation Diagram; Flow Restrictors (ECO & WMDA Models Only)

Default Icon
35 pages
Print Icon
To Next Page IconTo Next Page
To Next Page IconTo Next Page
To Previous Page IconTo Previous Page
To Previous Page IconTo Previous Page
Loading...
Installation
This pressurisation unit is not designed to be installed in an outdoor environment. The unit must be installed
in a frost free environment, away from precipitation and water sprays/jets. If there is a risk of flooding, the unit
must be installed on a raised plinth.
Please refer to the appropriate datasheet for the maximum working pressure and temperature of the
pressurisation unit. The conditions at the point of connection to the system must not exceed these values.
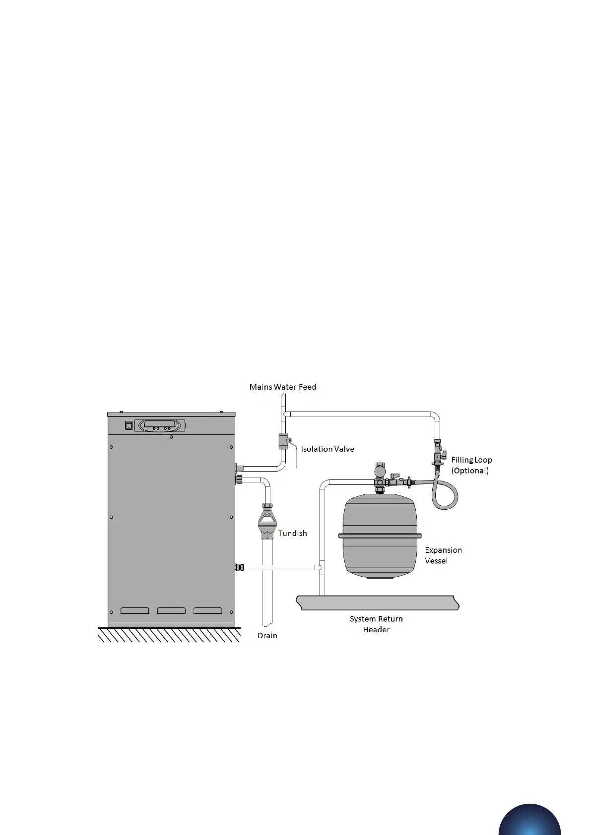
Pipe Connections
To avoid damaging the float valve, the mains water supply pipe must be flushed before connection to the
pressurisation unit.
All pipe connections must be made with appropriate jointing compound/PTFE tape. If PTFE tape is used, care
must be taken to ensure that the tape does not obstruct the orifice of the fiing.
Non-return valves, pressure reducing valves and RPZ valves must not be installed between the pressurisation
unit and the heating/cooling system. These devices will prevent the pressure sensor from reading the system
pressure.
The pressurisation unit and expansion vessel should be connected to the system at the same point, to
provide a neutral pressure reading. This point of connection should be in the system return, on the suction
side of the circulation pump.
Typical Installation Diagram
Flow Restrictors (ECO & WMDA Models Only)
Pressurisation equipment fied with a plastic, side-entry torbeck valve must be fied with a filter and –
depending on the mains water pressure – a flow restrictor. Failure to do this may result in damage to the
equipment.
Two dierent flow restrictors are supplied with the equipment, both of which include an integral filter. The
selection of the appropriate flow restrictor is based on the maximum mains water pressure at the point of
installation. Please refer to the following table for selection.
flowpress WMDA Pressurisation Units
9