EasyManua.ls Logo

Fluke CombiScope PM3380B - B Cross References

Fluke CombiScope PM3380B
297 pages
Print Icon
To Next Page IconTo Next Page
To Next Page IconTo Next Page
To Previous Page IconTo Previous Page
To Previous Page IconTo Previous Page
Loading...
CROSS REFERENCES B - 1
APPENDIX B CROSS REFERENCES
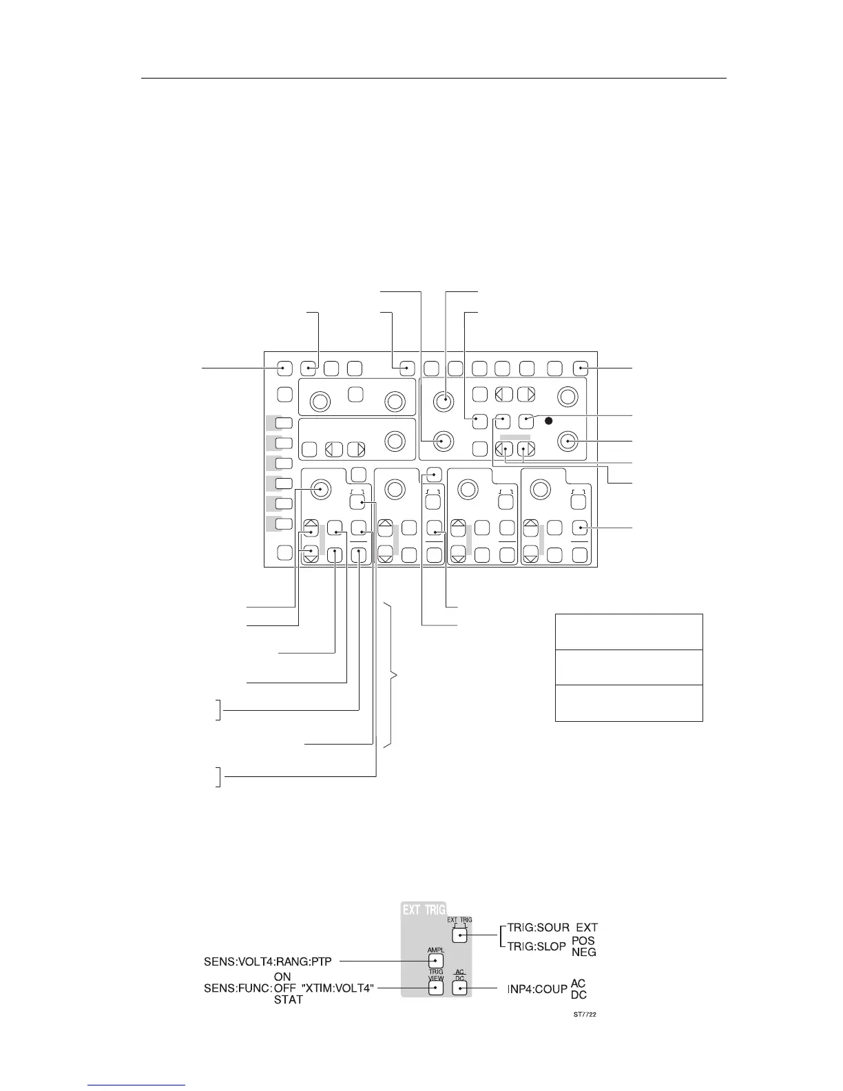
B.1 Cross Reference Front Panel Keys / Commands
The front panel picture is copied from the operation guide, showing the SCPI
commands corresponding to front panel keys.
AUTO
RANGE
AMPL
1
1
ST7431
CONF:AC (@n) HCOP:DATA?
TRIG:LEV
SENS:SWE:TIME
SENS:SWE:TIME:AUTO
INP4:POL
INIT:CONT
TRIG:HOLD
INIT
INP1:COUP
SENS:VOLT1:RANG:AUTO
ALSO FOR
CHANNEL 2, 3, AND 4
SENS:VOLT1:RANG:OFFS INP2:POL
SENS:AVERSENS:VOLT1:RANG:PTP
CAL?
CAL
DIG
ANAL
INST
SENS:SWE:OFFS:TIME
SENS:FUNC: "XTIM:VOLT1"
AC
DC
GRO
TRIG:SOUR
TRIG:SLOP
INT1
POS
NE
G
ON
OFF
STAT
SENS:FUNC: "XTIM:VOLT:SUM 1,2"
ON
OFF
STAT
2
3
4
5
6
234
ON
CURSORS
TEXT OFF
STATUS
AUTO SET ANOLOGCAL ACQUIR:SETUPS UTILITY MEASURE MATH DISPLAY HARD COPY
LOCAL
DELAYED TIME BASE
GND
VERT MENU AVERAGE
AC DC
mV
CH1+CH2
TRIG1
DTB s TIME/DIV ns
POS
AMPL
AUTO
RANGE
INV
ON GND
AC DC
mVmV
VV
TRIG2
POS
DELAY
TRIGGER
POSITION
TRIGGER
LEVEL
TRACK HOLD OFF
X POS
▼▼
VAR
▼▼
VAR
AMPL
AUTO
RANGE
CH3+CH4
ON
TB MODE
TIME/DIV
RUN/STOP SINGLE_ARM’D
AUTO
RANGE
TRIGGER MAGNIFY
GND
AC DC
mV
V
TRIG3
POS
▼▼
VAR
nss
▼▼
VAR
AMPL
AUTO
RANGE
INV
ON GND
AC DC
mV
V
TRIG4
POS
▼▼
VAR
Any softkey menu:
Softkey 1 .... 6:
TRACE INTENSITY:
DISP:MENU menu_name
SYST:KEY 1 .... 6
DISP:BRIG
SAVE_RECALL
Notes: - Channel 3 is not applicable for PM33x0B.
- Channel 4 is external trigger input for PM33x0B.

Table of Contents

Related product manuals