EasyManua.ls Logo

Fluke CombiScope PM3380B - Conversion to voltage values

Fluke CombiScope PM3380B
297 pages
Print Icon
To Next Page IconTo Next Page
To Next Page IconTo Next Page
To Previous Page IconTo Previous Page
To Previous Page IconTo Previous Page
Loading...
3 - 34 USING THE COMBISCOPE INSTRUMENTS
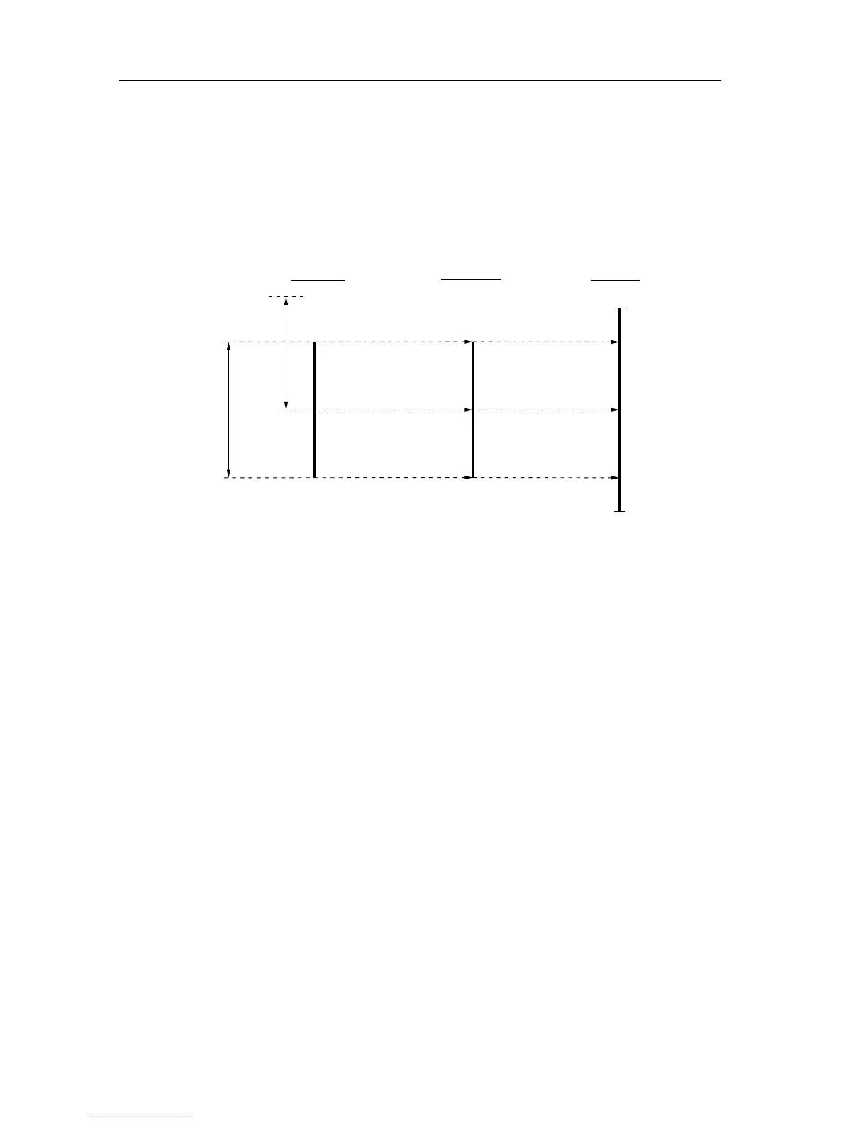
3.4.3.3 Conversion to voltage values
Screen positions correspond to voltage values. This relation is shown in the figure
below, and is determined by the settings that are programmed by the
SENSe:VOLTage:RANGe:PTPeak and SENSe:VOLTage:RANGe:OFFSet
commands.
The relation between the screen position Ps and the corresponding voltage
amplitude Vs is expressed by the equations:
Vs = (Ps
*
PTPeak) / 200 - OFFSet (for 8-bit sample traces)
Vs = (Ps
*
PTPeak) / 51200 - OFFSet (for 16-bit sample traces)
As explained in section 3.4.3, there is also a relation between the screen position
Ps and the value Ts of a trace sample. This relation is expressed by the equations:
Ps = Ts (for 8-bit sample traces)
Ps = (Ts / 25600)
*
100 = Ts / 256 (for 16-bit sample traces)
Eliminating Ps from the preceding equations results in a relation that can be used
to calculate the voltage value Vs from a trace sample Ts. This relation is
expressed by the equations:
Vs = (Ts / 200)
*
PTPeak - OFFSet (for 8-bit sample traces)
Vs = (Ts / 51200)
*
PTPeak - OFFSet (for 16-bit sample traces)
PTPeak
Trace sample
value (Ts)
Screen
position (Ps)
Amplitude
value (Vs)
ST7188
OFFSet
0Volt
-OFFSet+PTPeak/2
-OFFSet
-OFFSet-PTPeak/2
top
100%
mid
0%
bottom
-100%
32767
(127)
25600
(100)
0
(0)
-25600 (-100)
-32768 (-128)
Figure 3.12 Relation between screen position and amplitude value

Table of Contents

Related product manuals