EasyManua.ls Logo

Fluke Versiv - Page 159

Fluke Versiv
377 pages
Print Icon
To Next Page IconTo Next Page
To Next Page IconTo Next Page
To Previous Page IconTo Previous Page
To Previous Page IconTo Previous Page
Loading...
Certify Fiber Cabling
Requirements for Reliable Fiber Test Results
149
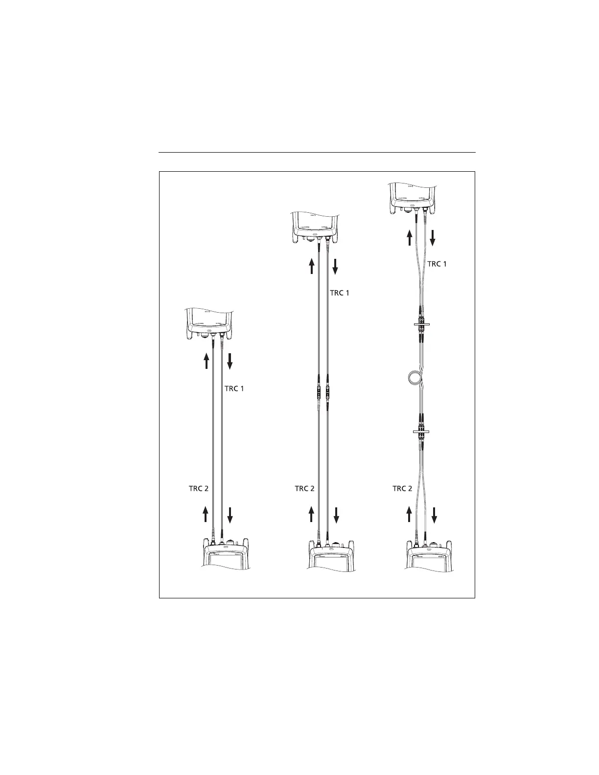
GPU166.EPS
Figure 57. TRCs Necessary for Links with APC Connectors
APC UPC
APC UPC
APC UPC
UPC APC UPC APC UPC APC
APC APC
APC APC
APC APC
APC APC
APC APC
APC APC
Fiber Link Test
Reference
TRC Verification
WCaution
Connect only UPC connectors
to the tester’s output ports.
www.GlobalTestSupply.com
Find Quality Products Online at: sales@GlobalTestSupply.com

Table of Contents

Other manuals for Fluke Versiv

Related product manuals