EasyManua.ls Logo

Follett REF5P - Wiring Diagram (Basic Units)

Follett REF5P
44 pages
Print Icon
To Next Page IconTo Next Page
To Next Page IconTo Next Page
To Previous Page IconTo Previous Page
To Previous Page IconTo Previous Page
Loading...
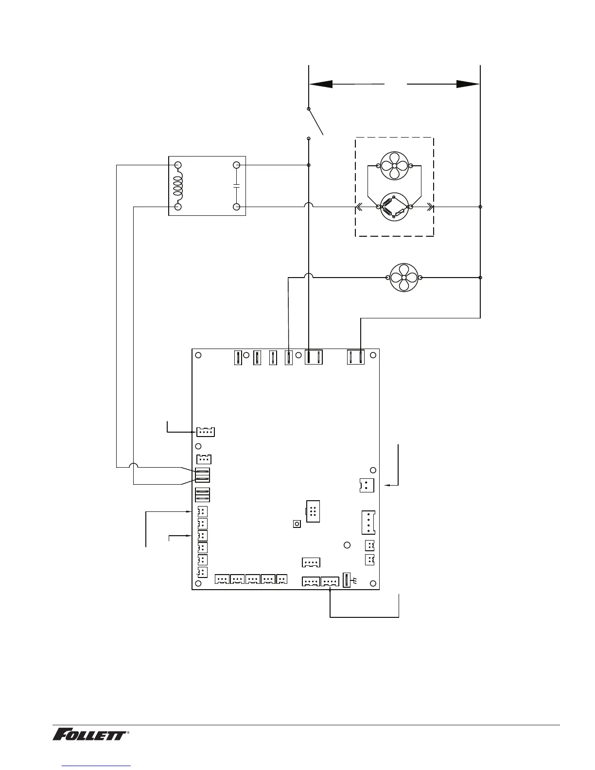
REF4P, REF5P and REF5BBP-T Undercounter Refrigerators 35
Basic Units (Serial Number E98967 and above)
N
C
EVAP
FAN
PWR SW
COMPRESSOR
ALARM#1
DEF
DFRST
ALARM
BOTL
SUCTDSCHG
COMP
INLET
EVAP FAN
COND FAN
DOOR HTR
CAB
COND AIR
P7
P3
P2 P1
P6
P8
R30
21
4-3+
INPUT
3-32VDC
240VAC/25A
OUTPUT
WHTBLK
MACHINE CONTROL
BLK
P3-ALARM BOTTLE
P1-CONTROL
HOT (L1)
NEUTRAL (L2)
RELAY
COMP
RELAY
BATTERY
WHT
(KEYPAD ONLY)
ELOCK
DISPLAY
A B A B
HOT
NEUTRAL
(KEYPAD ONLY)
RED
BLK
120VAC
RED
ORG
BLK
RELAY
BATTERY
BLK
WHT
BLUE
COND
UNIT

Related product manuals