EasyManua.ls Logo

FREE MOTION S83 - Page 7

Default Icon
37 pages
Print Icon
To Next Page IconTo Next Page
To Next Page IconTo Next Page
To Previous Page IconTo Previous Page
To Previous Page IconTo Previous Page
Loading...
7
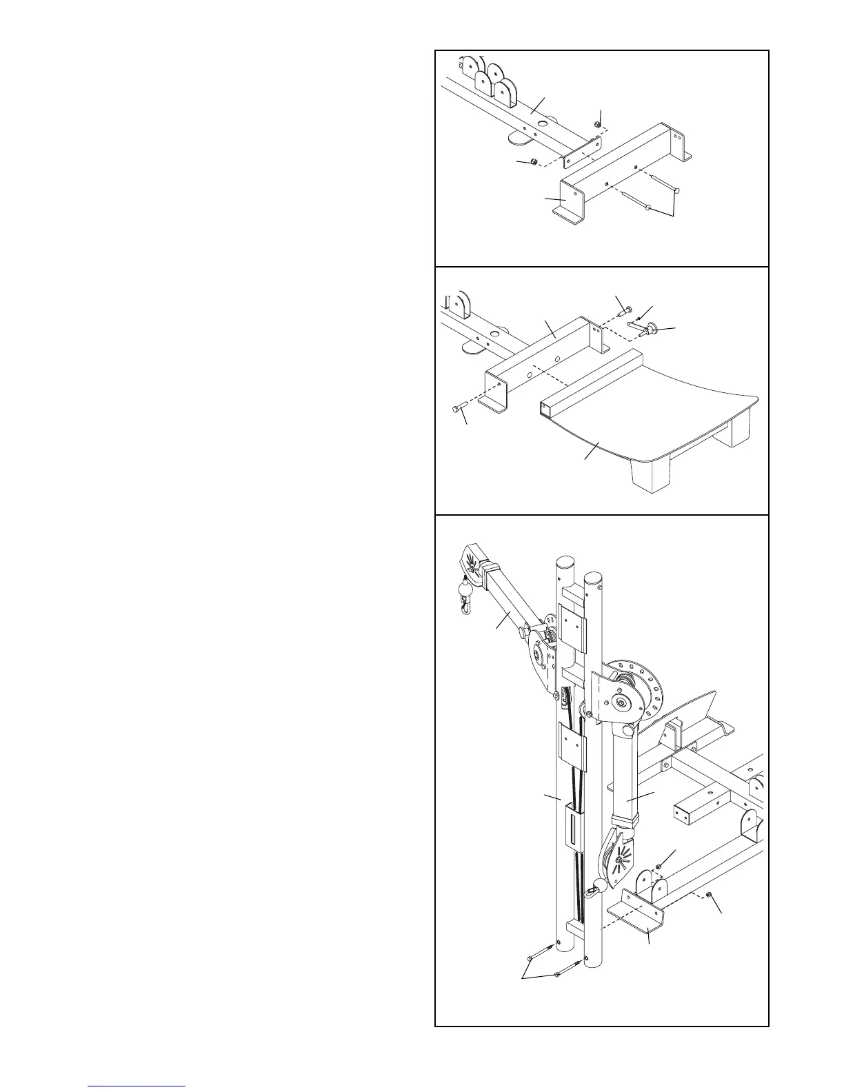
4. Attach the Hack Squat Stabilizer (112) to the
Hack Squat Base (111) with two M10 x 68mm
Carriage Bolts (73) and two M10 Nylon Locknuts
(101).
5. Attach the Hack Squat Foot Plate (113) to the
Hack Squat Stabilizer (112) with two M10 x 38mm
Button Screws (153).
Attach the Adjustment Pin Assembly (135) to the
Hack Squat Stabilizer (112) with an M4 x 16mm
Screw (95). Insert the Adjustment Pin Assembly
into the Hack Squat Stabilizer and the Hack
Squat Foot Plate (113).
4
5
101
101
111
112
112
113
153
153
95
135
73
6
101
12
11
101
1
74
6. Attach the Backrest Frame (6) to the Base (1)
with two M10 x 82mm Button Bolts (74) and two
M10 Nylon Locknuts (101). Do not tighten the
Locknuts yet.
Note: The Press Arms (11, 12) are preassem-
bled in the down position (see part 12).
Although the Press Arms are shown in the
raised position (see part 11) throughout this
manual, it is not necessary to raise the Press
Arms for assembly.
6