EasyManua.ls Logo

Frick QUANTUM LX - Page 24

Frick QUANTUM LX
80 pages
Print Icon
To Next Page IconTo Next Page
To Next Page IconTo Next Page
To Previous Page IconTo Previous Page
To Previous Page IconTo Previous Page
Loading...
QUANTUM
LX CONDENSER/VESSEL CONTROL PANEL
MAINTENANCE
090.560-M (MAY 2016)
Page 24
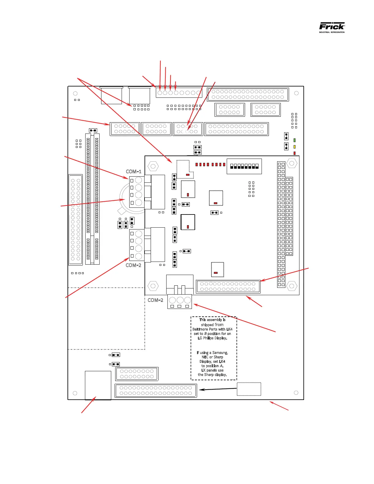
Q4 BOARD
History
Page 2
3.3 Volt
Battery
PL8
LK1
PL
9
PL1
LK2
Flash Card Socket
(located under
board)
PL3
PL13
PL7
PL
17
PL
12
PL
19
PL
18
PL14
PL10
PL6
PL2
PL
4
P
W
R
SU
SP
FL
AS
H
LK11
LK12
PL
24
PL
3
PL4
LK9
LK8
LK10
PL16
PL5
PL
11
LK3
A
B
LK4
PL
15
TB1
TB2
LK2
COM-2
TB3
RS-232
3
2
1
D3
LK16
A
B
A B
COM-2
LK
6
B
A
LK
5
LK
7
PL2
COM1
3
4
5
6
7
0
1
2
D9
D1
0
D11
D1
2
POR
T
80H
D4 D5 D7
D13
SW1
ON
8
7
6
5
4
3
2
1
COM-1
1
2
3
4
1
2
4
RS-
422
RS-
485
LK
4
LK
3
LK
6
LK
5
D1
D8
LK17
RS-
422
RS-
485
LK
8
LK
7
LK
10
LK
9
D6
D2
LK11
B A
PL1
COM1
(RX)
(RX)
KB
3
LK1
CAT-5 Ethernet
Connector
This assembly is
shipped from
Baltimore Parts with LK4
set to B position for an
LG Philips Display.
If using a Samsung,
NEC or Sharp
Display, set LK4
to position A.
LX panels use
the Sharp display.
A
.
LX panels use the
Sharp display.
Display
Cable
Keypad
Cable
COM-2
(TB2)
RS-422/485
connector
Power
Cable
+5VDC
+12VDC
RET / GND
RET / GND
+RX/+TX (I/O Boards)
-RX/-TX (I/O Boards)
(TX)
COM2
(TX)
COM2
(RX)
COM-2
(TB2)
RS-422/485
connector
COM-1
(TB1)
RS-422/485
connector
COM-3
(PL6)
RS-232
connector
USB Connector
(Depending on board version,
USB could be located in either
of these two locations.
COM-2
(TB3)
RS-232
connector
Processor Board
(large botom board)
Communications Board
(small top board)
Controller Board Pictorial
Note: There are duplicate numbers for the links on the processor (larger) board and the communications (smaller) board. If you must
make a change to a jumper (link), ensure that you modify the correct link.

Other manuals for Frick QUANTUM LX

Related product manuals