EasyManua.ls Logo

Frick QUANTUM LX - Page 26

Frick QUANTUM LX
80 pages
Print Icon
To Next Page IconTo Next Page
To Next Page IconTo Next Page
To Previous Page IconTo Previous Page
To Previous Page IconTo Previous Page
Loading...
QUANTUM
LX CONDENSER/VESSEL CONTROL PANEL
MAINTENANCE
090.560-M (MAY 2016)
Page 26
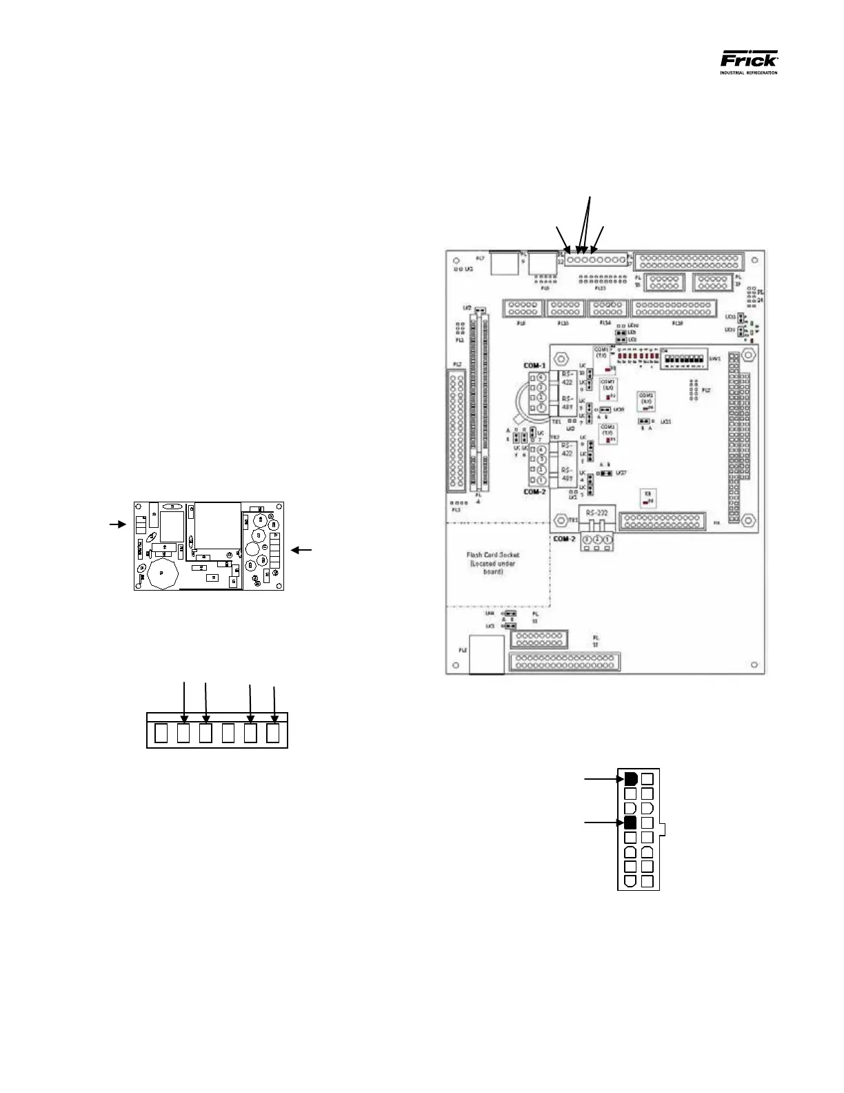
Q4 CONDENSER/VESSEL CONTROL PANEL
POWER SUPPLY
DESCRIPTION
The same power supply is utilized in both the Q4 Condenser/
Vessel Control Panel, and the Condenser/Vessel Remote
Panels. A three-pin connector provides 120 VAC or 230 VAC
power to the supply, and a six-pin connector delivers DC power
out of the supply. These connections are of a push-on multiple
contact connector type. This power supply is not adjustable.
CONDENSER/VESSEL LX CONTROL PANEL POWER
SUPPLY
CAUTION! Measuring the power supply voltages require
the control power to be energized. Extreme care must be
observed when taking any readings, as 120 VAC is present
within the power supply.
The Q4 controller utilizes only the +5 VDS and +12 VDC
voltages from the power supply. To perform measurements
on the power supply voltages, use a reliable, calibrated
Digital Volt Meter (DVM). The DVM should be accurate to
1/100 of a volt DC. Turn the control power switch to ON.
AC Input
DC
Output
Measure the voltages on the power supply at the DC
output connector as shown below:
RET RET +5 +12
The following voltage range is considered to be acceptable:
+5 VDC supply (+5.15 to +5.20 VDC)
+12 VDC supply (+11.8 to +12.2 VDC)
If the voltages from the power supply are within the acceptable
ranges, then measure them at the Q4 control board, as shown
below:
+5 VDC
Common
+12 VDC
If the voltages from the power supply are within the
acceptable ranges, then measure them at the last I/O
board in the daisychain, as shown below:
+5V
RET
If any of the voltages measure outside of the acceptable
range, yet measured correctly at the power supply, then
a problem with the wiring harness should be suspected
and checked.
REPLACEMENT
If the power supply is found to be bad, or out of adjustment,
it will need replacing.

Other manuals for Frick QUANTUM LX

Related product manuals