EasyManua.ls Logo

Frick RWF 399 - Current Transformer (Ct) Ratios; Minimum Burden Ratings; Battery Backup

Frick RWF 399
56 pages
Print Icon
To Next Page IconTo Next Page
To Next Page IconTo Next Page
To Previous Page IconTo Previous Page
To Previous Page IconTo Previous Page
Loading...
RWF ROTARY SCREW COMPRESSOR UNITS
INSTALLATION
S70-600 IOM
Page 11
6. One each normally open compressor motor and oil pump
motor starter auxiliary contact should be supplied. In addi-
tion to the compressor and oil pump motor starter coils, the
CT and CPT secondaries should be wired as shown on the
starter package wiring diagram. The load on the control panel
for the compressor motor starter coil should not exceed a
Nema size 3 starter. For larger starters, an interposing relay
must be used to switch the compressor motor starter coil(s).
NOTE: Do not install a compressor HAND/OFF/AUTO
switch in the starter package as this would bypass the
compressor safety devices.
7. The compressor motor Current Transformer (CT) is in-
stalled on any one phase of the compressor leads.
NOTE: The CT must see all the current of any one phase,
therefore in wye-delta applications BOTH leads of any
one phase must pass through the CT.
CURRENT TRANSFORMER (CT) RATIOS
The CT ratio for various motor sizes (with a 5 amp second-
ary) is given in the following table:
VOLTAGE
HP 200 230 380 460 575 2300 4160
20 100:5 100:5 50:5 50:5 50:5 - -
25 100:5 100:5 50:5 50:5 50:5 - -
30 200:5 100:5 100:5 50:5 50:5 - -
40 200:5 200:5 100:5 100:5 50:5 - -
50 200:5 200:5 100:5 100:5 100:5 - -
60 300:5 200:5 200:5 100:5 100:5 - -
75 300:5 300:5 200:5 200:5 100:5 - -
100 400:5 300:5 200:5 200:5 200:5 - -
125 500:5 400:5 300:5 200:5 200:5 - -
150 600:5 500:5 300:5 300:5 200:5 - -
200 800:5 600:5 400:5 300:5 300:5 100:5 50:5
250 800:5 800:5 500:5 400:5 300:5 100:5 50:5
300 1000:5 1000:5 600:5 500:5 400:5 100:5 50:5
350 - 1000:5 800:5 500:5 500:5 100:5 100:5
400 - - 800:5 600:5 500:5 200:5 100:5
450 - - 1000:5 800:5 600:5 200:5 100:5
500 - - 1000:5 800:5 600:5 200:5 100:5
600 - - 1200:5 1000:5 800:5 200:5 100:5
700 - - - 1200:5 1000:5 200:5 200:5
800 - - - - 1000:5 300:5 200:5
900 - - - - 1200:5 300:5 200:5
1000 - ----300:5 200:5
1250 - ----400:5 200:5
1500 - ----500:5 300:5
MINIMUM BURDEN RATINGS
The following table gives the minimum CT burden ratings.
This is a function of the distance between the motor starting
package and the compressor unit.
BURDEN MAXIMUM DISTANCE FROM
RATING FRICK PANEL
USING # USING # USING #
ANSI VA 14 AWG 12 AWG 10 AWG
B-0.1 2.5 15 ft 25 ft 40 ft
B-0.2 5 35 ft 55 ft 88 ft
B-0.5 12.5 93 ft 148 ft 236 ft
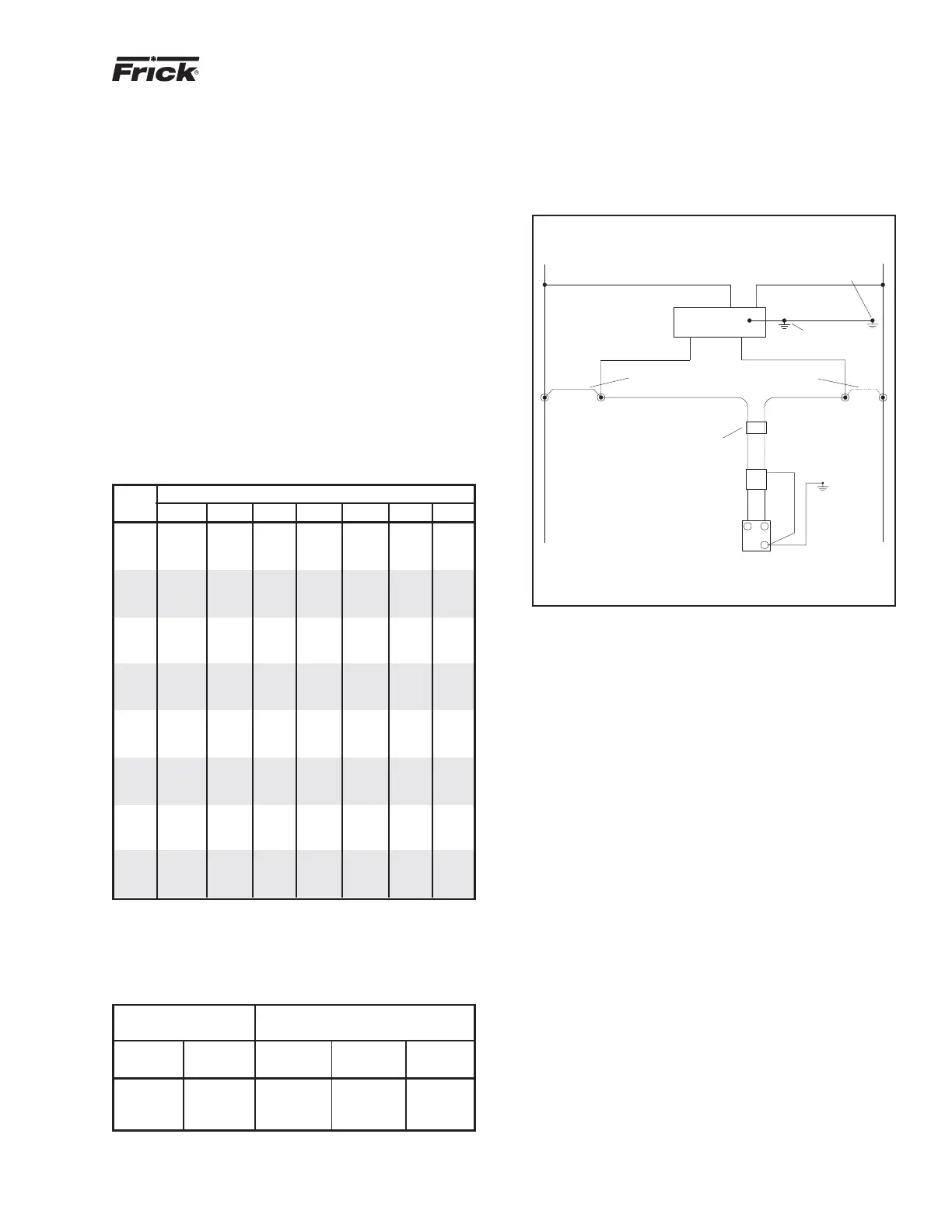
CONTROL POWER REGULATOR
Compressor units that will be used in areas that suffer
brownouts and other significant power fluctuations can be
supplied with a control power regulator. See Figure 11, Rec-
ommended Regulator Installation.
REMOVE JUMPERS 6 TO 6B & 2 TO 2B
DC POWER
EMI FILTER
SUPPLY
SEE SOLA CONNECTION CHARTS FOR
INPUT & OUTPUT CONNECTIONS
6
REMOVE FERRITE TUBE
WHEN SOLA IS ADDED,
6B
6
H
NOTE: AT SOLA ASSEMBLY, MAKE WIRES 6, 2, GND, 6B, & 2B,
10 FT LONG. CUTWIRES TO LENGTH AT INSTALLATION
H5
REGULATOR
H3H4
OUTPUT
INPUT
X1
120/240 V. IN, 120 V. OUT
SOLA #63-23-112-4, 120 VA, 60 HZ
SHOWN HERE- CONSULT FRICK
FOR OTHER VOLTAGES/HZ
SOLA ENCLOSURE
GND TERM
2A6A
23
PS 1
1
LINE
LOAD
GREEN
FERRITE
TUBE
2B
2
GND LUG IN
H2 H1
LUG
X2
GREEN
GND TERM
IN MICRO
2
N
Figure 11 - Recommended Regulator Installation
BATTERY BACKUP
The battery backup is used only for date and time retention
during power interruption. All setpoints and other critical in-
formation are saved on EEPROM chips.
NOTE: It is not necessary to disconnect the battery
backup during extended downtime.
NOTE: The microprocessor will not operate without U24
and U35 EPROM chips installed. When U24 and U35
EPROM chips are not installed, the screen will display:
System Board Initialized
No boot device available,
Press enter to continue.

Table of Contents

Related product manuals