EasyManua.ls Logo

Frick RXF Plus - Page 31

Frick RXF Plus
34 pages
Print Icon
To Next Page IconTo Next Page
To Next Page IconTo Next Page
To Previous Page IconTo Previous Page
To Previous Page IconTo Previous Page
Loading...
RXF PLUS MICROPROCESSOR CONTROL PANEL S70-401 IOM
Page 31
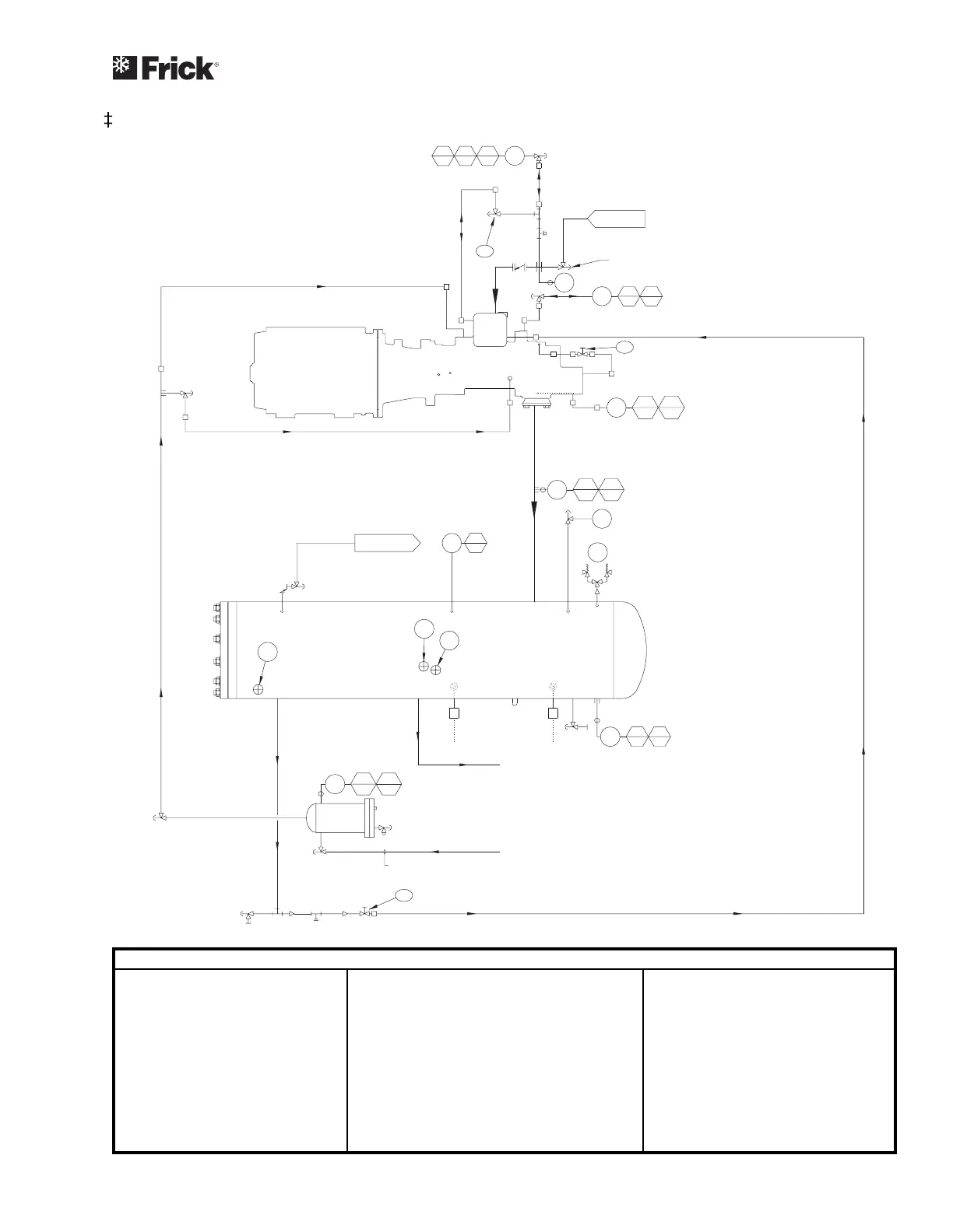
STR-1
1 1/4 XXS PIPE TO RESTRICT
OIL FLOW AT STARTUP
33
TA H
TE
3
TA H H
PV-1
LG
1
LG
2
LG
3
HTR-1 HTR-2
TE
4
4
TA L
4
TA L L
DISCHARGE GAS
FROM UNIT
M-1 C-1
LSL
1
LSLL
1
PI
1
300 PSIG
PSV
1
TA H
2
TE
2
TE
1
2
TA HH
YY-3
YY-4
8
12
1
6
16
10
9
CV-1
11
PE
3
2
3
PA H
3
PA HH
PE
1
PA LLPA L
HV3
HV2
HV1
11
13
PICPA L
44
PA LL
4
PE
4
SUCTION GAS
TO COMPR
SUCTION VALVE
SHIPPED LOOSE
RXFP58PI
TO OIL COOLER
FROM OIL COOLER
RXF MODELS 58, 68, 85, & 101 without OIL PUMP (See OIL COOLING ADDITIONS)
MAINTENANCE
* See additional Legend items on opposite page.
LEGEND*
AS AIR SUPPLY
C COMPRESSOR
CV CHECK VALVE
DP DISCHARGE PRESSURE
F FILTER OR FILTER DRIER
FG FLOW GLASS
HTR HEATER
HV HAND ACTUATED VALVE
LG SIGHT OR LEVEL GLASS
LSL OIL LEVEL SWITCH LOW
LSLL LOW OIL LEVEL SHUTDOWN
MMOTOR
1MC MOTOR CONTROL CENTER
2MC MOTOR CONTROL CENTER
OP OIL PRESSURE
P PUMP
PAH HIGH PRESSURE ALARM
PAHH HIGH PRESSURE SHUTDOWN
PAL LOW PRESSURE ALARM
PALL LOW PRESSURE SHUTDOWN
PCV PRESSURE CONTROL VALVE
PDSLL LOW DIFFERENTIAL PRESS. SHUTDOWN
PE PRESSURE ELEMENT
PI PRESSURE INDICATOR
PIC/TIC PRESS./TEMP. INDICATING CONTROLLER
PM PUMP MOTOR
PS AUTO CYCLE/PRESSURE SWITCH
PSV PRESSURE SAFETY VALVE
SP SUCTION PRESSURE
STR STRAINER
TAH HIGH TEMPERATURE ALARM
TAHH HIGH TEMP. SHUTDOWN
TAL LOW TEMPERATURE ALARM
TALL LOW TEMPERATURE SHUTDOWN
TCV TEMPERATURE CONTROL VALVE
TE TEMPERATURE ELEMENT
TI TEMPERATURE INDICATOR
TS TEMPERATURE SWITCH
TSH TEMP. SWITCH HIGH ALARM
TSLL LIQUID INJECTION SHUTOFF
TW THERMOWELL
VI VI CONTROL
WS WATER SUPPLY
YY SOLENOID VALVE/EVENT VALVE
Revised 6/96

Related product manuals