EasyManua.ls Logo

Fridgemaster MS91521FFB - Helpful Hints and Tips

Fridgemaster MS91521FFB
29 pages
Print Icon
To Next Page IconTo Next Page
To Next Page IconTo Next Page
To Previous Page IconTo Previous Page
To Previous Page IconTo Previous Page
Loading...
22
Warning!
Do not use sharp objects to remove frost
from the freezer compartment. Only after
the interior is completely dry should the
appliance be switched back on and
plugged back into the mains socket.
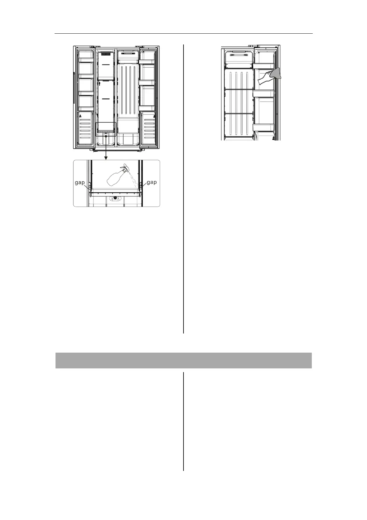
Door seals cleaning
Take care to keep door seals clean. Sticky
food and drinks can cause seals to stick to
the cabinet and tear when you open the
door. Wash seal with a mild detergent and
warm water. Rinse and dry it thoroughly
after cleaning.
Caution! Only after the door seals are
completely dry should the appliance be
powered on
Replacing the LED light:
Warning: The LED light must not be
replaced by the user! If the LED light is
damaged, contact the customer helpline
for assistance. To replace the LED light,
the below steps can be followed:
1. Unplug your appliance.
2. Remove light cover by pushing up and
out.
3. Hold the LED cover with one hand and
pull it with the other hand while pressing
the connector latch.
4. Replace LED light and snap it correctly
in place.
Helpful hints and tips
Energy saving tips
We recommend that you follow the tips
below to save energy.
Try to avoid keeping the door open for
long periods in order to conserve energy.
Ensure the appliance is away from any
sources of heat (Direct sunlight, electric
oven or cooker etc)
Don‘t set the temperature colder than
necessary.
Don’t store warm food or evaporating
liquid in the appliance.
Place the appliance in a well ventilated,
humidity free, room. Please refer to
Installing your new appliance chapter.
If the diagram shows the correct
combination for the drawers, crisper and
shelves, do not adjust the combination as
this is designed to be the most energy
efficient configuration.

Related product manuals