EasyManua.ls Logo

Friedrich MULTI ZONE MR24DY3JMA - Page 90

Friedrich MULTI ZONE MR24DY3JMA
274 pages
Print Icon
To Next Page IconTo Next Page
To Next Page IconTo Next Page
To Previous Page IconTo Previous Page
To Previous Page IconTo Previous Page
Loading...
10 _ Multiple piping type
MULTI ZONEMULTI ZONE
Part 2 Product data_Outdoor units
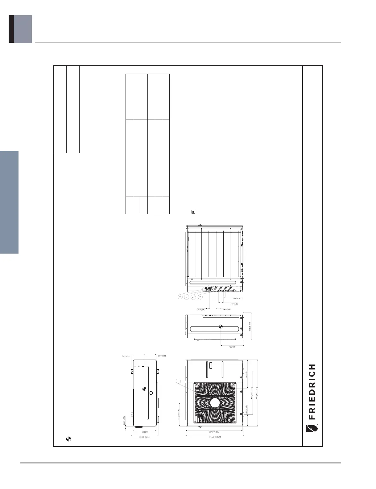
4. Dimensions
OUTDOOR UNIT
MR36TQY3JMA
[Unit : mm(inch)]
Gravity point
10001 Reunion Place, Suite 500
San Antonio, TX 78216
1. Unit should be installed in compliance with the installation manual in
the product box.
2. Unit should be grounded in accordance with the local regulations or
applicable national codes.
3. All electrical components and materials to be supplied on the site
must comply with the local regulations or international codes.
4. Electrical characteristics chapter should be considered for electrical
work and design. Especially the capacity of power cable and circuit
breaker for outdoor unit should be more than that of electrical
characteristics chapter.
Note
Gas pipe connection
Part Name
Air discharge grille
Liquid pipe connection
Main service valve(Gas)
Main service valve(Liquid)
5
No.
2
4
3
1
Remark

Table of Contents

Related product manuals