EasyManua.ls Logo

Friedrich WallMaster WCT16 - WSE Sleeve Installation

Friedrich WallMaster WCT16
32 pages
Print Icon
To Next Page IconTo Next Page
To Next Page IconTo Next Page
To Previous Page IconTo Previous Page
To Previous Page IconTo Previous Page
Loading...
8
C. INSTALLATION OF THE UNIT
C.4 WSE Sleeve Installation
WARNING
Falling Object Hazard
Not following Installation Instructions
for mounting your air conditioner can
result in property damage, injury, or
death.
Mounting Hardware
ITEM
NO
DESCRIPTION QTY.
1 SCREW, #12A x 2″ 7
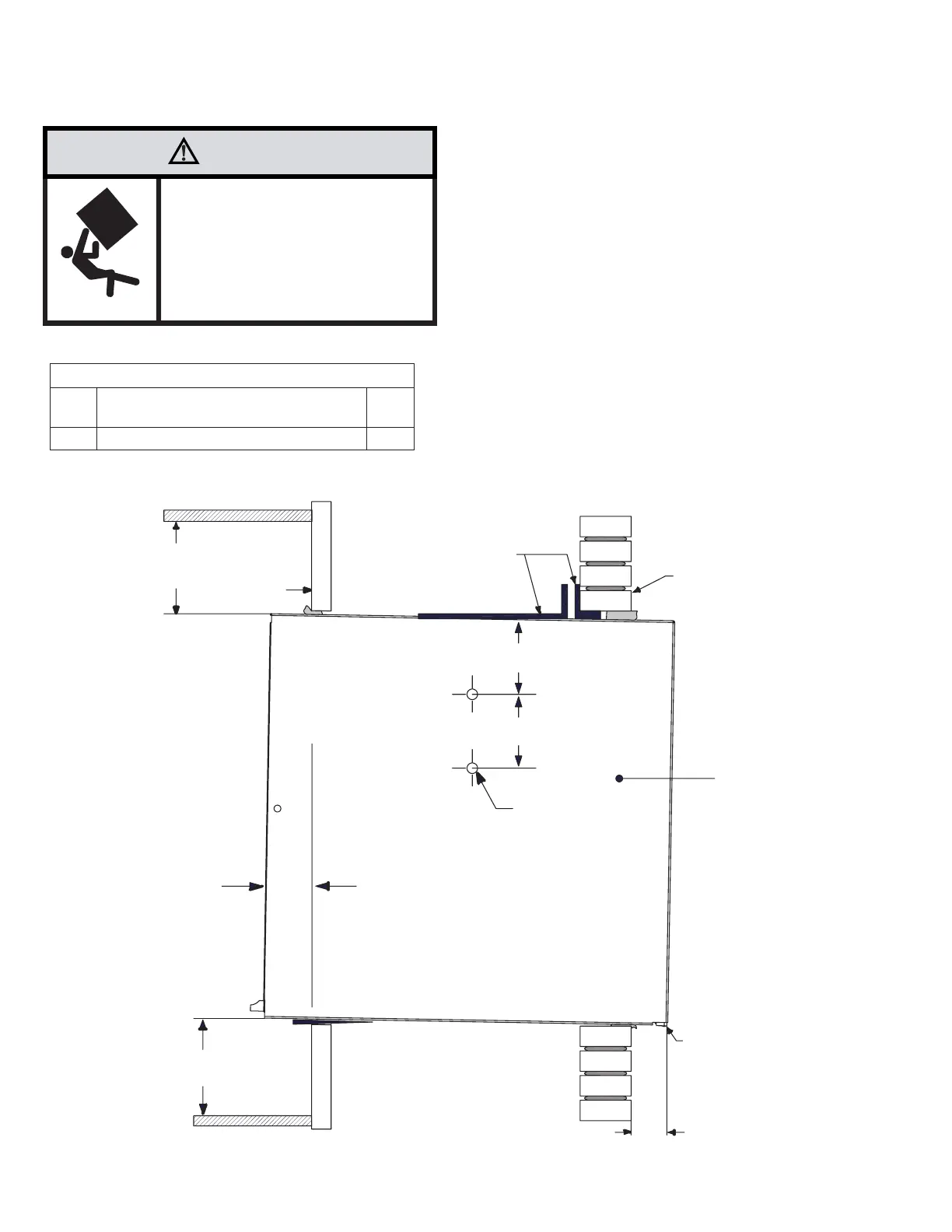
Wall Preparation
STEP 1. The wall opening required for a WSE SLEEVE is 17 ¼ high
by 27 ¼ wide.
STEP 2. LINTELS must be used in opening of brick veneer and
masonry walls to support the material above the WSE
SLEEVE. The following considerations should also be given:
A. Masonry walls to support the material above the WSE
SLEEVE.
B. Locally manufactured SUBBASE or other unit support
must be provided for panel wall type construction and for
walls less than 8 thick.
24″ MINIMUM REQUIRED FROM
TOP OF UNIT TO CEILING
INSIDE
WALL
LINTELS
1″ MINIMUM SPACING REQUIRED
ON ALL SIDES OF UNIT
7
/8″ MINIMUM BEYOND
INSIDE WALL
1″ MINIMUM
3
1
/2″ FOR SUBBASE
5
1
/2″ MAXIMUM FOR SUBBASE
OUTSIDE WALL
WSE SLEEVE
WALL MOUNT
SCREW LOCATIONS
DRAIN EXTENSION
5″ (127 mm)
5″ (127 mm)
9
/16″ MINIMUM BEYOND
OUTSIDE WALL
SIDE VIEW
Figure C.4.1

Related product manuals