EasyManua.ls Logo

Frigidaire FAS156N1A - Motor; Heavy Duty Top Control; Heavy Duty Side Discharge

Frigidaire FAS156N1A
20 pages
Print Icon
To Next Page IconTo Next Page
To Next Page IconTo Next Page
To Previous Page IconTo Previous Page
To Previous Page IconTo Previous Page
Loading...
14
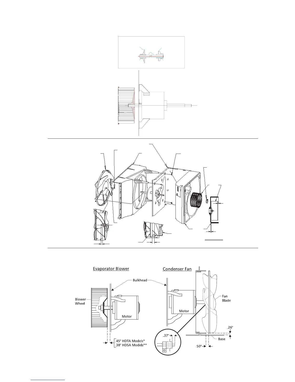
Fan and Blower Location Diagrams
Heavy Duty Side Discharge
Heavy Duty
Top Control
TORQUE TO 25 IN.LBS.
AIR SYSTEM
TORQUE TO
15-20 IN. LBS.
(H/D T/C)
PUSH FAN BLADE
TILL END
.300
SCROLL
BLOWER
WHEEL
SHROUD
& SEAL
ASSY.
TORQUE TO
22-27 IN.LBS.
OF FLAT
COND. FAN
SLINGER RING
SHROUD
.560
.370
REF.
.380
SCREW (3) SHROUD/
BULKHEAD ASSY.
CLAMP
COND. FAN
CLAMP SCREW
FAN CLAMP
BULKHEAD ASSY.
BLOWER WHEEL
To be fully seated
against motor shaft.
(bottom out on shaft)
Clamp Clamp
Evaporator Side Condenser Side
CONDENSER FAN
To be fully seated
against motor shaft.
(bottom out on shaft)
Motor Shaft
Motor

Related product manuals