EasyManua.ls Logo

Fujitsu AGHG12LVCA - Refrigerant Circuit

Fujitsu AGHG12LVCA
413 pages
Print Icon
To Next Page IconTo Next Page
To Next Page IconTo Next Page
To Previous Page IconTo Previous Page
To Previous Page IconTo Previous Page
Loading...
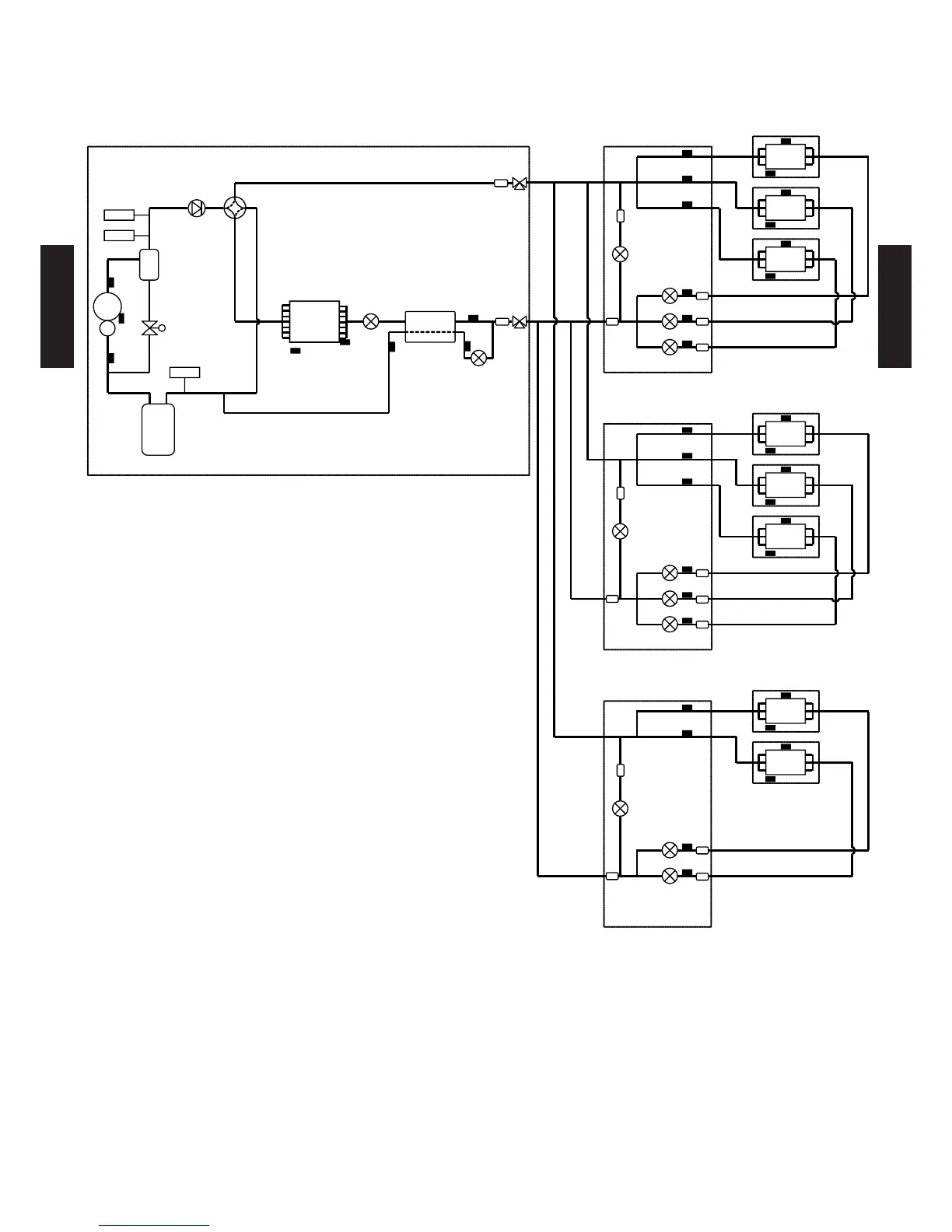
3. OUTDOOR UNIT & BRANCH BOX
REFRIGERANT CIRCUIT4.
EEV21
EEV21
LIQUID LINE
FAN21
FAN21
Indoor unit1
Outdoor unit
HEX21
HEX21
Indoor unit2
GAS LINE
TH21
TH22
TH23
TH23
TH21
TH22
: Check valve
: Capillary
: Strainer
: 3-way valve
: Service port
: Pressure regulation valve
ACM
CMP1
INV
OS
SCHEX
HPS
FAN1
LPS
SV1
EEV1
EEV2
TH1
TH3
TH4
TH5
TH6
TH7
TH8
TH9
TH1 0
SV3
SV2
HPSW1
CMP
ACM
Comp
ressor
OS
Accumu
lator
SCHEX
HEX
HEX
HEX
HEX
HEX
HEX
HEX
HEX
HEX
HP-SW
HPS
LPS
TH1
TH2
TH3
TH4
TH5
TH6
TH7
TH8
TH10
TH10
TH10
TH9
TH9
TH9
TH10
TH10
TH10
TH9
TH9
TH9
TH10
TH10
TH9
TH9
TH11
TH11
TH11
TH11
TH11
TH11
TH11
TH11
EEV1
EEV2
EEV3
EEV3
EEV3
EEV3
EEV3
EEV3
EEV3
EEV3
SV
4WV
3WV
3WV
Strainer
Strainer
Strainer
Strainer
Strainer
Strainer
Strainer
Strainer
Strainer
Strainer
Strainer
Strainer
Strainer
Strainer
Strainer
Strainer
0
TH12
0
TH12
0
TH12
0
TH12
0
TH12
0
TH12
0
TH12
0
TH12
EEV4
EEV4
EEV4
Outdoor unit
Branch box 1
Indoor
unit 1
Indoor
unit 4
Indoor
unit 7
Indoor
unit 2
Indoor
unit 5
Indoor
unit 8
Indoor
unit 3
Indoor
unit 6
Branch box 2
Branch box 3
- (03 - 12) -
OUTDOOR
UNITS
OUTDOOR
UNITS

Table of Contents

Related product manuals