EasyManua.ls Logo

Fujitsu AOYG72LRLA - Page 243

Fujitsu AOYG72LRLA
343 pages
Print Icon
To Next Page IconTo Next Page
To Next Page IconTo Next Page
To Previous Page IconTo Previous Page
To Previous Page IconTo Previous Page
Loading...
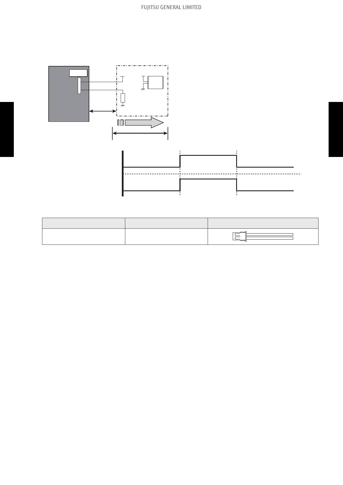
Compressor status output
Signal on compressor operation status is generated when the compressor is running.
Circuit diagram example (CN137)
Signal
Outdoor unit
control PCB
Connected unit
Connector
1
2
Locally purchased
*10 m
Vcc
+
+
-
Load
Vcc
Power
supply
CN137
1: Power supply
Voltage (Vcc): DC 24 V or less
2: Load
DC 500 mA or less
*: Make the distance from the PCB to the con-
nected unit within 10 m.
Operation
Stop
On
Off
Compressor
status
Output signal
Optional part
Part name Model name Exterior
External connect kit UTY-XWZXZ3
- 235 -
6-2. Outdoor unit 6. External input and output
SYSTEM
DESIGN
SYSTEM
DESIGN

Table of Contents