EasyManua.ls Logo

Fujitsu AOYG72LRLA - 10-4. Fresh air intake kit for compact cassette type (UTZ-VXAA); Specifications; Dimensions

Fujitsu AOYG72LRLA
343 pages
Print Icon
To Next Page IconTo Next Page
To Next Page IconTo Next Page
To Previous Page IconTo Previous Page
To Previous Page IconTo Previous Page
Loading...
10-4. Fresh air intake kit for compact cassette type (UTZ-VXAA)
¢
Specifications
Model name UTZ-VXAA
Fresh air
intake
Max. fresh air intake
volume
%
(For High)
10
Connection duct type
mm Ø 100
Pcs 1
Dimensions (H × W × D)
Net
mm
120 × 570 × 570
Gross 165 × 585 × 585
Weight
Net
kg
3.5
Gross 5.5
¢
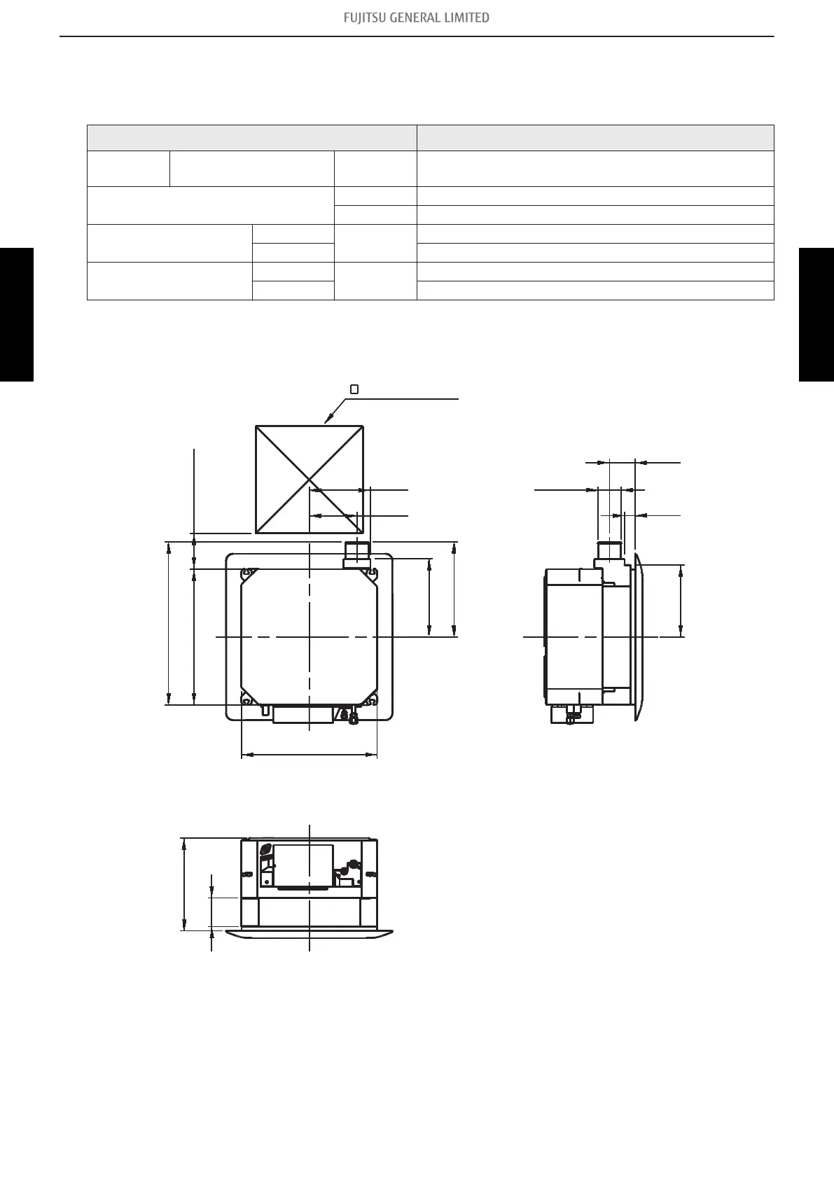
Dimensions
Unit: mm
570
Min. 450
108
Ø100
45
257
201
570
683
390
120
150 to 200
328
398
310
Ceiling opening space
Inspection hatch
Top view
Side view
Side view
NOTE:
When installing this kit, inspection hatch is necessary. (It is necessary when servicing.)
- 313 -
10-4. Fresh air intake kit for compact cassette type (UTZ-VXAA) 10. Optional parts installation
SYSTEM
DESIGN
SYSTEM
DESIGN

Table of Contents

Other manuals for Fujitsu AOYG72LRLA

Related product manuals