EasyManua.ls Logo

Fujitsu AR*9LUAB - Page 26

Fujitsu AR*9LUAB
96 pages
Print Icon
To Next Page IconTo Next Page
To Next Page IconTo Next Page
To Previous Page IconTo Previous Page
To Previous Page IconTo Previous Page
Loading...
- (01 - 25) -
MULTI TYPE
2ROOM TYPE
MULTI TYPE
2ROOM TYPE
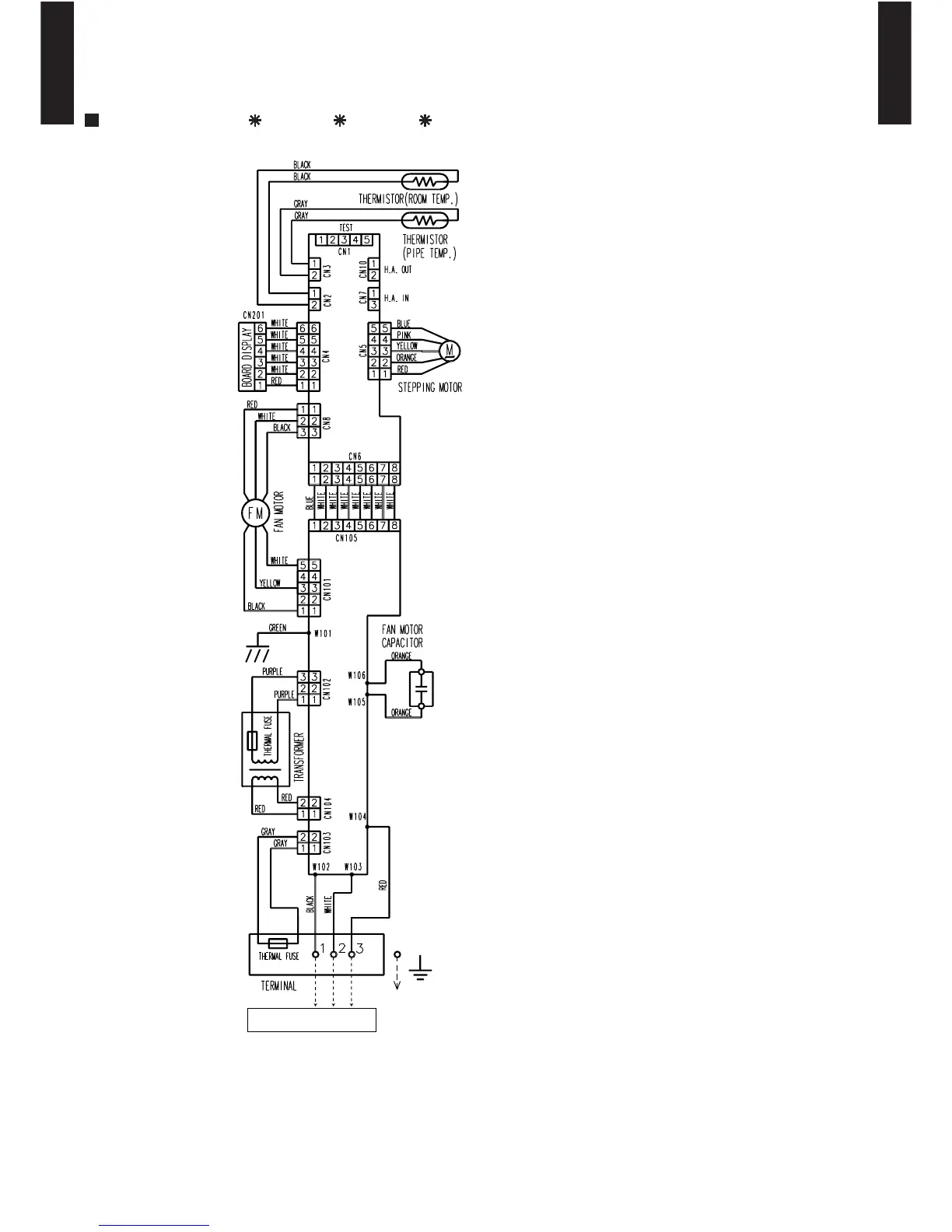
5-4. WALL MOUNTED MODEL
MODELS : AS 7L, AS 9L, AS 12L
CONTROL
BOARD
POWER
SUPPLY
BOARD
TO OUTDOOR UNIT
103°C
(N)

Other manuals for Fujitsu AR*9LUAB

Related product manuals