EasyManua.ls Logo

Fujitsu ASUH24LPAS - 3. Dimensions; 3-1. Compact cassette type; Models: ACUH07 LUAS1, ACUH09 LUAS1, ACUH12 LUAS1, and ACUH18 LUAS1

Fujitsu ASUH24LPAS
328 pages
To Next Page IconTo Next Page
To Next Page IconTo Next Page
To Previous Page IconTo Previous Page
To Previous Page IconTo Previous Page
Loading...
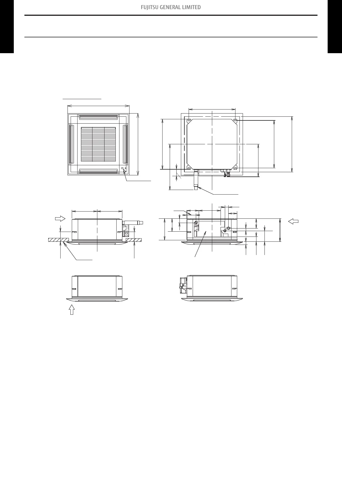
3. Dimensions
3-1. Compact cassette type
¢
Models: ACUH07LUAS1, ACUH09LUAS1, ACUH12LUAS1, and
ACUH18LUAS1
Unit: in (mm)
Ceiling
B
View A
22-7/16 (570): Indoor unit
Hanging bolt position
20-7/8 (530)
Hanging bolt position
Drain hose
A
4-7/8 (124)
Control Box
C
Grid type grille
View B
View C
20-7/8
(530)
2-15/16
(75)
14-9/16
(370)
21-1/4 (540)
11-1/4
(285)
11-1/4
(285)
4-1/2 (114)
4-1/2 (114)
10-5/16
(262)
9-5/8
(245)
5-13/16
(146)
1-9/16
(40)
4
(102)
5-5/16
(135)
9-13/16
(250)
1-3/5
(40)
3-7/8
(99)
1-3/16
(30)
1-3/16 (30)
2-5/16 (58)
4-1/8
(108)
Ceiling openings
22-13/16 to 24
(580 to 610)
24-7/16 (620)
24-7/16 (620)
IR receiver
- 13 -
3-1. Compact cassette type 3. Dimensions
MULTI-SPLIT TYPE
5-unit type
MULTI-SPLIT TYPE
5-unit type

Table of Contents

Other manuals for Fujitsu ASUH24LPAS

Related product manuals