EasyManua.ls Logo

Fujitsu ASUH24LPAS - Model: ADUH18 LUAS1

Fujitsu ASUH24LPAS
328 pages
To Next Page IconTo Next Page
To Next Page IconTo Next Page
To Previous Page IconTo Previous Page
To Previous Page IconTo Previous Page
Loading...
¢
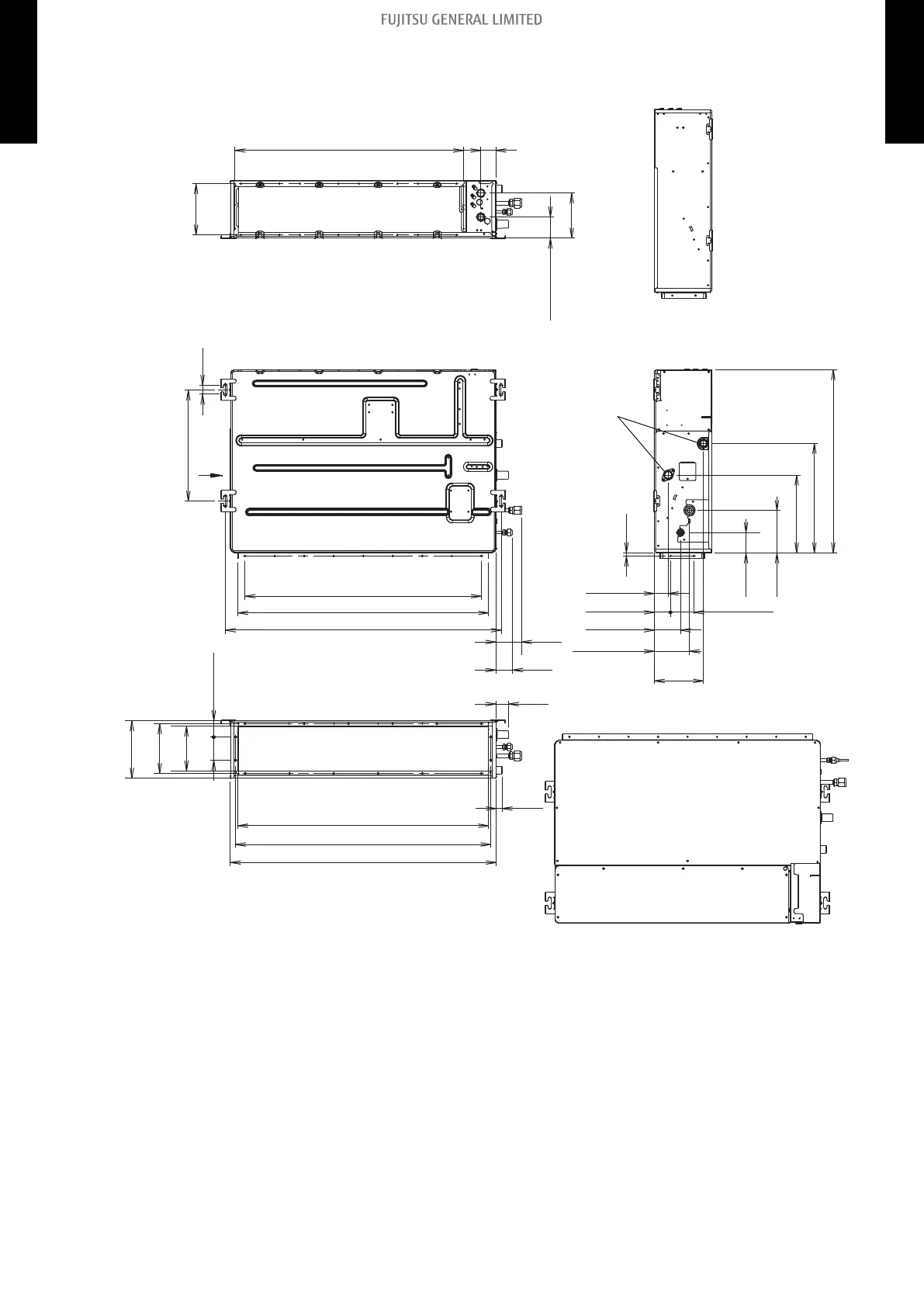
Model: ADUH18LUAS1
Unit: in (mm)
Rear view
View A
Top view
Side view
Front view
Bottom view
Drain port
2 (51)
30-1/2 (774)
6-7/8 (174)
2-13/16 (71)
6 (152)
3-7/16
(87)
2-3/16
(56)
33-7/16 (850)
36-3/4 (934)
3-15/16 (100) × 8 = 31-1/2 (800)
1-3/16 (30)
14-13/16 (377)
6-7/16
(163)
4-11/16 (119)
3-1/2 (89)
3-1/16 (78)
2-3/16 (55)
1-7/8 (47)
3/8 (10)
24-7/16 (620)
14-5/8 (371)
10-3/8 (264)
5-11/16
(144)
2-11/16
(69)
33-7/16 (850)
34 (864)
35-7/16 (900)
1-11/16 (43)
1-1/4
(31)
7-13/16
(198)
6-5/8
(168)
5-15/16
(151)
3-1/16
(78)
2-3/16 (55)
A
- 16 -
3-2. Slim duct type 3. Dimensions
MULTI-SPLIT TYPE
5-unit type
MULTI-SPLIT TYPE
5-unit type

Table of Contents

Other manuals for Fujitsu ASUH24LPAS

Related product manuals