EasyManua.ls Logo

FULTON PHW 1000 - Page 59

FULTON PHW 1000
84 pages
Print Icon
To Next Page IconTo Next Page
To Next Page IconTo Next Page
To Previous Page IconTo Previous Page
To Previous Page IconTo Previous Page
Loading...
Questions? Call (315) 298-5121, or visit us online at www.fulton.com
SECTION 3 PHW-IOM-2013-0214 OPERATION
3-23
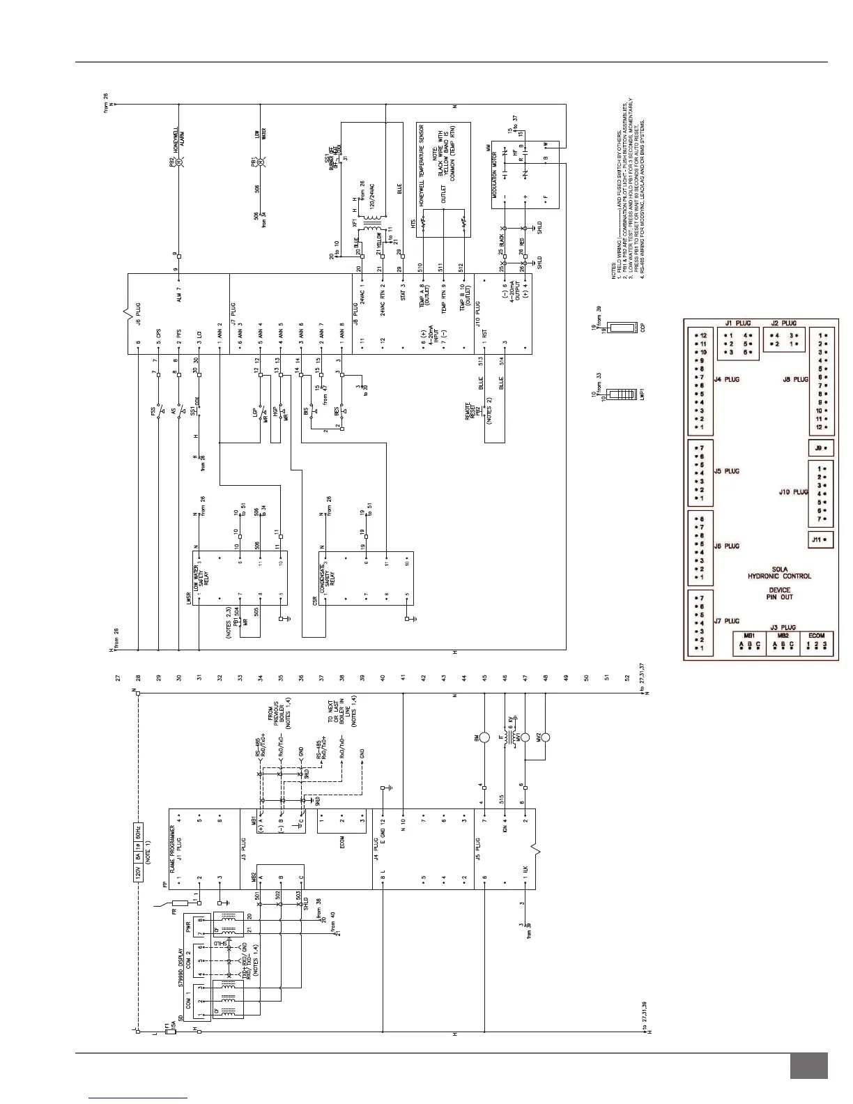
FIGURE 52 - EXAMPLE/TYPICAL
ELECTRICAL DIAGRAM

Table of Contents