EasyManua.ls Logo

FULTON RB Series - Page 11

FULTON RB Series
74 pages
Print Icon
To Next Page IconTo Next Page
To Next Page IconTo Next Page
To Previous Page IconTo Previous Page
To Previous Page IconTo Previous Page
Loading...
RB-RBC-IOMM-2015-1
Fulton Ltd
Page 5
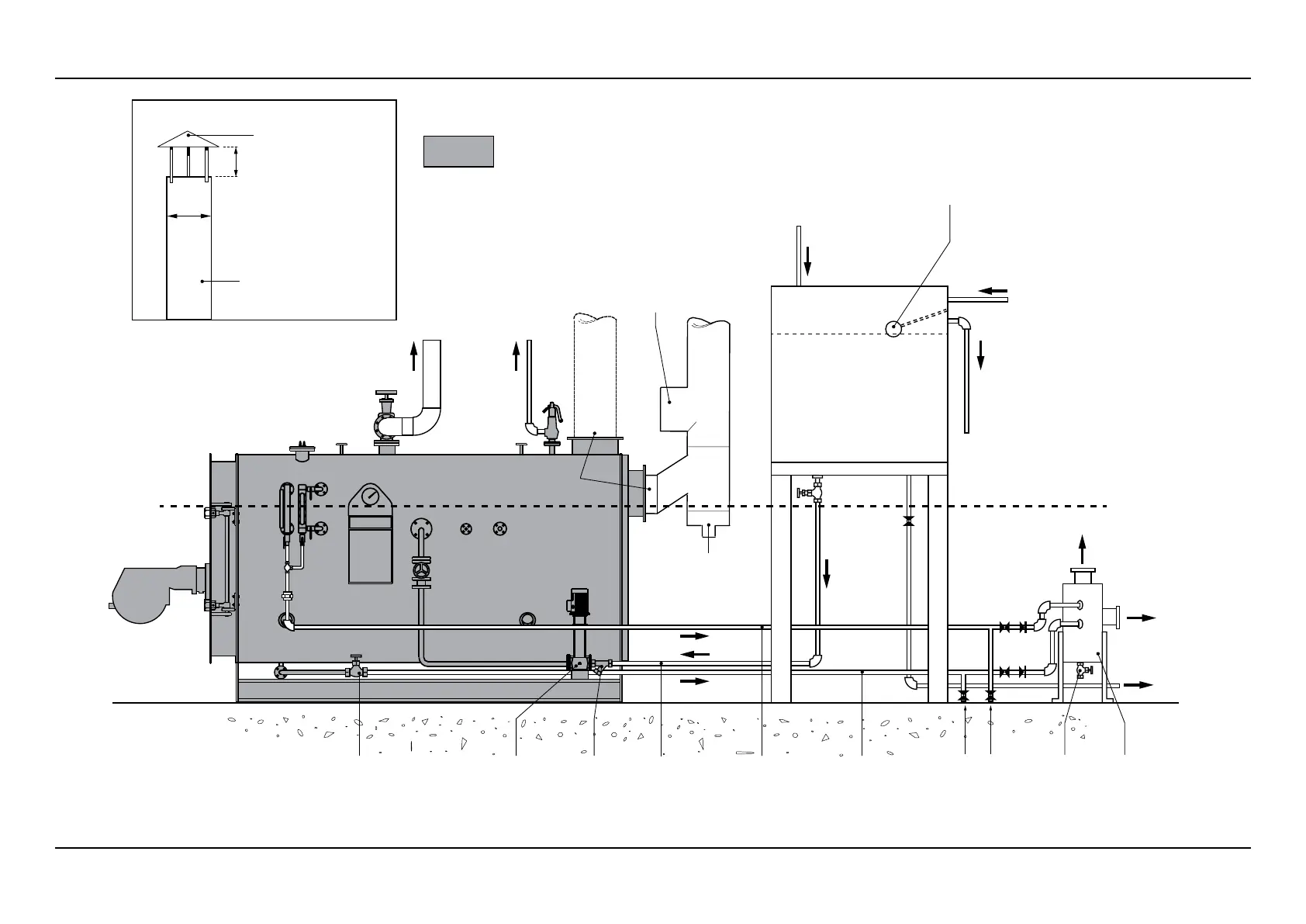
Figure. 2 - Typical Installation
Boiler Water Level
Overflow
Stainless steel
feedwater and
condensate
return tank
Vent
Blowdown
separator
Overflow
to drain
Drain
Drain
Isolating
gate/ball
valve
Strainer Plugged drains
Make-up feedwater
supply
Condensate
return (no flex)
Sight
glass/Ancillary
blowdown line
Feedwater
pump
Steam
supply
Pipe safety
valve to a
safe area,
using unions
and drain as
required.
Boiler
blowdown line
Boiler
blowdown valve
Boiler
feedwater
line
Drain
D
H
Flue
Cowl
D = Diameter of flue
H = 1.5 X D
Standard boiler trim
supplied with boiler
Clean-out
door
Flue spigot
Draught stabiliser
(when fitted)
Note: Ball float or solid state water
level controls available.

Table of Contents

Related product manuals