EasyManua.ls Logo

FUNAI 31A-250 - Page 20

FUNAI 31A-250
52 pages
Print Icon
To Next Page IconTo Next Page
To Next Page IconTo Next Page
To Previous Page IconTo Previous Page
To Previous Page IconTo Previous Page
Loading...
1-9-3
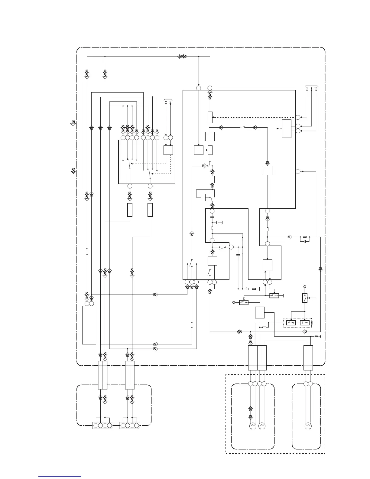
Audio Block Diagram
HM240BLA
REC
AMP
100
3
AUTO
BIAS
2
1
+5V
J982
TU701(TUNER UNIT)
J972
+5V
Q401
Q406
BIAS
OSC
Q402
Q405
(PB=ON)
Q403 (SWITCHING)
5
EQ
AMP
98
7
LINE
AMP
REC-ON
AUDIO HD-SW
CONTROL
MUTE
11
6
PB-ON
SP/LP-ON
P
TUNER
IN2
IN1
R
ALC
DET
SW
CTL
ALC
IC301 (AUDIO SIGNAL PROCESS)
IC151 (SWITCHING)
PB/EE
PB/EE
PB/EE
PB/EE
TUNER
TU-AUDIO
AUDIO
IN2
IN1
IN1
15
13
17
3
AUDIO-PB/REC
CN504
4 A-COM
6 AE-H
5 AE-H/FE-H
AUDIO
HEAD
AUDIO
ERASE
HEAD
ACE HEAD ASSEMBLY
FE HEAD
2 FE-H
1 FE-H-GND
CN501
MAIN CBA
PB-AUDIO SIGNAL REC-AUDIO SIGNAL
Mode : SP/REC
71
A-MUTE-H
AUDIO-SW-1
AUDIO-SW-2
IIC-BUS SCL
IIC-BUS SDA
TO SERVO/SYSTEM
CONTROL BLOCK
TO SERVO/SYSTEM
CONTROL BLOCK
FULL
ERASE
HEAD
68 69
SERIAL
DECODER
(DECK ASSEMBLY)
12
16
INV
AT T
AUDIO-IN1
AUDIO-OUT1
7
5
JACK CBA
JK101
CN101
AUDIO-IN2
AUDIO-OUT2
8
6
7
5
8
6
JK102
CN102
CN151
CN152
2
21
1
5
2
4
12
14
15
11
10
9
3
13
BUFFER
Q151
BUFFER
Q152
AUDIO-IN1
AUDIO-IN1
2
6
1
3
AUDIO-OUT1
AUDIO-OUT1
AUDIO-IN2
AUDIO-IN2
AUDIO-OUT2
AUDIO-OUT2
2
6
1
3

Related product manuals