EasyManua.ls Logo

Furuno DRS4D - Page 45

Furuno DRS4D
52 pages
Print Icon
To Next Page IconTo Next Page
To Next Page IconTo Next Page
To Previous Page IconTo Previous Page
To Previous Page IconTo Previous Page
Loading...
2
43
A
1
B
C
DRAWN
CHECKED
APPROVED
DWG.No.
TITLE
NAME
名称
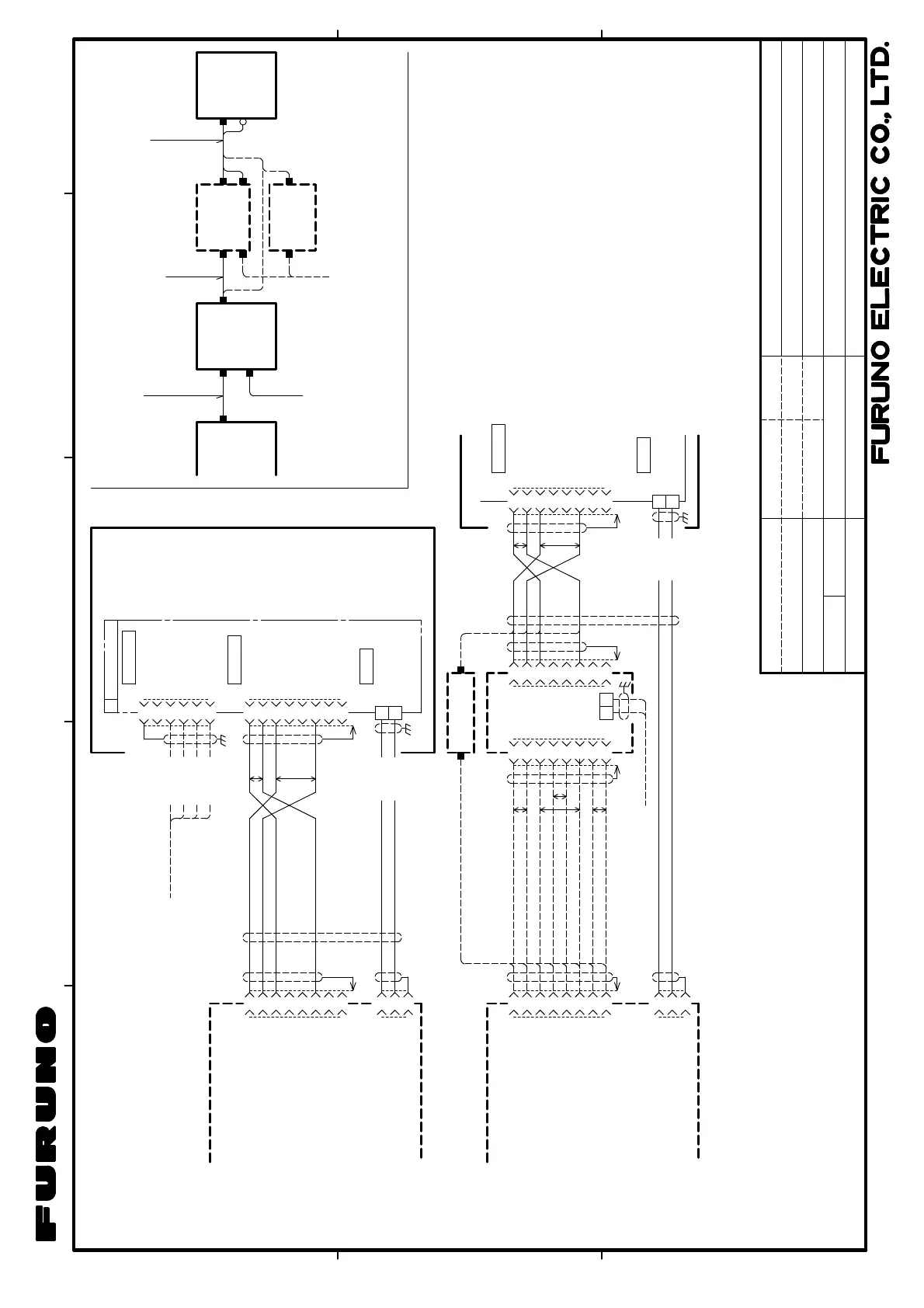
INTERCONNECTION DIAGRAM
相互結線図
REF.No.
SCALE MASS
kg
レーダーセンサー
RADAR SENSOR
T.YAMASAKI
DRS2D/4D
1
2
4
5
6
3
SHIELD
NC
NET-S
NET-L
NET-H
NET-C
FMC1.5/6ST
B1
アカ
クロ
RED
BLK
シロ
アオ
WHT
BLU
1
2
4
5
6
3
7
8
NC
NC
E_TD-P
NC
E_TD-N
E_RD-P
NC
E_RD-N
1
2
P
P
GP-330B
SC-30
φ7
RADAR SENSOR
レーダー
センサー
48V-H
NMEA2000
POWER
J603
J301
J207
WS-200 etc.
48V-C
NETWORK
航法装置またはセンサー
NAV.EQUIPMENT OR SENSOR
CB-05BFFM,1/2/6m
*2
M12-05BFFM,1/2/6m
クロ BLK
シロ WHT
RJ45
*3
P
P
PP
1
2
4
5
6
3
7
8
NC
NC
E_TD-P
NC
E_TD-N
E_RD-P
NC
E_RD-N
*3
1
2
4
5
6
3
7
8
RJ45
*3
1
2
4
5
6
3
7
8
RJ45 J207
NETWORK
1
2
φ7
クロ BLK
シロ WHT 48V-H
POWER
J301
48V-C
1
2
(+)
(-)
J3
VVRx2C *1
HUB-101
ETHERNET HUB
*2
JUNCTION BOX
または OR
DRS2D/4D
10/15/20/30m
MOD-ASW0001,φ6
TL-CAT-012 *2
P
P
RJ45RJ45
1
2
4
5
6
3
7
8
1
2
3
GND
RJ45
MJ-A3SPF
SHIELD
*3
*3
MOD-ASW0001,10/15/20/30m,φ6
1
2
4
5
6
3
7
8
1
2
3
MJ-A3SPF
*3
MFD8/12
MFDBB(MPU-001)
MFD8/12
MFDBB(MPU-001)
マルチファンクションディスプレイ
MOD-WPAS0001,3m
MOD-WPAS0001,3m
*2
*2
RJ45
*3
12-24VDC
MOD-Z072,2/5/10m,φ6(CROSS) OR
RJ45
*3
MULTI FUNCTION DISPLAY
DRS2D/4D
HUB-101
H.MAKI
MOD-Z072
MOD-WPAS0001
RJ45
RJ45
24VDC
3.5m
マルチファンクションディスプレイTZT9/14接続の場合
CONNECTION TO MULTI FUNCTION DISPLAY TZT9/14
または
OR
DRS2D/4D
RJ45
12-24VDC
PSU-012
*2
PSU-017
*2
5m
ORまたは
RJ45
TZT9/14
POWER SUPPLY
UNIT
MOD-ASW0001
RJ45
03-174-6001-2
RTR-090A/091A
NOTE
1. SHIPYARD SUPPLY.
2. OPTION.
注記
1)造船所手配。
2)オプション。
3)コネクタは工場にて取付済み。
3. CONNECTOR PLUG FITTED AT FACTORY.
TZT9/14 REQUIRES PSU-012 OR PSU-017 TO CONNECT A RADAR SENSOR.
TZT9/14をレーダーセンサーに接続するときは、PSU-012またはPSU-017が必要。
PSU-017はブレーカを介して電源に接続すること。
PSU-017 REQUIRES BREAKER TO CONNECT SOURCE.
SW_P
E_TD_P
E_TD_N
E_RD_P
SW_N
E_RD_N
PWR_SW_P
PWR_SW_N
+48V_OUT
SW_P
E_TD_P
E_TD_N
E_RD_P
SW_N
E_RD_N
PWR_SW_P
PWR_SW_N
11/Jul/2016
11/Jul/2016
C3567-C01- E
GND
SHIELD
+48V_OUT
S-1
12/Jul/2016 H.MAKI

Related product manuals