EasyManua.ls Logo

Furuno DRS4D - Page 47

Furuno DRS4D
52 pages
Print Icon
To Next Page IconTo Next Page
To Next Page IconTo Next Page
To Previous Page IconTo Previous Page
To Previous Page IconTo Previous Page
Loading...
2
43
A
1
B
C
1
2
4
5
6
3
7
8
NC
NC
NC
NC
RJ45 J2
*3
シロ WHT
クロ BLK
1
2
4
5
6
3
7
8
NC
NC
NC
NC
RJ45J3
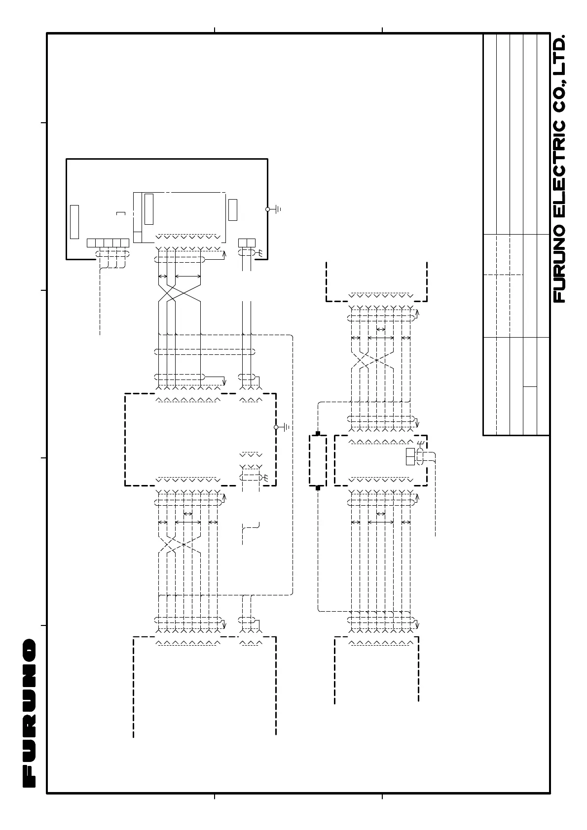
PSU-012
POWER SUPPLY UNIT
パワーサプライユニット
1
2
4
5
6
3
7
8
NC
NC
NC
NC
B2
1
2
4
5
3
NET-S
NET-L
NET-H
NET-C
SHIELD
NMEA2000
TB102
RJ45
1
2
48V-H
48V-Cクロ BLK
シロ WHT
TB101
P
P
POWER
J207MOD-ASW0001,10/15/20/30m,φ6
NETWORK
RW-4747,0.3m
φ7
*1
IV-2sq.
空中線部
ANTENNA UNIT
RSB-118
1
2
3
48V-H
48V-L
SHIELD
MJ-A3SPF
*3
J11J1
1
2
3
(+)
(-)
*3 *3
VL3P-VVS2x2C,5m
P
P
PP
*2
P
P
PP
1
2
4
5
6
3
7
8
RJ45
*3
1
2
4
5
6
3
7
8
HUB-101
ETHERNET HUB
RJ45
*3
1
2
4
5
6
3
7
8
RJ45
*3
MFD8/12
MFDBB(MPU-001)
または OR
JUNCTION BOX
TL-CAT-012
MOD-WPAS0001,3m
MOD-Z072,2/5/10m,φ6(CROSS) OR
*2
MOD-WPAS0001,3m
1
2
(+)
(-)
J3
MOD-Z072,2/5/10m,φ6
1
2
4
5
6
3
7
8
RJ45
*3
MULTI-FUNCTION DISPLAY
MFDBB(MPU-001)
MFD8/12
マルチファンクションディスプレイ
1
2
3
MJ-A3SPF
*3
MFDBB(MPU-001) ONLY
12-24VDC
PSU-012を使わない場合(MFDBBのみ)
WHEN PSU-012 IS NOT USED (FOR MFDBB ONLY)
*2
1
2
4
5
6
3
7
8
NC
NC
NC
NC
*3
P
P
PP
RJ45 J2
PSU-012
*2
MOD-Z072,2/5/10m,φ6
12-24VDC
VVRx2C *1
DRAWN
CHECKED
APPROVED
DWG.No.
TITLE
NAME
名称
INTERCONNECTION DIAGRAM
相互結線図
REF.No.
SCALE MASS
kg
レーダーセンサー
RADAR SENSOR
T.YAMASAKI
DRS12A
航法装置またはセンサー
NAV. EQUIPMENT OR SENSOR
GP-330B
SC-30
WS-200 etc.
NOTE
注記
*4
*1)造船所手配。
*2)オプション。
*3)コネクタは工場にて取付済み。
*4)ターミネータを接続する。
*1: SHIPYARD SUPPLY.
*2: OPTION.
*3: CONNECTOR PLUG FITTED AT FACTORY.
*4: ATTACH A TERMINATOR.
H.MAKI
RTR-094A
03-174-6003-4C3571-C01- F
GND
SHIELD
SW_P
E_TD_P
E_TD_N
E_RD_P
SW_N
E_RD_N
PWR_SW_P
PWR_SW_N
+48V_OUT
SW_P
E_TD_P
E_TD_N
E_RD_P
SW_N
E_RD_N
PWR_SW_P
PWR_SW_N
E_TD_P
E_TD_N
E_RD_P
E_RD_N
E_TD_P
E_TD_N
E_RD_P
E_RD_N
E_TD_P
E_TD_N
E_RD_P
E_RD_N
E_TD_P
E_TD_N
E_RD_P
E_RD_N
11/Jul/2016
11/Jul/2016
S-3
12/Jul/2016 H.MAKI

Related product manuals