EasyManua.ls Logo

Gamry Instruments Interface 1000 - Johnson Noise in Z

Gamry Instruments Interface 1000
88 pages
Print Icon
To Next Page IconTo Next Page
To Next Page IconTo Next Page
To Previous Page IconTo Previous Page
To Previous Page IconTo Previous Page
Loading...
Chapter 8: Measurement of Small Signals--Measurement System Model and Physical Limitations
8 - 2
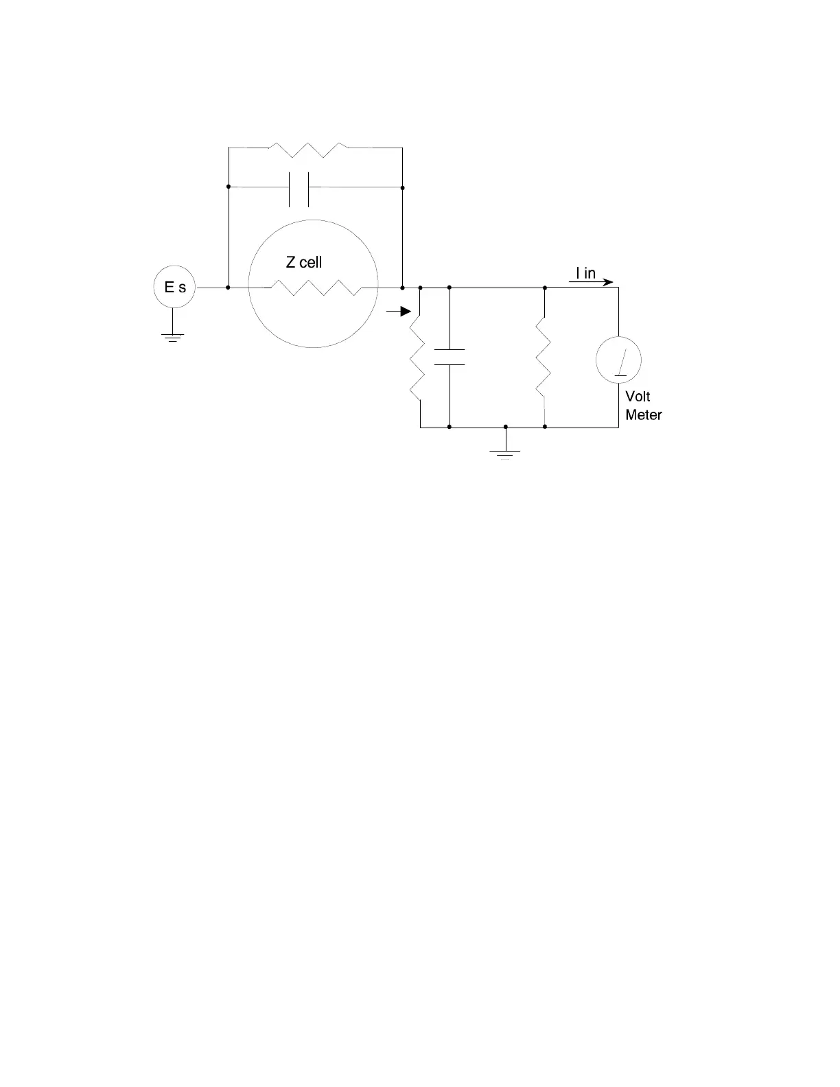
Figure 8-1
Equivalent Measurement Circuit
Icell
C shunt
R shunt
C in
R in
Rm
Unfortunately, technology limits high-impedance measurements because:
Current measurement circuits always have non-zero input capacitance, i.e., C
in
> 0.
Infinite R
in
cannot be achieved with real circuits and materials.
Amplifiers used in the meter have input currents, i.e., I
in
> 0.
The cell and the potentiostat create both a non-zero C
shunt
and a finite R
shunt
.
Additionally, basic physics limits high-impedance measurements via Johnson noise, which is the inherent
noise in a resistance.
Johnson Noise in Z
cell
Johnson noise across a resistor represents a fundamental physical limitation. Resistors, regardless of
composition, demonstrate a minimum noise for both current and voltage, per the following equations:
E = (4kTRF)
1/2
I = (4kTF/R)
1/2
where
k = Boltzman’s constant, 1.38 × 10
−23
J/K
T = temperature in K
F = noise bandwidth in Hz
R = resistance in Ω.
For purposes of approximation, the noise bandwidth, F, is equal to the measurement frequency. Assume a
10
11
Ω resistor as Z
cell
. At 300 K and a measurement frequency of 1 Hz, this gives a voltage noise of 41 µV
rms. The peak-to-peak noise is about five times the rms noise. Under these conditions, you can make a
voltage measurement of 10 mV across Z
cell
with an error of about 0.4%. Fortunately, an AC
measurement can reduce the bandwidth by integrating the measured value at the expense of additional
measurement time. With a noise bandwidth of 1 mHz, the voltage noise falls to about 1.3 µV rms.
Current noise on the same resistor under the same conditions is 0.41 fA. To place this number in
perspective, a 10 mV signal across this same resistor generates a current of 100 fA, or again an error of

Table of Contents