EasyManua.ls Logo

GBC ORCA 64TH - Solenoid Valve

GBC ORCA 64TH
35 pages
Print Icon
To Next Page IconTo Next Page
To Next Page IconTo Next Page
To Previous Page IconTo Previous Page
To Previous Page IconTo Previous Page
Loading...
MANUFACTURE OR FOR ANY OTHER PURPOSE WITHOUT WRITTEN
COPIED OR DISCLOSED IN WHOLE OR IN PART, OR USED FOR
FOR ENGINEERING INFORMATION ONLY AND SHALL NOT BE REPRODUCED,
GBC CLAIMS PROPRIETARY RIGHTS TO THE
MATERIAL DISCLOSED ON THIS DRAWING. IT IS ISSUED IN CONFIDENCE
PERMISSION FROM GBC.
PROPRIETARY
C
4151 Anderson Road, DeForest, WI 53532
This print is the property of GBC. The information thereon is remitted in confidence.
UNLESS OTHERWISE SPECIFIED
TOLERANCE
DIM. AS
SHOWN
TOL.
+ 1/64
+ .050
+ .020
+ .010
+ .005
X/X
X
XX
XXX
XXXX
ANGLES
+ 1D
FINISH
TO BE
125
TITLE :
DATE :
DRAWN BY :
DWG SCALE : DWG :
REVISION
CHECKED BY : Sean Flood
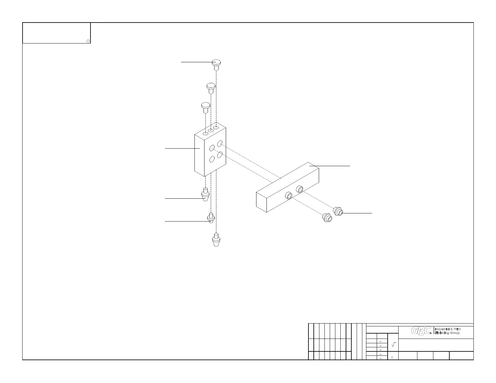
Solenoid Valve Assembly
GBC Orca 64 TH
O64TH - 014N/AN/A07/10/03
(3) 703070291
Plug, PT 1/4"
(1) 703070285
Manifold Block, SS5Y7-20-02
(4) 703070287
Fitting, KQ2H08-02S-X2
(2) 703070290
Silencer, AN203-02
703070287
(1) 703070284
Solenoid Valve, SY7220-6G-02

Related product manuals