EasyManua.ls Logo

GE Range - Page 51

GE Range
68 pages
Print Icon
To Next Page IconTo Next Page
To Next Page IconTo Next Page
To Previous Page IconTo Previous Page
To Previous Page IconTo Previous Page
Loading...
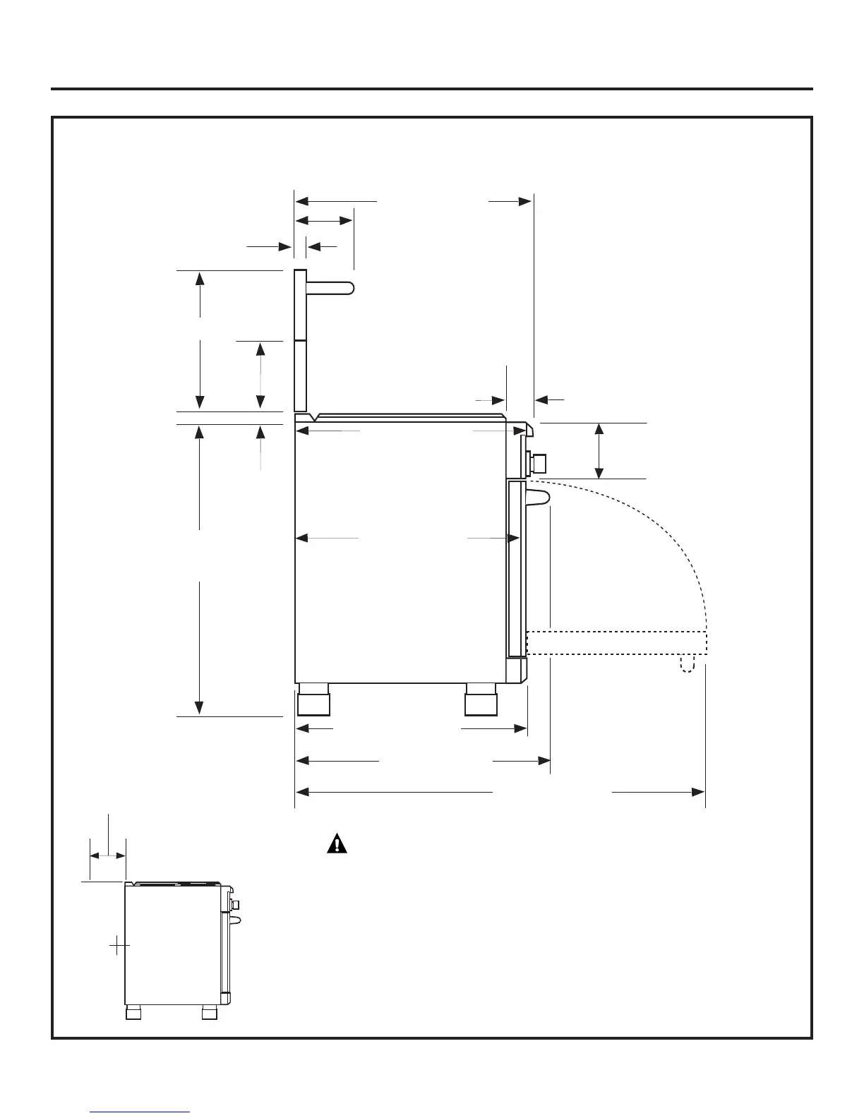
DIMENSIONES Y ESPACIOS DEL PRODUCTO
Información de diseño
Modelos de cocinas de 48", 36" y 30"
51
12” mín. respecto de materiales
combustibles o 0” respecto de
materiales no combustibles sobre la
super
ficie de cocción
48-1/4”con la puerta
del horno abierta
31-1/16”Hasta
el frente de la manija
35-1/4”
a
36-3/4”
30-36”
12”
13/16”
10-1/2”
28-7/8”
hasta el lado frontal
27-1/2” hasta
el lado biselado –
Profundidad máxima
de gabinete
adyacente para
instalaciones a nivel
28-1/4” Hasta
el frentede la puerta
Accesorios
opcionales para
salpicadero
Espacio de 0”
respecto de una
par
ed trasera
o lateral debajo
de la superficie
de cocción
ADVERTENCIA:
El accesorio para salpicadero de
acer
o ino
xidable de 12” de altura
debe instalarse en combinación con
un salpicadero no combustible a
medida.
El salpicadero terminado debe cubrir
toda la par
ed trasera hasta la parte
inferior de una capucha, o cuando no
haya una capucha, 48" respecto de
elementos combustibles.
3-3/16”
Profundidad del
panel de control
7” altura
del panel de control
28-1/4” hasta
el borde biselado
del lado redondeado
del panel de control
1”

Table of Contents

Other manuals for GE Range

Related product manuals