EasyManua.ls Logo

GE Range - Product Dimensions and Clearances

GE Range
68 pages
Print Icon
To Next Page IconTo Next Page
To Next Page IconTo Next Page
To Previous Page IconTo Previous Page
To Previous Page IconTo Previous Page
Loading...
PRODUCT DIMENSIONS AND CLEARANCES
Design Information
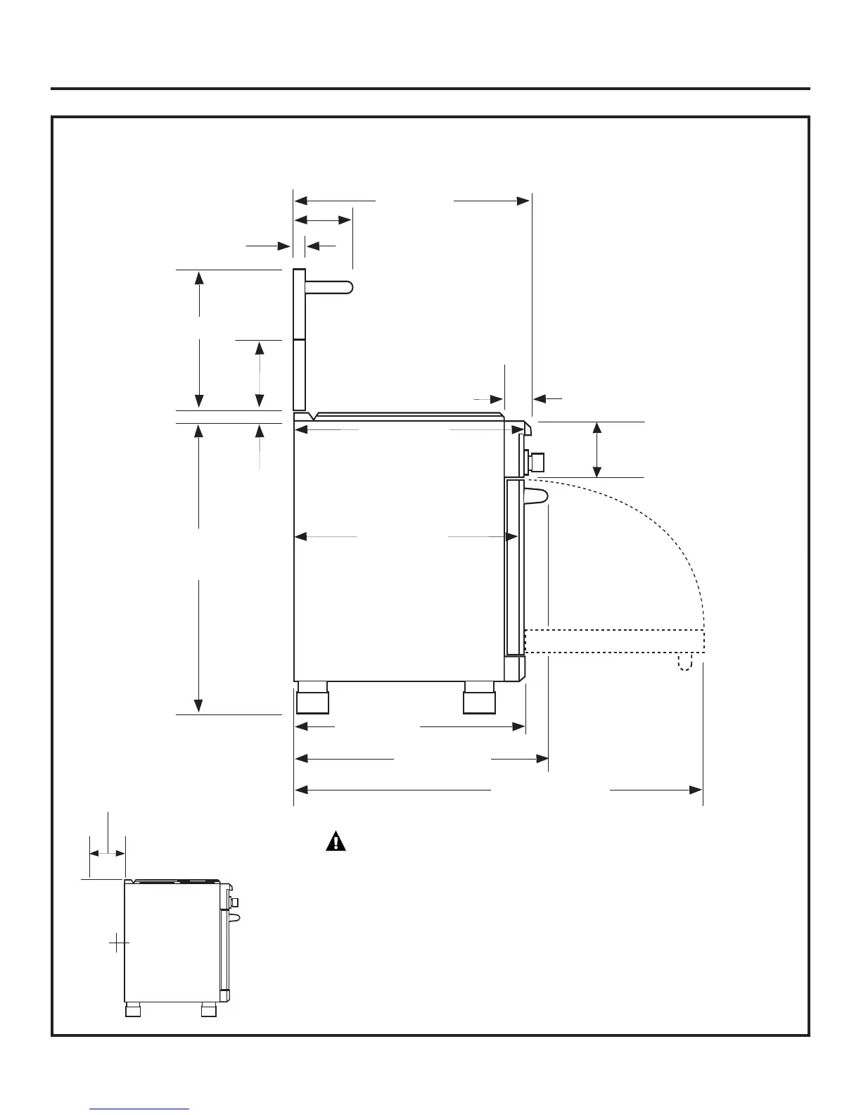
48", 36" and 30" Range Models
7
12" Min. to combustibles or 0" to
a non-combustible material above
the cooking surface
48-1/4”
With Oven Door Open
31-1/16”
To Front of Handle
35-1/4”
to
36-3/4”
30-36”
12”
13/16”
10-1/2”
28-7/8”
To Front Edge
27-1/2” To
Beveled Edge –
Maximum
Adjacent Cabinet
Depth for
Flush Installation
28-1/4”
To Front of Door
Optional
Backsplash
Accessories
0” Clearance
to a back or
side wall below
the cooking
surface
WARNING:
The 12” high stainless steel
backsplash accessor
y must be
installed in combination with a
custom non-combustible backsplash.
The finished backsplash must cov
er
the entire back wall up to the bottom
of a hood, or when ther
e is no hood,
48” to combustibles.
3-3/16”
Control Panel
Depth
7” Control Panel
Height
28-1/4” To
Beveled
Edge of Control
Panel Bullnose
1”

Table of Contents

Other manuals for GE Range

Related product manuals