EasyManua.ls Logo

Generac Power Systems 14 kW LP

Generac Power Systems 14 kW LP
210 pages
To Next Page IconTo Next Page
To Next Page IconTo Next Page
To Previous Page IconTo Previous Page
To Previous Page IconTo Previous Page
Loading...
PART 3
TRANSFER SWITCH
Page 80
Section 3.4
Diagnostic Tests
A B
7 9
4 6
1 3
TR1
SW1
205
C2
SW3
E1
SW2
C1
1 2
1 2
N1 N2
E1 E2
E2
T1 T2
B
A
G
E
F
C
D
H
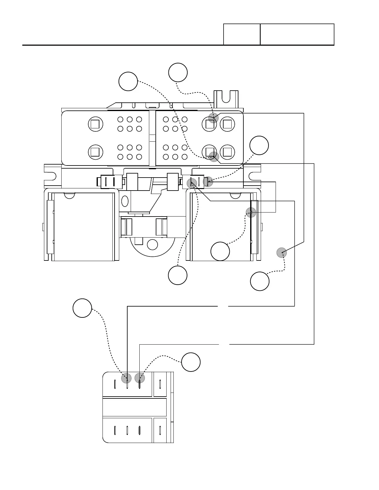
Figure 76. Standby Control Circuit Test Points

Table of Contents

Related product manuals