EasyManua.ls Logo

Generac Power Systems 14 kW LP

Generac Power Systems 14 kW LP
210 pages
To Next Page IconTo Next Page
To Next Page IconTo Next Page
To Previous Page IconTo Previous Page
To Previous Page IconTo Previous Page
Loading...
PART 3
TRANSFER SWITCH
Section 3.4
Diagnostic Tests
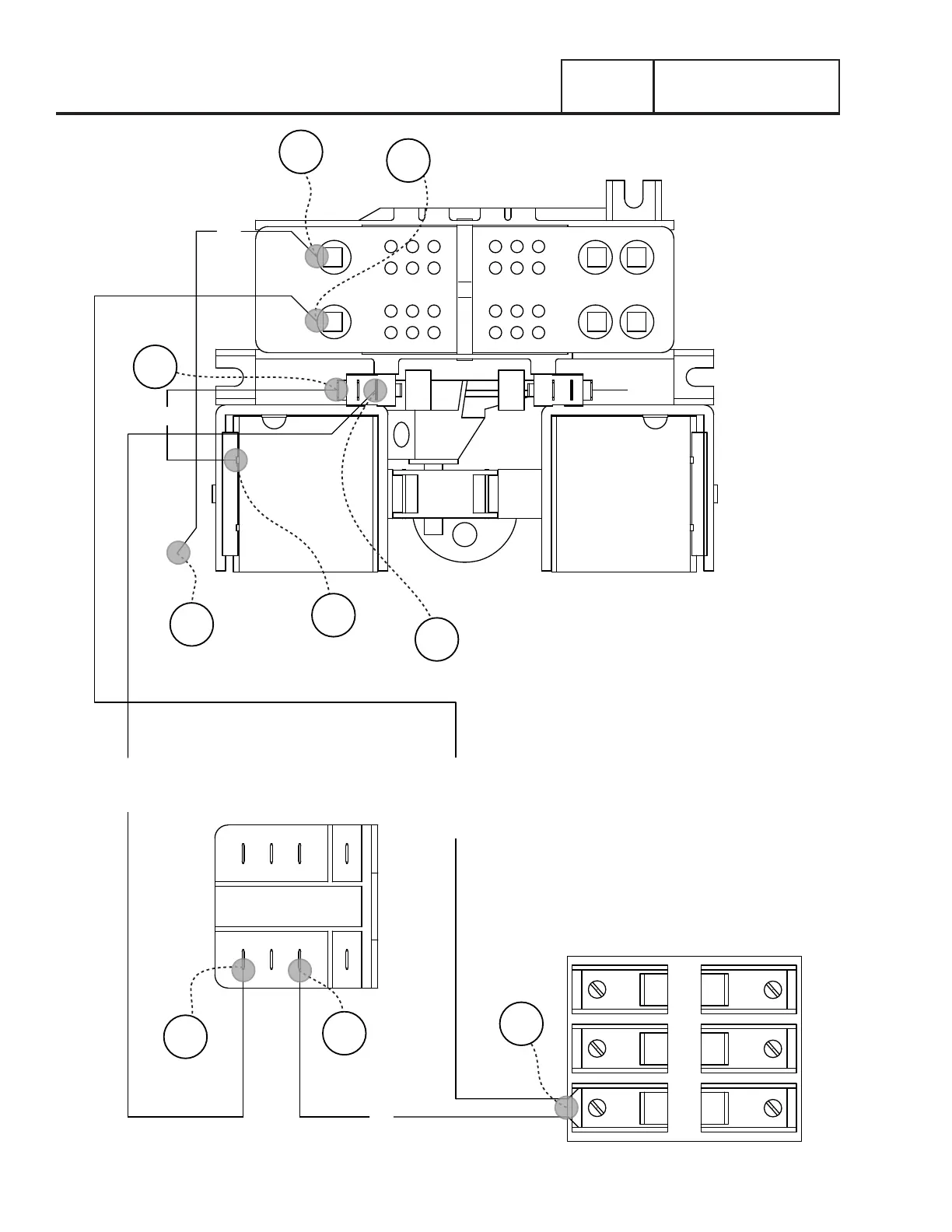
Figure 78. Utility Control Circuit Test Points
N1A
N1A
A B
7 9
4 6
1 3
TR1
SW1
B
C2
SW3
SW2
C1
A
N2A
N2A
F1 F2 F3
A A A
B B B
1 2
1 2
N1 N2
E1 E2
T1 T2
126
A
B
I
G
C
D
E
F
H
Page 82

Table of Contents

Related product manuals