EasyManua.ls Logo

Glen Dimplex LSA 60TUR - Maßbilder; Dimension Drawings; Schémas Cotés

Glen Dimplex LSA 60TUR
Print Icon
To Next Page IconTo Next Page
To Next Page IconTo Next Page
To Previous Page IconTo Previous Page
To Previous Page IconTo Previous Page
Loading...
A-II 452167.66.02 · FD 9509 www.glendimplex.de
Anhang · Appendix · Annexes
LSA 60TUR
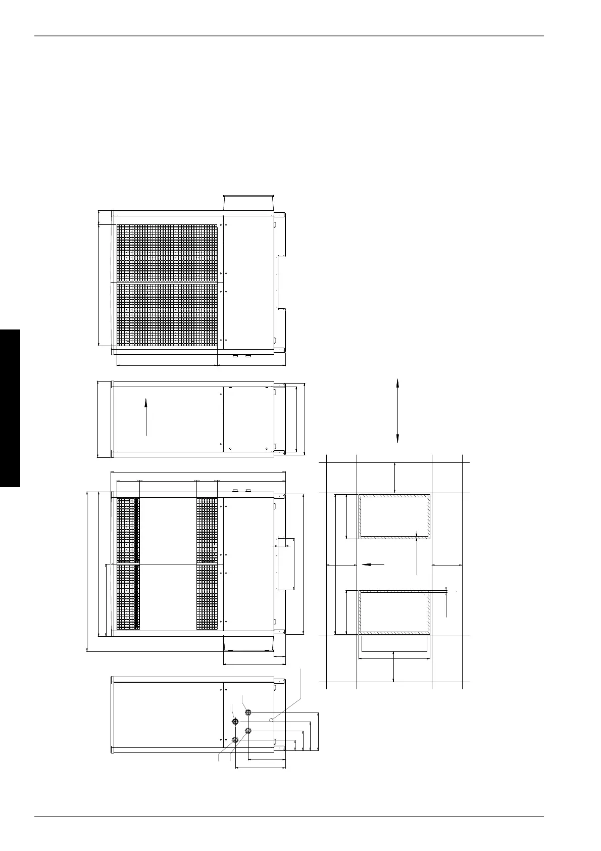
1 Maßbilder / Dimension Drawings / Schémas cotés
1.1 Maßbild / Dimension Drawing / Schéma coté
140
380
660
490
260
500
816
860
1900
1000
2
3
0
0
2110
152
1.2
1.1
1.5
1.6
Kondensatablauf
1
3
2
2
9
0
1
944
Luftrichtung
682
1844
950
3
0
2
7
5
3
2
6
8
9
0
0
1861598
100
1m
2m
1m
1m
0,58 m0,58 m
1,84 m
0,94 m
Luftrichtung /
Direction of air flow /
Sens d'écoulement air
Hauptwindrichtung
bei freier Aufstellung
Main wind direction
with free-standing installation /
Direction des vents dominants en cas
d’installation sur emplacement dégagé
Standfläche Wärmepumpe und Mindestabstände /
Base area heating pump and minimum clearances /
Surface de pose de pompe à chaleur et écartements minimau
umlaufend
all around
sur la circonférence 0,03m
1.1 Heizwasservorlauf
Ausgang aus Wärmepumpe
R 2
1.2 Heizwasserrücklauf
Eingang in Wärmepumpe
R 2
Heating water flow
Output from heat pump
R 2
Heating water return flow
Input into the heat pump
R 2
Circuit aller d'eau de chauffage
Sortie de la pompe à chaleur
R 2
Circuit retour d'eau de chauffage
Entrée dans la pompe à chaleur
R 2
Source de chaleur
Entrée dans la pompe à chaleur
R 2
Source de chaleur
Sortie de la pompe à chaleur
R 2
1.5 Wärmequelle
Eingang in Wärmepumpe
R 2
1.6 Wärmequelle
Ausgang aus Wärmepumpe
R 2
Heat source
Input into the heat pump
R 2
Heat source
Output from heat pump
R 2
umlaufend
all around
sur la circonférence 0,03m

Table of Contents