EasyManua.ls Logo

golmar 3403 - Page 19

golmar 3403
25 pages
Print Icon
To Next Page IconTo Next Page
To Next Page IconTo Next Page
To Previous Page IconTo Previous Page
To Previous Page IconTo Previous Page
Loading...
SEC
PRI
~~
+ +
--
34
35
JP1
FA-Plus/C
SEC
PRI
~~
+ +
--
CV+CV- D
Malla
Vin-AinAout Vin+ Vout-Vout++
-
CV+CV- D
Malla
Vin-AinAout Vin+ Vout-Vout++
-
JP
4321
JP
4321
CN1 CN2CN1 CN2
JP2
A
A
D
D
CT +
+
V
pi
V
d1
M
pi
M
d1
_
_
A
D
CT
+
V
d2
M
d2
_
A D+
V
po
M
po
_
D2L-Plus/2H
V
p
M
p
A D
_
+
EL561
JP1
V
p
M
p
A D
_
+
EL561
JP1
JP2 JP1
A
A
D
D
CT +
+
V
pi
V
d1
M
pi
M
d1
_
_
A
D
CT
+
V
d2
M
d2
_
A D+
V
po
M
po
_
D2L-Plus/2H
V
p
M
p
A D
_
+
EL561
JP1
V
p
M
p
A D
_
+
EL561
JP1
1
4
7
2
5
8
3
6 0
9
C
1
4
7
2
5
8
3
6 0
9
C
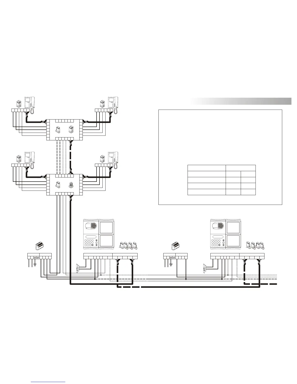
INSTALLATION DIAGRAMS
FA-Plus/C or FA-Plus
Main Main
Slave door panelMaster door panel
*Place this power supply
as closest as possible
to the first distributor.
* Take off JP1 jumper
of all the distributors
except in the last one.
IMPORTANT: For this type of installation, the door panels must have plugged an EL560 module
in each and the monitors must have an EL561 plugged in each.
If the CTO terminal is wired, only the distributor connected to the called monitor
will be active. Change the JP2 jumper position of the distributors to enable
this function.
IMPORTANT:
IMPORTANT:
IMPORTANT:
IMPORTANT:
1,00mm² 2,50mm²
0,25mm² 0,25mm²
CAT-5 CAT-5
Terminal
SECTIONS CHART
50m.
Distance
150m.
A , A , A, D
in out
V , V , V , M
in+,- out+,- p,d p,d
+, , CV+, CVCTO, CT,
For longer distances than the specified contact with your distributor.
ideo installation without coaxial cable.
v
The installation diagram shows the connection of a video system with one or several door
panels for the same building.
If the system has one door panel only, override the wiring to the second door panel.
If the system has more than one door panel, wire the second panel as shown on the
diagram. In case of more than two door panels, wire them as the second is connected.

Related product manuals