EasyManua.ls Logo

Goodman AEPF - Dimensions and Dipswitch Configuration

Goodman AEPF
8 pages
Print Icon
To Next Page IconTo Next Page
To Next Page IconTo Next Page
To Previous Page IconTo Previous Page
To Previous Page IconTo Previous Page
Loading...
Product sPEciFicAtions
4 www.goodmanmfg.com SS-GMVC95
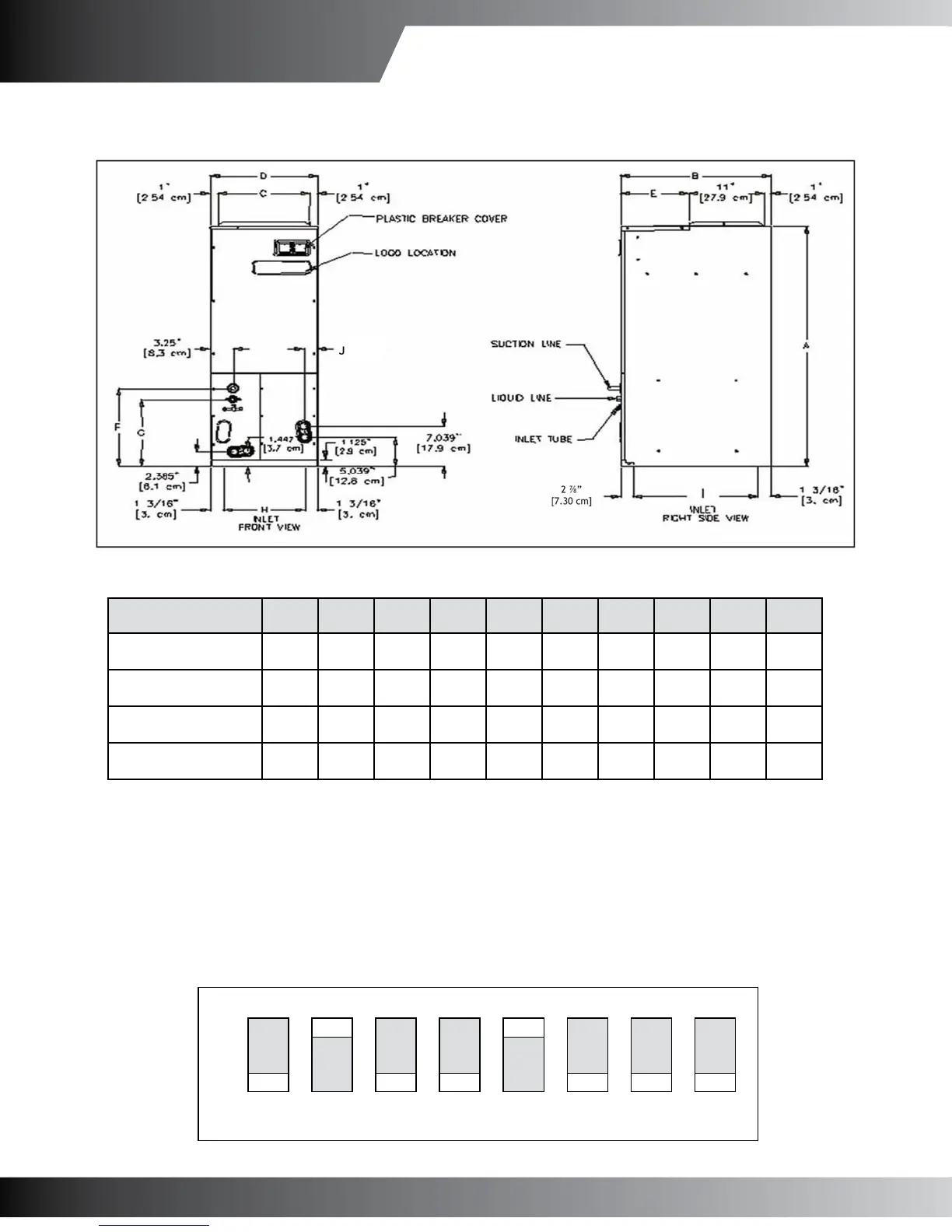
diMEnsions
TheAEPFairhandlerblowermotorispre-programmedforoperationatfourdistinctairowlevelswhenoperatingintheCooling,
HeatPumpheating,Backupheating(ElectricHeating),andBackup+HeatPumpheatingmodes.Eachmodehasfourlevelsto
deliverdifferentCFM.SimplyipthedipswitchforadifferentCFMcombination.
AEPF diPswitcHEs
sEtting tHE Motor
O

AEPF183016
46¾” 22” 17½” 19½” 10” 14½” 11
15
/
16
17⅛” 17
15
/
16
2”
AEPF303616
53¼” 24” 20” 22” 12” 14½” 11
15
/
16
19⅝” 19
15
/
16
1
13
/
16
AEPF313716
53¼” 24” 20” 22” 12” 14½” 11
15
/
16
19⅝” 19
15
/
16
1
13
/
16
AEPF426016
53¼” 24” 20” 22” 12” 14½” 11
15
/
16
19⅝” 19
15
/
16
1
13
/
16

Other manuals for Goodman AEPF

Related product manuals