EasyManua.ls Logo

Goodman ARUF42C14AA - Page 17

Goodman ARUF42C14AA
24 pages
Print Icon
To Next Page IconTo Next Page
To Next Page IconTo Next Page
To Previous Page IconTo Previous Page
To Previous Page IconTo Previous Page
Loading...
17
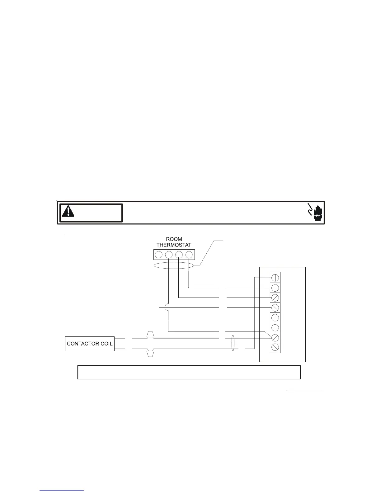
Air Handler Low Voltage Connections
The following composite wiring diagrams detail various configurations in which the air handlers can be used. Examples
include single-stage cooling and heat pump with single or two-stage electric heating. All these configurations can be applied
with convenient connections to outdoor thermostat applications.
The following sections are detailed:
Single-Stage Cooling
Heat Pump
Each diagram details the connections between room thermostat and the air handlers, and the connections between the air
handlers and the Condensing Unit (or Heat Pump) with optional connections to Outdoor Thermostats. For each configura-
tion, refer to the explanation of the proper jumper(s) to remove for the corresponding blower speed that will result in the
programmed fixed speed ECM motor.
IMPORTANT: WHEN MATCHING THE ASPT AIR HANDLERS TO A SINGLE SPEED COOLING OR HEAT
PUMP UNIT, REMEMBER TO CONNECT “Y” FROM THE THERMOSTAT TO THE “Y2” ON THE LOW
VOLTAGE TERMINAL BOARD.
An equivalent thermostat can be used in place of the manufacturer’s thermostat part number.
NOTE: Some models feature low voltage wires and do not include a terminal block. For those applications use the corresponding
colored wires.
NOTES:
1) OUTDOOR THERMOSTAT (OT-1) SHOULD BE THE
FIRST TO CLOSE AND THE LAST TO OPEN.
2) JUMPER W1 AND W2 TOGETHER IF OT-2 IS NOT
USED.
3) REMOVE WIRE WHEN USING OUTDOOR THERMO-
STAT.
NOMENCLATURE:
OT - OUTDOOR THERMOSTAT (OPTIONAL)
EHR - EMERGENCY HEAT RELAY (OPTIONAL)
COLOR CODES
RD - RED
YL - YELLOW
BL - BLUE
BR - BROWN
OR - ORANGE
WH - WHITE
Wiring is subject to change. Always refer to the wiring diagram on the unit for the most up-to-date wiring.
COOLING UNIT WITH OPTIONAL HEAT KITS OF 10 kW AND BELOW
GR
C
W1
YW
W2
Y2
Y1
O
G
R
TB
YL
BL
TO CONDENSING UNIT
24V CONNECTION
BL
YL
YL
WH
GR
RD
#18 GA. 4 WIRES WITH COOLING
3 WIRES WITHOUT
AIR HANDLER
HIGH VOLTAGE!
DISCONNECT ALL POWER BEFORE SERVICING.
MULTIPLE POWER SOURCES MAY BE PRESENT. FAILURE TO DO SO
MAY CAUSE PROPERTY DAMAGE, PERSONAL INJURY OR DEATH.
WARNING

Related product manuals