EasyManua.ls Logo

Goodman ARUF42C14AA - Page 19

Goodman ARUF42C14AA
24 pages
Print Icon
To Next Page IconTo Next Page
To Next Page IconTo Next Page
To Previous Page IconTo Previous Page
To Previous Page IconTo Previous Page
Loading...
19
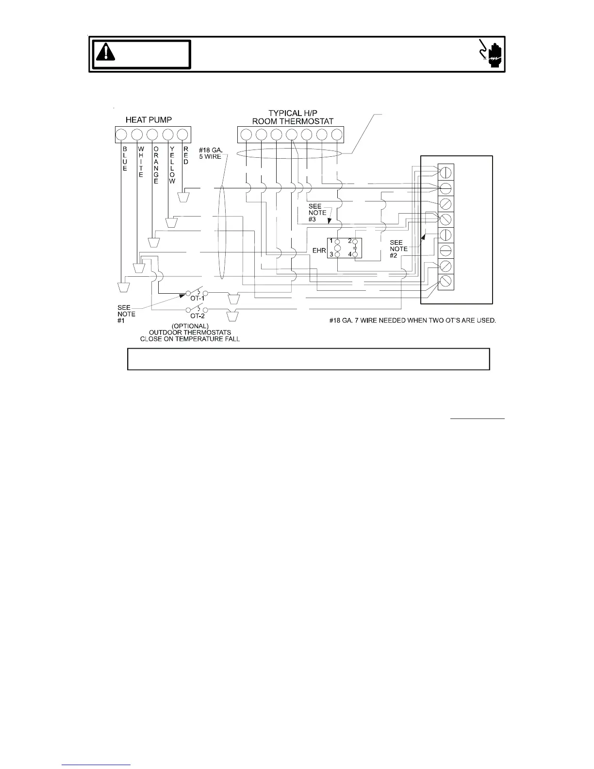
HIGH VOLTAGE!
DISCONNECT ALL POWER BEFORE SERVICING.
MULTIPLE POWER SOURCES MAY BE PRESENT. FAILURE TO DO SO
MAY CAUSE PROPERTY DAMAGE, PERSONAL INJURY OR DEATH.
WARNING
Wiring is subject to change. Always refer to the wiring diagram on the unit for the most up-to-date wiring.
NOTES:
1) OUTDOOR THERMOSTAT (OT-1) SHOULD BE THE
FIRST TO CLOSE AND THE LAST TO OPEN.
2) JUMPER W1 AND W2 TOGETHER IF OT-2 IS NOT
USED.
3) REMOVE WIRE WHEN USING OUTDOOR THERMO-
STAT.
NOMENCLATURE:
OT - OUTDOOR THERMOSTAT (OPTIONAL)
EHR - EMERGENCY HEAT RELAY (OPTIONAL)
COLOR CODES
RD - RED
YL - YELLOW
BL - BLUE
BR - BROWN
OR - ORANGE
WH - WHITE
GC R
HEAT PUMP UNIT WITH OPTIONAL HEAT KITS OF 15 kW AND ABOVE
C
W1
W2
Y2
Y1
O
G
R
TB
#18 GA. 7 WIRE
O
YC
W2
R Y O
W2
E
RD
GR
BL
OR
YL
YL
BL
OR
WH
BR
WH
BL
WH
WH
RD
BR
RD
WH
GR
YL
OR
OR
RD
OR
AIR HANDLER

Related product manuals