EasyManua.ls Logo

Goodman GPC13H - Page 31

Goodman GPC13H
36 pages
Print Icon
To Next Page IconTo Next Page
To Next Page IconTo Next Page
To Previous Page IconTo Previous Page
To Previous Page IconTo Previous Page
Loading...
PRoDUcT SPeciFicATionS
PRoDUcT SPeciFicATionS
SS-GPC13H www.goodmanmfg.com 31
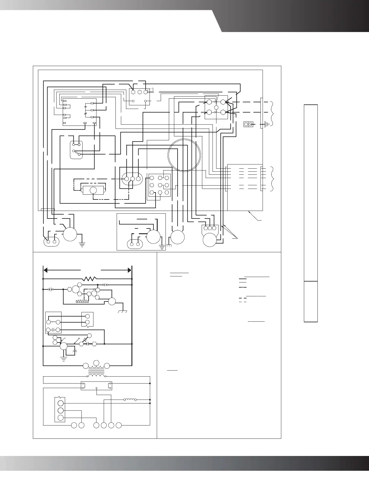
wiRing DiAgRAm — gPc1336-42h41Ac / gPc1349h41AB
Wiringissubject tochange.Always
refer to the wiring diagram or the
unitforthemostup-to-datewiring.
WarninG
High Voltage: Disconnect all power before servicing or installing this unit. Multiple power
sourcesmaybepresent.Failuretodosomaycausepropertydamage,personalinjury,ordeath.


















 












   


- 
2-27-06

-






NOTE #4
FC
NOTE#2
EM
M1
COM
TR
24V
208-240
NO
EBTDR
NC
3
CONTROL
240
208-240/1/60
SUPPLY VOLTAGE
C
COMPC
S.A.
S
T1
R
FC
L1

C
NOTE #5
H
F
RCCF
CM
T2
CH
C
L2
PU
BK
RD
RD
BK
BOX
H
RCCF
F
C
YL
BR
K1
K1
M1
NOTE #2
XFMR-C
PU
SPEED
C
BL
XFMR-R
R
G
EBTDR
GR
COM
NC
NO
RD
2
24V
BL
208
TR
C
BK
1
PU
COMP
CM
RD
RD
NOTE #3
CH
BR
BR
PU
4
1
PLF
BK
YL
S
BK
RD
BK
5
6
2
3
C R
RD
BL
BR
WH
GR
YL
R
C
W2
W1
G
Y
A
T
O
T
S
M
R
E
H
T
T2
T1
RD
BL
NOTE #4
PU
BL
L1
YL
GND
C
L2
PU
60
/
/
1
0
4
2
-
8
0
2
HIGH
(COM)
BK
(TRANS240V)
PU (M1)
RD
BR
FC
LOW
OPTIONAL
2 SPEED
BR
EM
3 SPEED
EM
M2
M2
7
8
9
BL
BR
BK
208-240/1/60 0140G00364 REV. A
RD
RD
RD
RD
BK
BK
BK
BK
RD
BK
BK
RD
COMPONENT
LEGEND
BR
C
CH
CM
COMP
EBTD
R
EM
FC
GND
LVJB
PLF
RCCF
SA
TR
BLOWER INTERLOCK RELAY
CONTACTOR
CRACKCASE HEATER
CONDENSER MOTOR
COMPRESSOR
ELECTRONIC BLOWER TIME DELAY
RELAY
EVAPORATOR MOTOR
FAN CAPACITOR
EQUIPMENT GROUND
LOW VOLTAGE JUNCTION BOX
FEMALE PLUG / CONNECTOR
RUN CAPACITOR FOR
COMPRESSOR AND FAN
START ASSIST
TRANSFORMER
W
IRE CODE
BK BLACK
BL BLUE
BR BROWN
GR GREEN
OR ORANGE
PU PURPLE
RD RED
WH WHITE
YL YELLOW
FACTOR
Y WIRING
LINE VOLTAGE
LOW VOLTAGE
OPTINAL HIGH
VOLTAGE
FIELD WIRING
HIGH VOLTAGE
LOW VOLTAGE
+
+
EBTDR
R
G
C
R W2 W1 Y G C
4
5
6
EBTDR
P
L
F
13
2
LVJB
SA
(IF USED)
SEE NOTE 5
THERMOSTAT
SEE NOTE #3
PU
PU
YL
RD
BL
BL
4
2
3 1
RD
RD
PU
PU
UP
BR
1
3
3
1
C
BR
2 4
SEE NOTE #6
BK
RD
SEE UNIT RATING PLATE FOR TYPE AND SIZE
OF OVER CURRENT PROTECTION
NOTES:
1. REPLACEMENT WIRE MUST BE SAME SIZE AND TYPE INSULATION AS
ORIGINAL (AT
LEAST 105°C) USE COPPER CONDUCTOR ONLY.
2. TO CHANGE EVAPORATOR MOTOR SPEED REPLACE LEAD ON EBTDR
"COM" WITH LEAD
ON EBTDR "M1" OR "M2"
3. CRANKCASE HEAT NOT SUPPLIED ON ALL UNITS.
4. FOR 208 VOLT TRANSFORMER OPERATION MOVE PURPLE WIRES
FROM TERMINAL 3
TERMINAL 2 ON TRANSFORMER.
5. START ASSIST FACTOR EQUIPED WHEN REQUIRED
6. USE COPPER CONDUCTORS ONLY
++ USE N.E.C. CLASS 2 WIRE
P
L
F


Related product manuals