EasyManua.ls Logo

Goodman GR9S96 - Wiring Diagram

Goodman GR9S96
16 pages
Print Icon
To Next Page IconTo Next Page
To Next Page IconTo Next Page
To Previous Page IconTo Previous Page
To Previous Page IconTo Previous Page
Loading...
12 .com 
 .com 13
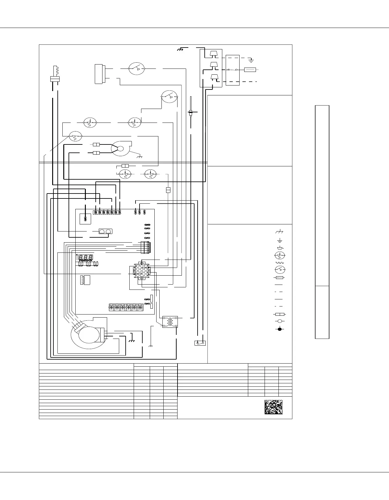
Wiring Diagram

 

Warning
High Voltage:           

9 8 7 6 5 4 3 2 1
9 8 7 6 5 4 3 2
F
C
D
E
B
A
C
D
E
B
A
SC
3 2
1
F
0140F20003
CC
10.25±.10
FRAME
10.75±.10
LABEL
6.00±.10
LABEL
5.50±.10
FRAME
.25
.25
SPECIAL CHARACTERISTICS: (REFER MSP 822-01 FOR DETAILS)
= CRITICAL CHARACTERISTIC REQUIRES AN INITIAL CPK OF 1.33 AND USE OF STATISTICAL PROCESS CONTROL.
= SIGNIFICANT CHARACTERISTIC REQUIRES AN INITIAL CPK OF 1.00 AND USE OF STATISTICAL PROCESS CONTROL.
INABILITY TO MEET THE REQUIRED INITIAL CPK VALUE WILL REQUIRE 100% INSPECTION.
COMPONENTS AND MATERIALS SPECIFIED HEREIN SHALL COMPLY WITH GOODMAN S4900170 MATERIALS OF CONCERN SPECIFICATION
COMPONENTS AND MATERIALS SPECIFIED HEREIN SHALL CONFORM TO THE APPLICABLE SECTION OF GOODMAN MSP 860-01
WORKMANSHIP STANDARD.
CONFIDENTIAL PROPERTY OF DAIKIN COMFORT TECHNOLOGIES MANUFACTURING, L.P. OR ITS AFFILIATES NOT TO BE DISCLOSED TO
OTHERS, COPIED, OR USED FOR ANY PURPOSE EXCEPT AS AUTHORIZED IN WRITING. MUST BE RETURNED UPON DEMAND,
ON COMPLETION OF ORDER, OR OTHER PURPOSE FOR WHICH IT WAS LENT
DATEENGCHKDESCRIPTIONREVECN/DR
26-Jul-2023 21:10NM
1. REDRAWN IN CREO
2. REMOVED SHEET 2
3. REMOVED LADDER DIAGRAM
AND LABEL UPDATED FOR MARKUP
CHANGES. (ALL)
4. ADDED NOTE 5 (D7)
B2331087
DAIKIN COMFORT TECHNOLOGIES MANUFACTURING, L.P.
DRAWING TO BE INTERPRETED IN
ACCORDANCE WITH ASME Y14.100
TITLE
LABEL, WIRING DIAGRAM
90% SINGLE STAGE
DIMENSIONS ARE IN INCHES
UNLESS OTHERWISE NOTED.
TOLERANCES UNLESS
OTHERWISE NOTED
ANGLES
1.5
.X .1
.XX
.03
.XXX
.015
HOLES
: .005
TUBE CUT LG:
.063
DWN BY: nirmal.kumar (nrmal.kumar) SCALE: NTS
CREATE DATE: 26-Jul-2023 21:10 SHEET: 1 OF 1
DWG.
NO.
0140F20003 B
ERROR CODE STATUS
READ CODES FROM LEFT TO RIGHT
SEVEN SEGMENT DISPLAY
Seg#3 Seg#2 Seg#1
INTERNAL FAULTS OR IRQ LOSS E E E
LOCKOUT DUE TO EXCESSIVE RETRIES RECYCLE E E 0
PRESSURE SWITCH STUCK CLOSED E E 1
PRESSURE SWITCH OPEN E E 2
OPEN HIGH LIMIT SWITCH E E 3
FLAME DETECTED WHEN NO FLAME SHOULD BE PRESENT E E 4
OPEN FUSE E E 5
LOW FLAME SIGNAL E E 6
IGNITOR RELAY FAULT E E L
REVERSED LINE POLARITY OR GROUNDING ERROR E E A
INTERNAL GAS VALVE ERROR E E b
EXTERNAL GAS VALVE ERROR E E C
OPEN ROLLOUT SWITCH E 1 1
IGNITOR OPEN E E n
INDUCER RELAY ERROR E E J
ERROR CODE STATUS
READ CODES FROM LEFT TO RIGHT
SEVEN SEGMENT DISPLAY
Seg#3 Seg#2 Seg#1
TWIN ERROR E E H
GROUNDING ERROR E 1 0
LOW CIRCULATOR CURRENT E b L
CIRCULATOR CURRENT UNEXPECTED E b U
A2L COMMUNICATION ALARM E A F
A2L LEAKAGE ALARM E A L
A2L INTERNAL ALARM E A S
A2L RELAY ALARM E A r
NOTES:
1. MATERIAL: BOPP FILM 3.3 MIL PER SPEC. S4900061 TYPE W.
2. COLOR: BLACK PRINTING ON WHITE BACKGROUND.
3. BARCODE MUST ADHERE TO S4900070 (TWO DIMENSIONAL BARCODE STANDARDS AND CHECK DIGIT ALGORITHM).
4. SUPPLIER PACKAGING MUST COMPLY WITH GOODMAN SPECIFICATION S4900110.
N
JUNCTION
BOX
L
DISCONNECT
GND
WH
BK
GND
GR
GR
GND
RD
24
VAC
115
VAC
BK
BR
WH
PK
RD
LIMIT
CONTROL
AUXILIARY
AUTO RESET
PK
40 VA
TRANSFORMER
G
C
SENSOR
FLAME
1 ROLL OUT SWITCH
SOME UNITS MAY HAVE
PU
RD
WH
YL
LIMIT CONTROL
AUTO RESET PRIMARY
WH
1
BK
PK
RD
L
N
DOOR OPEN)
(OPEN WHEN
DOOR SWITCH
COMPARTMENT
BLOWER
BLOWER
CIRCULATOR
CONNECTOR
2 CIRCUIT
GND
IGNITER
SURFACE
HOT
2
BLOWER
DRAFT
INDUCED
BK
BLOWER COMPARTMENT
ECM MOTOR
HARNESS
BK
BURNER COMPARTMENT
1
2
3
4
5
6
7
8
9
10
11
12
EAC-H
XFMR-H
CIRC-H
LINE-H
E20
E39
E2
E1
E15
E8
E5
E4
E3
E7
E6
LEFT
CENTER
RIGHT
SW331313 SW1
R223
SW2
6
R226
RD
YL
RD
YL
YL
BK
BK
BK
WH
WH
WH
GY
BL
GR
PU
PU
NEUT2
NEUT1
CIRC-N
EAC-N
HUM-N
XFMR-N
LINE-N
RD
1
2
RD
BK
BK
WH
WH
WH
5
2
1
4
3
RD
BK
OR
BL
YL
RD
BL
OR
BK
YL
T1
T2
T3
T4
T5
COM
RD
YL
PU
TWIN
24V HUM
E21
E24
W/W1
R
Y/Y1
G C
Y2
GND
WH
GND
1
2
5V
A2L
ALARM
SPARE
VT-
OUT
VT-
IN
YL
ID BLOWER
PRESSURE
SWITCH
BR
GAS
VALVE
C
HI
NO
C
GY
FRONT COVER
PRESSURE
SWITCH
GY
GY
0140F20003-B
TO 115 VAC/ 1
/60 HZ
POWER SUPPLY WITH
OVERCURRENT
PROTECTION DEVICE
NOTES:
1. MANUFACTURER'S SPECIFIED REPLACEMENT
PARTS MUST BE USED WHEN SERVICING.
2. IF ANY OF THE ORIGINAL WIRE AS SUPPLIED
WITH THE FURNACE MUST BE REPLACED IT MUST
BE REPLACED WITH WIRING MATERIAL
HAVING A TEMPERATURE RATING OF AT LEAST
105
°
C. USE COPPER CONDUCTORS ONLY.
3. UNIT MUST BE PERMANENTLY GROUNDED AND
CONFORM TO N.E.C. AND LOCAL CODES.
4. TO RECALL THE LAST 6 FAULTS, MOST RECENT
TO LEAST RECENT, DEPRESS SWITCH FOR MORE
THAN 2 SECONDS WHILE IN STANDBY
(NO THERMOSTAT INPUTS)
5. WHEN THIS FURNACE IS PAIRED WITH NON R-32
REFRIGERANT SYSTEMS, DEFAULT SETTINGS
WILL NEED TO BE CHANGED. REFER TO
INSTALLATION MANUAL FOR FURTHER
INSTRUCTIONS.
WIRE
COLOR:
YL
WH
BL
BK
RD
OR
PK
GY
TN
GR
BR
YELLOW
WHITE
BLUE
BLACK
RED
ORANGE
BROWN
PINK
GRAY
TAN
GREEN
PURPLE
VIOLET
COLOR
DESIGNATION:
PU
VT
SWITCH (PRESSURE)
FIELD SPLICE
FIELD GROUND
EQUIPMENT GROUND
PROTECTION DEVICE
PLUG CONNECTION
SWITCH (TEMPERATURE)
JUNCTION
OVERCURRENT
TERMINAL
IGNITER
HIGH VOLTAGE (115V)
HIGH VOLTAGE FIELD
LOW VOLTAGE (24V)
LOW VOLTAGE FIELD
WARNING: DISCONNECT
POWER BEFORE
SERVICING. WIRING
TO UNIT MUST BE
PROPERLY POLARIZED
AND GROUNDED
NO
C
A2L MODE IS ENABLED BY
DEFAULT
REFER TO INSTALLATION MANUAL
FOR FURTHER INSTRUCTIONS.
A2L SENSOR
CONNECTOR

Related product manuals