EasyManua.ls Logo

Goodman GR9S96 - Minimum Clearances to Combustible Materials; Dimensions

Goodman GR9S96
16 pages
Print Icon
To Next Page IconTo Next Page
To Next Page IconTo Next Page
To Previous Page IconTo Previous Page
To Previous Page IconTo Previous Page
Loading...
4 .com 
 .com 5
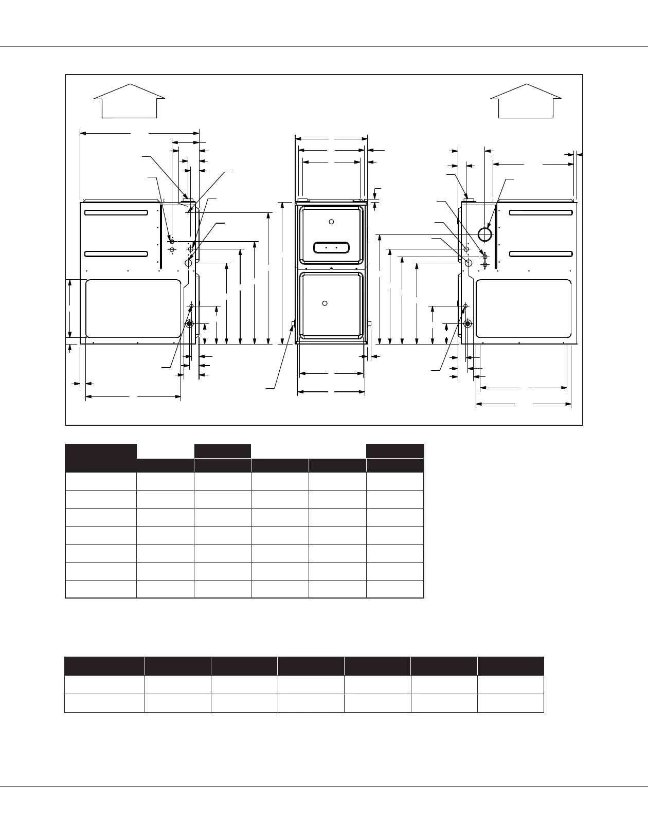
GR9S96 Dimensions
Minimum Clearances to Combustible Materials
Position Sides Rear Front Bottom Flue Top
    C  
    C  

5
19
34½
¾
19½
¾
B
C
23
2
1
2½
2
6½
5
9¼
19
23
24
31
A
21
2
14
23
1
½
1
¾
28¾
2
1
2½
2
2¾
6½
1
26½
23½
Folded Flanges
22
Unfolded Flanges
D
Unfolded Flanges
E
Folded Flanges
Air
Discharge
Air
Discharge
LEFT SIDE VIEW
FRONT VIEW
RIGHT SIDE VIEW
Condensate Drain
Trap Exterior
Connecon
(Right or Le Side)
¾ PVC
Vent/ Flue Pipe
2" PVC
Alternate
Vent/ Flue
Locaon
Right-Side
Drain Trap
Exterior Holes
High-Voltage
Electrical Outlet
Alternate
Gas Supply
Low-Voltage
Electrical Outlet
Standard
Gas Supply
Locaon
Center Dimple
For Alternate
Air Intake Pipe
3" OD Hole
Air Intake
2" Pipe
Le-Side
Drain Trap
Exterior Holes
High-Voltage
Electrical Outlet
Low-voltage
Electrical Outlet
Model
AIR DISCHARGE
AIR DISCHARGE
A B C D E
GR9S960403AN     
GR9S960603BN     
GR9S960803BN     
GR9S960804CN     
GR9S960805CN     
GR9S961005CN     
GR9S961205DN     

Related product manuals