EasyManua.ls Logo

Goodman MBE2000 - Wiring Diagrams: Heat Pump with Advanced Thermostat Control

Goodman MBE2000
27 pages
Print Icon
To Next Page IconTo Next Page
To Next Page IconTo Next Page
To Previous Page IconTo Previous Page
To Previous Page IconTo Previous Page
Loading...
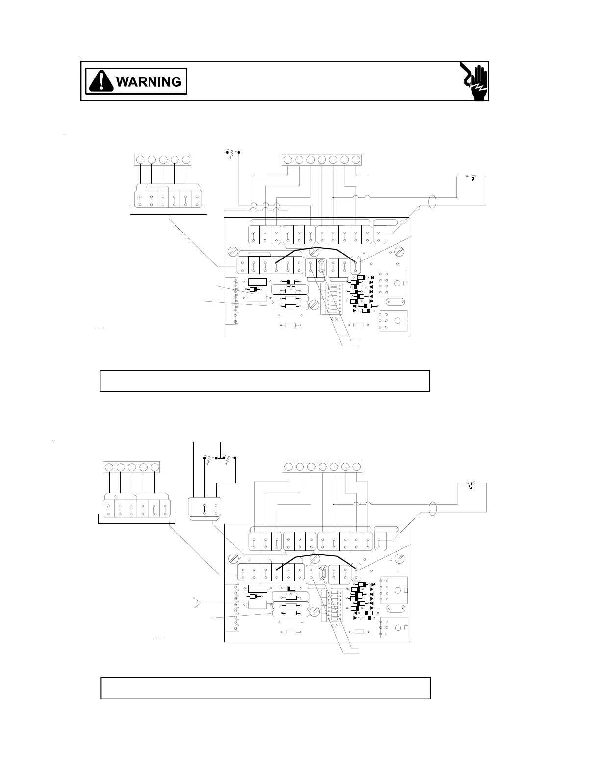
WIRING DIAGRAMS
18
HIGH VOLTAGE!
DISCONNECT ALL POWER BEFORE SERVICING OR INSTALLING THIS
UNIT. MULTIPLE POWER SOURCES MAY BE PRESENT. FAILURE TO
DO SO MAY CAUSE PROPERTY DAMAGE, PERSONAL INJURY OR DEATH.
Wiring is subject to change. Always refer to the wiring diagram on the unit for the most up-to-date wiring.
R
YCON COM
O
W2 ED
HEATPUMP
CONDENSER
CO
W2
HEATPUMP
ROOM
THERMOSTAT
W2
EC
YR
RYG
IF NEEDED
HUMIDISTAT
(OPTIONAL)
REMOVE
PRODUCTION
WIRE Y1-O
SEE NOTE 4
2nd STAGE HEATER
OUTDOOR
THERMOSTAT
NOTES:
1.) Y ENABLES HI SPD FAN COOLING
2.) E ENABLES LO SPD FAN HEATING
W2 ENABLES LO SPD FAN HEATING
W2 AND OT2 CLOSED ENABLES HI SPD
FAN HEATING
3.) OT2 PJ2 MUST BE CUT FOR THIS CONFIGURATION
4.) CUT HUM PJ6 JUMPER IF USING HUMIDISTAT
STAT OPENS ON HUMIDITY RISE
5.) DIP SWITCH #4 MUST BE
IN THE "
ON" POSITION
HEATPUMP - 2 STG EMHT 2 STAG AUX - 1 OUTDOOR T-STAT
1ST STAGE HEATER
O
1ST STAGE AUX HEAT ENABLED BY ROOM T'STAT
2ND STAGE AUX ENABLED BY ROOM T'STAT AND OUTDOOR T'STAT
J1
R1
R3
CR10
R2
CR9
PJ6
PJ2
PJ4
OT1
OT2
HUM
12345678
PLEASE REFER
TO MANUAL
FOR PROPER
DIP SWITCH
CONFIGURATION.
W1 W2
R
YCON COM
O
W2 ED
S
WI
TC
H
DI
P
O
N
O
FF
24 VAC
C
R
Y1
W2W1
OUTDOOR
HEATPUMP
CONDENSER
DS1
CR1
CR2
CR5
CR6
CR7
CR8
CR3
CR11
J2 J3
1
4
C2
1
5
Y1RC G Y/Y2OT2 HUM
HUMIDISTAT
OT1OTC
W/W2E\W1
THERMOSTATS
GOODMAN MFG. CO. L.P.
RYCON
COM
O
W2 ED
HEATPUMP
CONDENSER
CO
W2
HEATPUMP
ROOM
THERMOSTAT
W2
EC
YR
RYG
IF
N
E
E
D
E
D
HUMIDISTAT
(OPTIONAL)
REMOVE
PRODUCTION
WIRE Y1-O
SEE NOTE 4
2nd STAGE HEATER
NOTES:
1.) Y ENABLES HI SPD FAN COOLING
2.) E ENABLES LO SPD FAN HEATING
W2 AND OT1 CLOSED ENABLES LO SPD FAN HEATING
W2 AND OT2 CLOSED ENABLES HI SPD FAN HEATING
3.) OT1 PJ4 AND OT2 PJ2 MUST BE CUT FOR THIS
CONFIGURATION
4.) CUT HUM PJ6 JUMPER IF USING HUMIDISTAT
STAT OPENS ON HUMIDITY RISE
5.) DIP SWITCH #4 MUST BE IN THE "ON" POSITION
HEATPUMP - 2 STG EMHT 2 STAG AUX - 2 OUTDOOR T-STATS
1ST STAGE HEATER
OT1 OT2OTC
OUTDOOR
O
NO AUX HEAT IN HEATPUMP MODE UNTIL OUTDOOR T'STAT CLOSES
J1
R1
R3
CR10
R2
CR9
PJ6
PJ2
PJ4
OT1
OT2
HUM
12345678
PLEASE REFER
TO MANUAL
FOR PROPER
DIP SWITCH
CONFIGURATION.
W1 W2
RYCON
COM
O
W2 ED
S
WI
TC
H
DI
P
O
N
O
FF
24 VAC
C
R
Y1
W2
W1
OUTDOOR
HEATPUMP
CONDENSER
DS1
CR1
CR2
CR5
CR6
CR7
CR8
CR3
CR11
J2 J3
1
4
C2
1
5
Y1RC G Y/Y2OT2 HUM
HUMIDISTAT
OT1OTC
W/W2E\W1
THERMOSTATS
GOODMAN MFG. CO. L.P.

Other manuals for Goodman MBE2000

Related product manuals