EasyManua.ls Logo

Goodman MBE2000 - Wiring Diagrams: Two-Speed Heat Pump Configurations; Two-Speed Heat Pump with Single;Two-Stage Heating; Heat Pump - 1 Stage Emergency;Auxiliary Heat; Heat Pump - 2 Stage Emergency;Auxiliary Heat

Goodman MBE2000
27 pages
Print Icon
To Next Page IconTo Next Page
To Next Page IconTo Next Page
To Previous Page IconTo Previous Page
To Previous Page IconTo Previous Page
Loading...
WIRING DIAGRAMS
20
HIGH VOLTAGE!
DISCONNECT ALL POWER BEFORE SERVICING OR INSTALLING THIS
UNIT. MULTIPLE POWER SOURCES MAY BE PRESENT. FAILURE TO
DO SO MAY CAUSE PROPERTY DAMAGE, PERSONAL INJURY OR DEATH.
Wiring is subject to change. Always refer to the wiring diagram on the unit for the most up-to-date wiring.
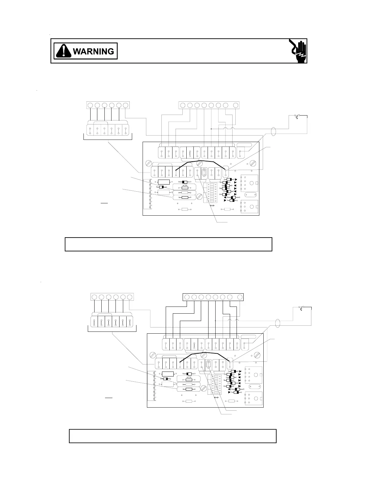
Two Speed Heat Pump with Single or Two-Stage Heating
(Options for Emergency Heat) with Conventional Two-Stage Thermostat
R
YCON COM
O
W2 ED
HEATPUMP
CONDENSER
CO
W2
RTG
HEATPUMP
ROOM
THERMOSTAT
W2
EC
Y2R
RY2G
IF NEEDED
HUMIDISTAT
(OPTIONAL)
REMOVE
PRODUCTION
WIRE Y1-O
SEE NOTE 4
NOTES:
1.) Y ENABLES HI SPD FAN COOLING
2.) E AND W2 ENABLE HI SPD FAN HEATING
3.) IF OT2 PJ2 JUMPER IS CUT, E AND W2 ENABLE LO
SPD FAN HEATING
4.) CUT HUM PJ6 JUMPER IF USING HUMIDISTAT
STAT OPENS ON HUMIDITY RISE
5.) DIP SWITCH #4 MUST BE IN THE "
OFF" POSITION
HEATPUMP - WITH 1 STG EMHT 1 STG AUX HEAT
1ST STAGE HEATER
Y1
Y1
J1
R1
R3
CR10
R2
CR9
PJ6
PJ2
PJ4
OT1
OT2
HUM
12345678
PLEASE REFER
TO MANUAL
FOR PROPER
DIP SWITCH
CONFIGURATION.
W1 W2
RYCON
COM
O
W2 ED
S
WI
TC
H
DI
P
O
N
O
FF
24 VAC
C
R
Y1
W2
W1
OUTDOOR
HEATPUMP
CONDENSER
DS1
CR1
CR2
CR5
CR6
CR7
CR8
CR3
CR11
J2 J3
1
4
C2
1
5
Y1RC G Y/Y2OT2 HUM
HUMIDISTAT
OT1OTC
W/W2E\W1
THERMOSTATS
GOODMAN MFG. CO. L.P.
O
R
YCON COM
O
W2 ED
HEATPUMP
CONDENSER
CO
W2
RTG
HEATPUMP
ROOM
THERMOSTAT
W2
ECY2R RY2G
IF NEEDED
HUMIDISTAT
(OPTIONAL)
REMOVE
PRODUCTION
WIRE Y1-O
SEE NOTE 4
NOTES:
1.) Y ENABLES HI SPD FAN COOLING
2.) E ENABLES LO SPD FAN HEATING
W2 ENABLES HI SPD FAN HEATING
3.) OT1 PJ4 MUST BE CUT FOR THIS
CONFIGURATION
4.) CUT HUM PJ6 JUMPER IF USING HUMIDISTAT
STAT OPENS ON HUMIDITY RISE
5.) DIP SWITCH #4 MUST BE IN THE "
OFF" POSITION
HEATPUMP - 2 STG EMHT 1 STG AUX HEAT
1ST STAGE HEATER
Y1 Y1
2ND STAGE HEATER
J1
R1
R3
CR10
R2
CR9
PJ6
PJ2
PJ4
OT1
OT2
HUM
12345678
PLEASE REFER
TO MANUAL
FOR PROPER
DIP SWITCH
CONFIGURATION.
W1 W2
RYCON
COM
O
W2 ED
S
WI
TC
H
DI
P
O
N
O
FF
24 VAC
C
R
Y1
W2
W1
OUTDOOR
HEATPUMP
CONDENSER
DS1
CR1
CR2
CR5
CR6
CR7
CR8
CR3
CR11
J2 J3
1
4
C2
1
5
Y1RC G Y/Y2OT2 HUM
HUMIDISTAT
OT1
OTCW/W2E\W1
THERMOSTATS
GOODMAN MFG. CO. L.P.
O

Other manuals for Goodman MBE2000

Related product manuals