EasyManua.ls Logo

Haier AB18CS1ERA - Page 266

Haier AB18CS1ERA
448 pages
To Next Page IconTo Next Page
To Next Page IconTo Next Page
To Previous Page IconTo Previous Page
To Previous Page IconTo Previous Page
Loading...
264
Super Match
5U34HS1ERA 5U45LS1ERA
Item
Unit
Description Standard Maximum
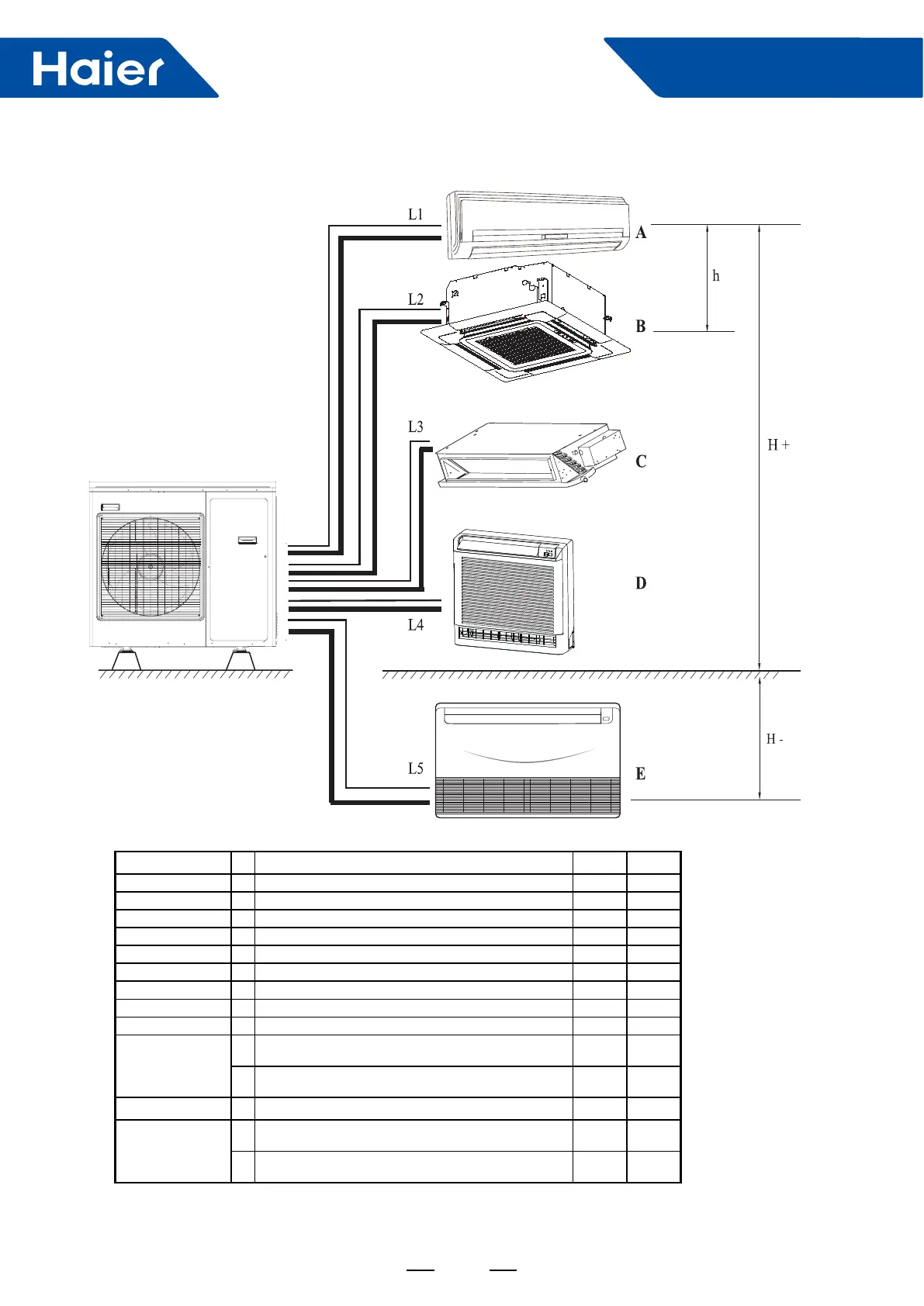
A,B,C,D,E liquid pipe mm Size of the liquid side connection pipe φ6.35 /
A,B,C,D Gas pipe mm Size of the gas side connection pipe φ9.52 /
E Gas pi[pe mm Size of the gas side connection pipe φ12.7 /
L1 (one way) m Max.piping length between IU and OU of the way
10 25
L2 (one way) m Max.piping length between IU and OU of the way
10 25
L3 (one way) m Max.piping length between IU and OU of the way
10 25
L4 (one way) m Max.piping length between IU and OU of the way
10 25
L5 (one way) m Max.piping length between IU and OU of the way
10 25
L1+L2+L3+L4+L5 m Total liquid piping length
≤40 ≤80
m
Drop between every two indoor units when the location of
the outdoor unit is among indoor units
1 15
m
Drop between every two indoor units when the location of
the outdoor unit is at one side of indoor units
1 7.5
H+ m Drop between the outdoor unit and the indoor unit
5 15
m
Drop between the outdoor unit and the indoor unit when the
location of outdoor unit is among the indoor units
5 7.5
m
Drop between the outdoor unit and the indoor unit when the
location of outdoor unit is at one side of indoor units
5 15
h
H-
•••••
The piping length information, please refer the following table.

Other manuals for Haier AB18CS1ERA

Related product manuals