EasyManua.ls Logo

Haier AD35S2SS1FA - Page 47

Haier AD35S2SS1FA
210 pages
Print Icon
To Next Page IconTo Next Page
To Next Page IconTo Next Page
To Previous Page IconTo Previous Page
To Previous Page IconTo Previous Page
Loading...
Unidad interior
17
Procedimiento de instalación
Elegir la posición de montaje para instalar las unidades interiores
Conducto de aire
Elija lugares adecuados donde el aire de salida pueda llegar a toda la sala y sea conveniente
instalar la tubería de conexión, el cable de conexión y la tubería de desagüe hacia el exterior.
La estructura del techo debe ser lo bastante fuerte para soportar el peso de la unidad.
La tubería de conexión, la tubería de desagüe y el cable de conexión deben poder pasar por
el muro del edificio para conectar las unidades interior y exterior.
La tubería de conexión entre las unidades interior y exterior, así como la tubería de desagüe,
deben ser lo más cortas posible.
Si fuera necesario ajustar la cantidad de llenado del refrigerante, consulte el manual de instalación adjunto con
la unidad exterior.
El usuario debe proporcionar la brida de conexión.
La unidad interior tiene dos salidas de agua, una de las cuáles está obstruida de fábrica (con una tapa de caucho). Solo la
salida no obstruida (lado de entrada y salida de líquido) se utiliza generalmente durante la instalación. Si procede, ambas
salidas debe usarse juntas.
Debe incluirse un puerto de acceso durante la instalación de la unidad interior para realizar el mantenimiento.
Después de elegir la ubicación de instalación de la unidad, realice estos pasos:
1.Perfore un orificio en la pared e inserte la tubería de conexión y el cable a través de un tubo de PVC
(comprado por separado) que atraviese la pared. El orificio de la pared debe tener una inclinación
descendente de al menos 1/100.
2.Antes de taladrar, compruebe que no haya tuberías ni barras reforzadas en la posición a perforar. Debe
evitarse perforar en lugares con cables eléctricos o tuberías.
3.Instale la unidad en un techo fuerte y horizontal. Si la base no es firme, provocará ruidos, vibraciones o fugas.
4.Instale la unidad en un techo fuerte y horizontal. Si la base no es firme, provocará ruidos, vibraciones o fugas.
5.Cambie la forma de la tubería de conexión, el cable de conexión y la tubería de desagüe de forma que puedan pasar fácilmente
por el orificio de la pared.
Tanto el conducto de envío de aire como el conducto de retorno de aire deben estar fijados en el panel prefabricado del
suelo con un soporte de hierro. La distancia recomendada entre el borde del conducto de retorno de aire y la pared es de
más de 150 mm.
La pendiente de la tubería de agua condensada debe ser superior al 1 %.
La tubería de agua condensada debe estar aislada térmicamente.
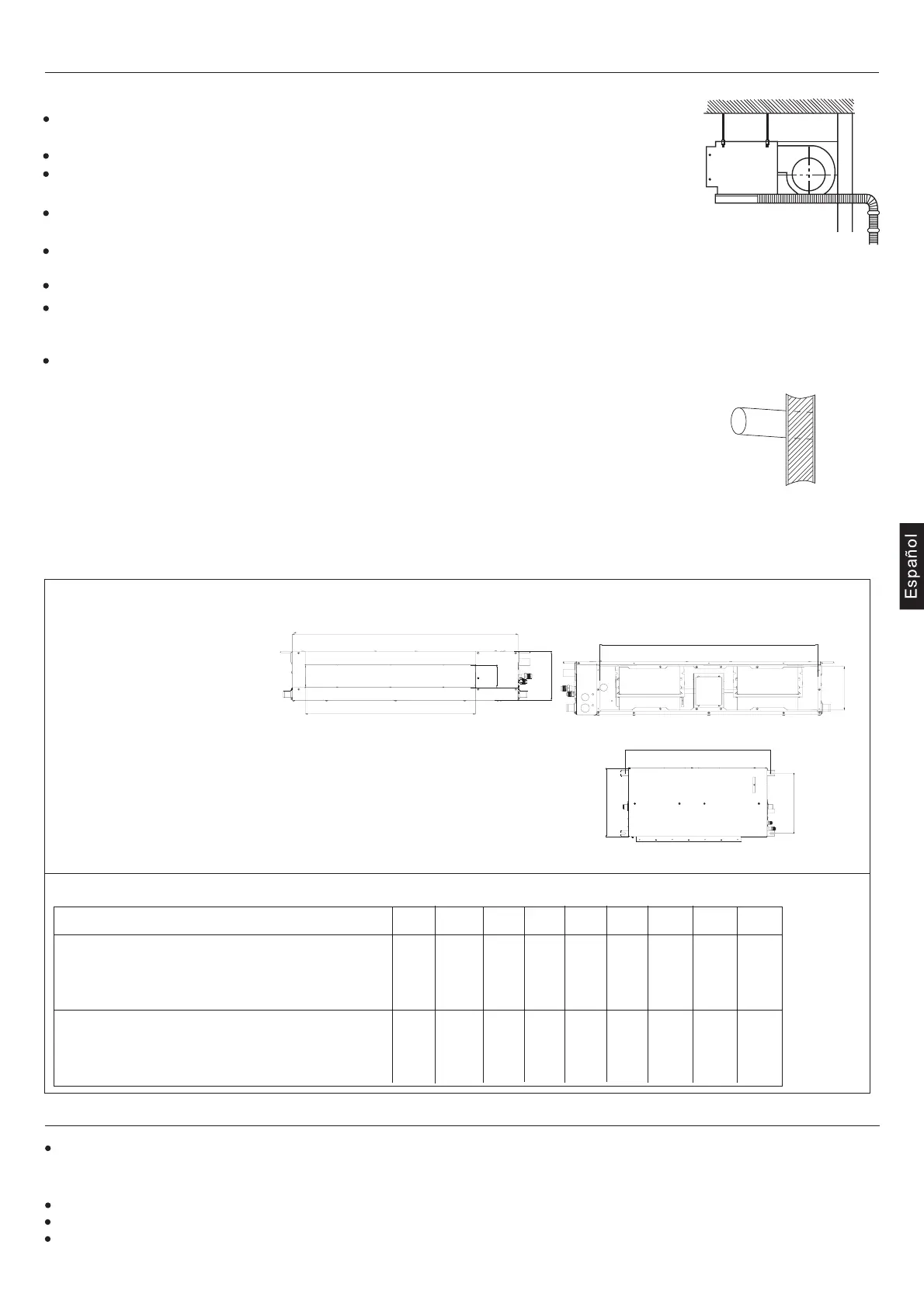
Para instalar una unidad interior de tipo escondido en el techo, el conducto de retorno de aire debe estar diseñado e
instalado como se muestra en la figura siguiente.
Procedimiento de instalación
Dimensiones de la instalación
Dimensiones de la unidad interior (unidad: mm)
B
A
C
H
I
D
E
F
G
Modelo de unidad
A B C D E F G H I
420 892 370 850 185 640 90 760 152
420 1212 370 1170 185 960 90 1080 152
AD25S2SS1FA AD35S2SS1FA
AD50S2SS1FA AD71S2SS1FA
AD25S2SS2FA AD35S2SS2FA
AD50S2SS2FA AD71S2SS2FA
AD25S2SS1FA-1 AD25S2SS1FA(H)
AD35S2SS1FA-1 AD35S2SS1FA(H)
AD50S2SS1FA-1 AD50S2SS1FA(H)
AD71S2SS1FA-1 AD71S2SS1FA(H)
AD25S2SS1FA AD35S2SS1FA
AD25S2SS2FA AD35S2SS2FA
AD25S2SS1FA-1 AD25S2SS1FA(H)
AD35S2SS1FA-1 AD35S2SS1FA(H)
AD50S2SS1FA AD50S2SS2FA
AD71S2SS1FA AD71S2SS2FA
AD50S2SS1FA-1 AD50S2SS1FA(H)
AD71S2SS1FA-1 AD71S2SS1FA(H)

Table of Contents

Other manuals for Haier AD35S2SS1FA

Related product manuals