EasyManua.ls Logo

Haier AD35S2SS1FA - Procedura Instalacji Urządzenie Wewnętrzne

Haier AD35S2SS1FA
210 pages
To Next Page IconTo Next Page
To Next Page IconTo Next Page
To Previous Page IconTo Previous Page
To Previous Page IconTo Previous Page
Loading...
17
Język polski
Procedura instalacji Urządzenie wewnętrzne
Należy wybrać miejsce montażu w celu zainstalowania urządzeń wewnętrznych
Należywybraćodpowiedniemiejsca,wktórychpowietrzewylotowemożebyćwysyłane
docałegopomieszczenia,atakżewygodnierozłożyćruręprzyłączeniową,przewód
przyłączeniowyirurędrenażowąnazewnątrz.
Konstrukcjasufit musibyćwystarczającomocna,abyutrzymaćciężarurządzenia.
Rurałącząca,ruraspustowaiprzewódłączącypowinnyprzechodzićprzezścianębudynku
wcelupołączeniaurządzeńwewnętrznychizewnętrznych.
Rurałączącaurządzeniawewnętrznegoizewnętrznegoorazruraspustowapowinnybyć
możliwiejaknajkrótsze.
Jeślikoniecznejestdostosowanieilościnapełnieniaczynnikiemchłodniczym,należyzapoznaćsięzinstrukcją
montażudołączonądourządzeniazewnętrznego.
Kołnierzłączącypowinienzapewnićsamużytkownik.
Urządzeniewewnętrzneposiadadwawylotywody,zktórychjedenjestfabryczniezablokowany(zgumowąnasadką).
Jedyniewylotniezablokowany(postroniewlotowejiwylotowejcieczy)będzieogólnieużywanapodczasinstalacji.
Jeślidotyczy,obawylotynależystosowaćrazem.
Wceluprzeprowadzeniakonserwacjiurządzeniawewnętrznegonależyzapewnićportdostępu.
Po wybieraniu miejsca instalacji urządzenia należy wykonywać następujące kroki:
1. WywiercićotwórwścianieiwłożyćrurkęłączącąiprzewódprzezzakupionąlokalnieruręściennązPCW.
Otwórwścianiepowinienmiećnachylenieskierowanenazewnątrzconajmniej1/100.
2. Przedwierceniemnależysprawdzić,czyzapozycjąwiercenianiemaruryaniprętazbrojeniowego.W
miejscachzdrutemelektrycznymlubrurąnależyunikaćwiercenia.
3. Zamontowaćurządzenienamocnymipoziomymdachubudynku.Wprzypadkuniestabilnejpostawy
spowodujehałas,wibracjelubwyciek.
4. Mocnopodeprzećurządzenie.
5. Należyzmienićkształtruryłączącej,przewodułączącegoiruryskroplin,abyswobodnieprzechodizłyprzezotwórw
ścianie.
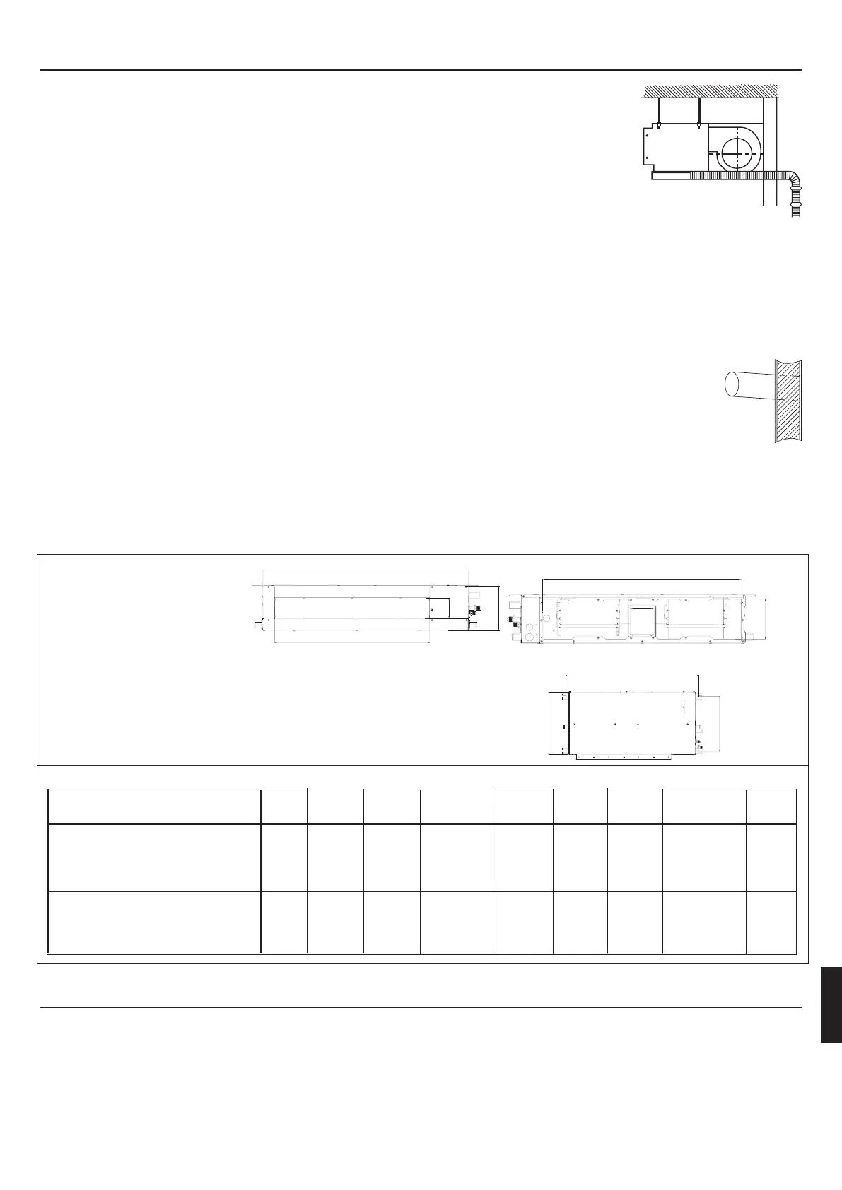
Wymiar montażu
Procedura instalacji Kanał powietrzny
Każdyzkanałówdoprowadzającychiodprowadzającychpowietrzepowinienbyćprzymocowanynaprefabrykowaym
panelupodłogizapomocążelaznegowspornika.
Zalecanaodległośćmiędzykrawędziąkanałuodprowadzającegopowietrzaaścianąwynosiponad150mm.
Nachylenierurywodociągowejkondensatupowinnoutrzymywaćponad1%.Rurawodykondensatupowinnabyć
izolowanatermicznie.
Podczasinstalowaniaurządzeniawewnętrznegotypupodtynkowego,kanałodprowadzającypowietrzemusibyć
zaprojektowanyizainstalowanyzgodniezrysunkiem.
B
A
C
H
I
D
E
F
G
AD25S2SS1FA AD35S2SS1FA
AD25S2SS2FA AD35S2SS2FA
AD25S2SS1FA-1 AD25S2SS1FA(H)
AD35S2SS1FA-1 AD35S2SS1FA(H)
AD25S2SS1FA AD35S2SS1FA
AD50S2SS1FA AD71S2SS1FA
AD25S2SS2FA AD35S2SS2FA
AD50S2SS2FA AD71S2SS2FA
AD25S2SS1FA-1 AD25S2SS1FA(H)
AD35S2SS1FA-1 AD35S2SS1FA(H)
AD50S2SS1FA-1 AD50S2SS1FA(H)
AD71S2SS1FA-1 AD71S2SS1FA(H)
AD50S2SS1FA AD50S2SS2FA
AD71S2SS1FA AD71S2SS2FA
AD50S2SS1FA-1 AD50S2SS1FA(H)
AD71S2SS1FA-1 AD71S2SS1FA(H)
Wymiary urządzenia wewnętrznego (jednostka: mm)
Modelurządzenia A B C Średnica E F G Wysokość I
420 892 370 850 185 640 90 760 152
420 1212 370 1170 185 960 90 1080 152

Table of Contents

Other manuals for Haier AD35S2SS1FA

Related product manuals