EasyManua.ls Logo

Haier AS09FBAHRA - Teile und Funktionen

Haier AS09FBAHRA
217 pages
To Next Page IconTo Next Page
To Next Page IconTo Next Page
To Previous Page IconTo Previous Page
To Previous Page IconTo Previous Page
Loading...
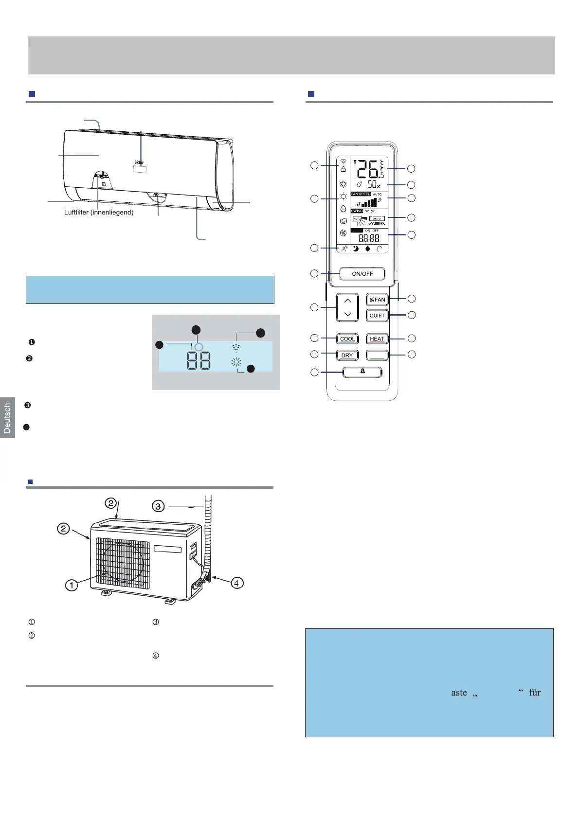
Beuteile und Funktionen
1
English
Inneneinheit
Entsprechend dem gekauften Produkt könnte das tatsächliche
Einlassgitter von dem in der Anleitung abweichen.
Anzeigetafel
Raumtemperatur
Wenn das Fernbedienungssignal
empfangen wird, zeigt die
eingestellte Temperatur.
WIFI
Außeneinheit
Luftaustritt
Lufteinlass
Verbindungsrohrleitung
und elektrische
Verkabelung
Ablaufschlauch
Fernbedienung
Außenseite der Fernbedienung
1. Taste ECO SENSOR
2. Taste DRY (Entfeuchtung)
Drücken um auf den
Entfeuchtungsmodus
einzustellen.
3. Taste COOL (Kühlung)
Drücken um auf den
Kühlungsmodus
einzustellen.
4. Taste TEMP (emperatur)
Drücken um die gewählte
Temperatur zu ändern
5. Taste ON/OFF (EIN/OFF)
6. Anzeige der einzelnen
Funktionzustände
7. Betriebsweise
8. WIFI und CLOCK (Uhr)
9. TEMP (Temperatur)
10. Feuchtigkeit
11. FAN SPEED
( Ventilator-Geschwindigk
eit)
12. SWING
(Luftleitlamellen-Schwing
ung)
Nach oben/ Nach unten
Nach links/ Nach rechts
13. TIME ON(TIMER
eingeschaltet)
TIMER OFF (TIMER
ausgeschaltet)
CLOCK(Uhranzeige)
14. Taste FAN
15. Taste QUIET (Ruhe)
16. Taste HEAT (Heizung)
17. Taste SELF CLEAN
Anmerkung:
a. Die Anzeige der Feuchtigkeit ist nicht verfügbar auf
einigen Modi.
b. Falls die von Ihnen gekaufte Modell WIFI-Funktion
besitzt, drücken Sie die T ON/ OFF 5
Sekunden um das WIFI-Bindungssignal zu
emittieren. Die App wird bei dem Bindung-Modus die
Anweisung zur Bindung anzeigen.
Bedienungsm ode ll-Anzeige
(Wenn de r Kompre ssor läuft, glänzt da s Licht)
Notschalter
Anzeige
(innen)
Einlass
Einlassgitter
Waagerechte Lamellen
(Luftstrom nach oben und unten
anpassen Nicht manuell einstellen)
(Luftstrom rechts und
links anpassen)
Senkrechte Lamellen
Auslass
Öffnung für Signalempfänger
4
2
3
1
4
1
4
5
6
7
8
9
10
11
12
13
15
16
17
14
TIMER
3
2
ECO SENSOR
SELF
CLEAN

Related product manuals