EasyManua.ls Logo

Haier Super Match AB24ES1ERA - Page 16

Haier Super Match AB24ES1ERA
483 pages
To Next Page IconTo Next Page
To Next Page IconTo Next Page
To Previous Page IconTo Previous Page
To Previous Page IconTo Previous Page
Loading...
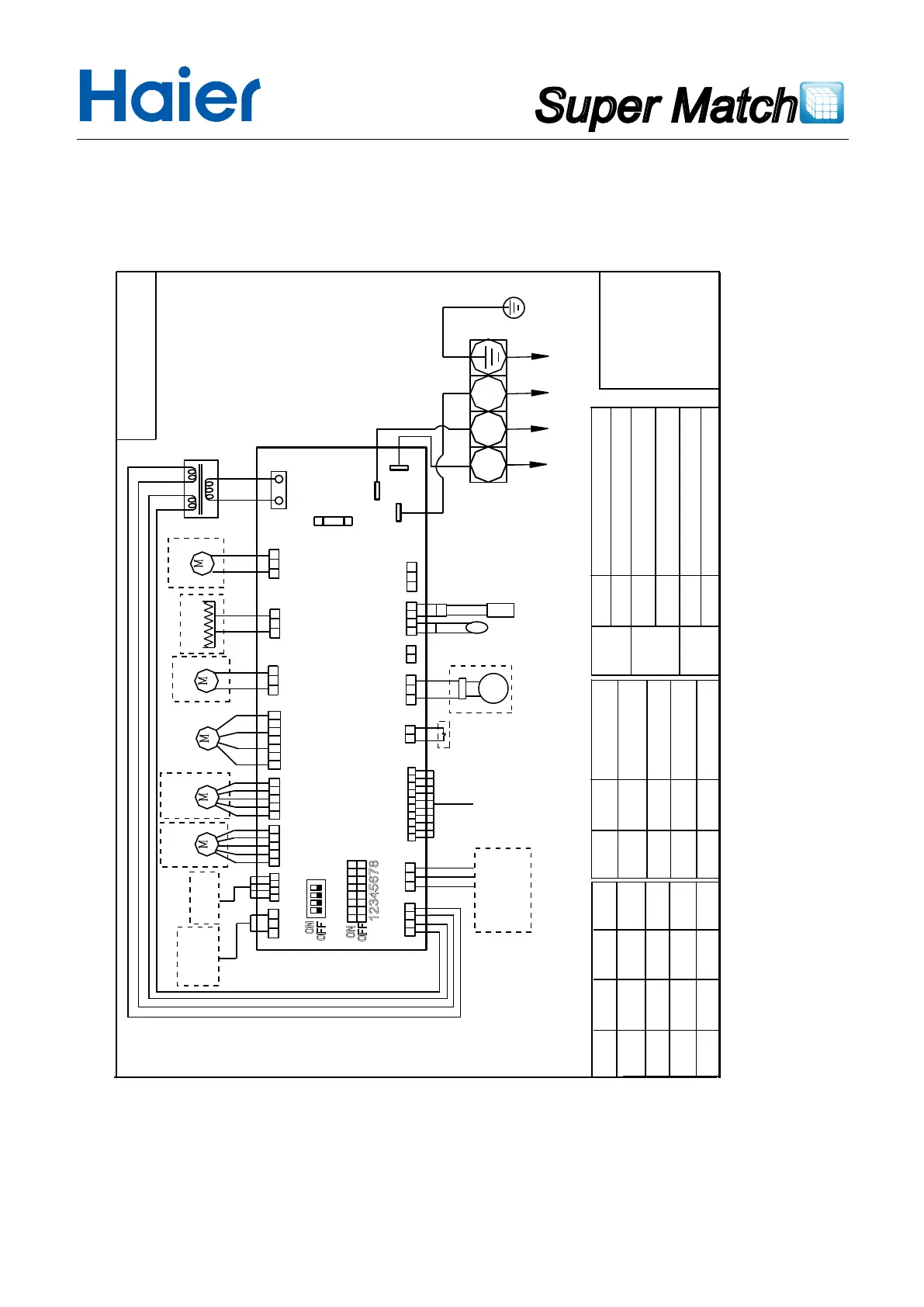
Super Match
AB24ES1ERA(S)
TO OUTDOOR UNIT
0150509510A
B:BLACK
R:RED
W:WHITE
Y/G:YELLOW/GREEN
TEMP.
SENSOR
ROOM
SENSOR
PIPING TEMP.
REMOTE
RECEIVER
FLOAT
SWITCH
CN5
TR
HEATER
PUMP
SWING
FAN
LEFT/
RIGHT
UP/
DOWN
CN9
CN8
CN7CN11
PANNEL
REMOTE
CENTRAL
CN3
CN1
CN29
CN20 CN18
CN21 CN13 CN12
CN14
CN15
CN10
CN19
T3.15A/250VAC
FUSE
Wired
Remote
Controller
RC
2
1
3
B
W
R
Y/G
NOTE:1.DASHED PART ARE OPTIONAL.
2.
USER SHOULD NOT TO SET SW1 AND SW2.
CH3
CH4
CH5
SW1-1
SW1-2
SW1-3
BTU
OFF
ON
ON
28000
ON
ON
ON
36000
ON
ON
OFF
48000
ON
ON
OFF
60000
Floor standing
SW1-7
SW1-8
Type define
Cassette
Convertible
Duct
OFF
OFF
ON ON
ON
OFF
OFF
ON
SW1-4
OFF
ON
ON
SW1-5
OFF
SW1-6
ON
OFF
room card unavailable
cool only
heat pump
room card available
With temperature compensate
No temperature compensate
12345678
ON
OFF
SW1
ON
OFF
1234
15

Table of Contents

Related product manuals