EasyManua.ls Logo

Haier Super Match AB24ES1ERA - Limitation Values on Pipe Instalaltion

Haier Super Match AB24ES1ERA
483 pages
To Next Page IconTo Next Page
To Next Page IconTo Next Page
To Previous Page IconTo Previous Page
To Previous Page IconTo Previous Page
Loading...
Super MatchSuper Match
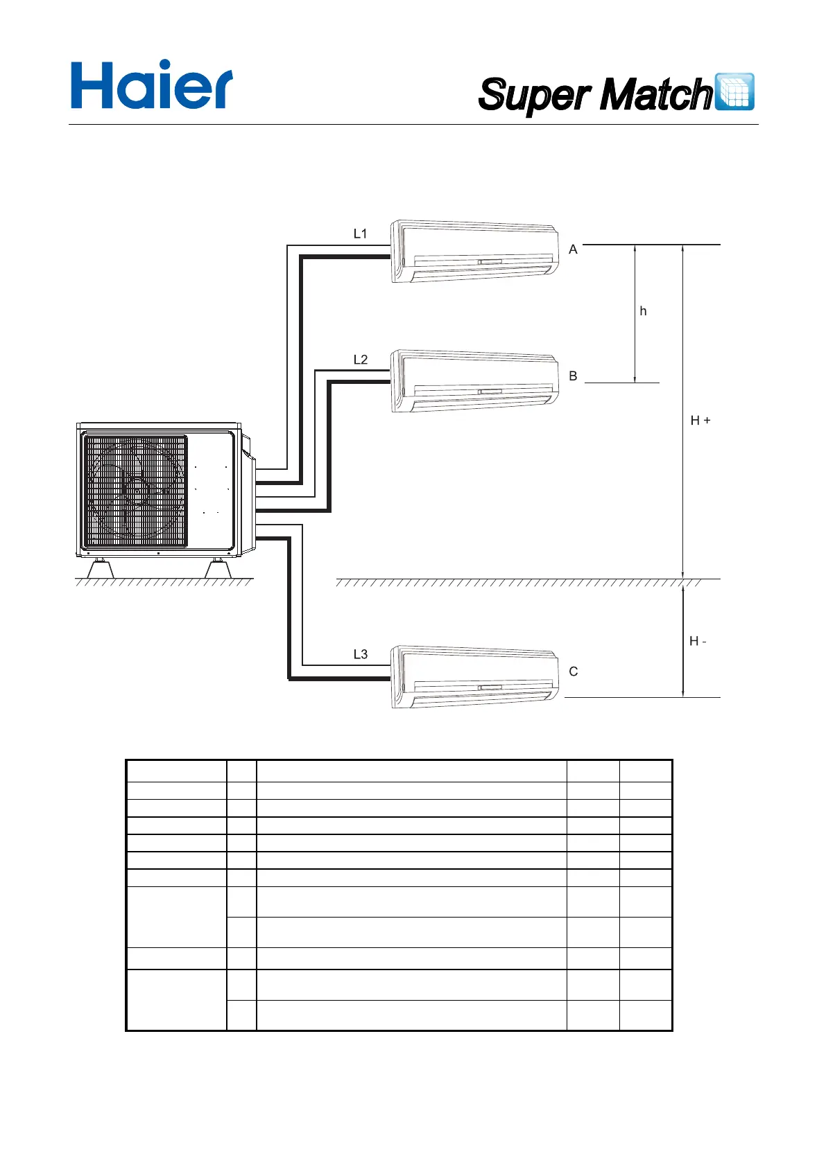
6. Limitation values on pipe installation
3U19FS2ERA 3U24GS2ERA
Item Unit Description Standard Maximum
A,B,C liquid pipe mm Size of the liquid side connection pipe φ6.35 /
A,B,C Gas pipe mm Size of the gas side connection pipe φ9.52 /
L1 (one way) m Max.piping length between IU and OU of the way
10 25
L2 (one way) m Max.piping length between IU and OU of the way
10 25
L3 (one way) m Max.piping length between IU and OU of the way
10 25
L1+L2+L3 m Total liquid piping length
30
3U19: 50
3U24: 60
m
Drop between every two indoor units when the location of
the outdoor unit is among indoor units
1 15
m
Drop between every two indoor units when the location of
the outdoor unit is at one side of indoor units
1 7.5
H+ m Drop between the outdoor unit and the indoor unit
5 15
m
Drop between the outdoor unit and the indoor unit when the
location of outdoor unit is among the indoor units
5 7.5
m
Drop between the outdoor unit and the indoor unit when the
location of outdoor unit is at one side of indoor units
5 15
h
H-
The piping length information, please refer the following table.
78

Table of Contents

Related product manuals