EasyManua.ls Logo

Hakko Electronics FR-811 - Page 22

Hakko Electronics FR-811
48 pages
Print Icon
To Next Page IconTo Next Page
To Next Page IconTo Next Page
To Previous Page IconTo Previous Page
To Previous Page IconTo Previous Page
Loading...
21
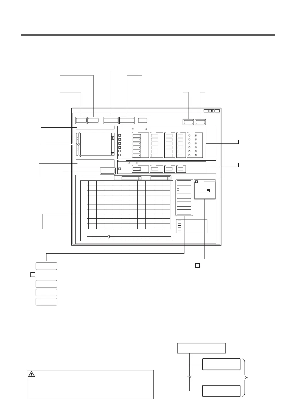
Create
new file
(P.22)
Input file
name (P.22)
Deleting selected
profile data
(P.23)
Reading demo mode(P.23)
Zone settings
(handpiece heater)
(P.23)
Upload to the
HAKKO FR-811
(P.23)
Download to the PC
(P.23)
Reading
existing files
(P.21)
Saving
File
Setting of
X / Y-axis
Setting and operation screen
A. Setting
csv capture
File Profile Access Graph Options Help
--
--
--
--
--
--
Ramp VacuumTemp Timer Air
TOP
BOTTOM
ZONE1
ZONE2
ZONE3
ZONE4
ZONE5
ZONE6
PREZONE
csv capture
Guide
100
200
300
400
500
600
10
10
10
10
10
10
50
50
50
50
50
50
Timer Type
Opened Closed
POWERTCMode
Span Time
File
Profile
Comment
℃/s
℃/s
℃/s
℃/s
℃/s
℃/s
s
s
s
s
s
s
%
%
%
%
%
%
--
Ramp Temp Power Timer
150 50 150
℃/s
%
s
ON
ON
ON
ON
ON
ON
OFF
OFF
OFF
OFF
OFF
OFF
Delete Demo
NewFile
Save
FIRMOpenFile PC->Station PC<-Station
1 (NO DATA)
2 (NO DATA)
3 (NO DATA)
4 (NO DATA)
5 (NO DATA)
6 (NO DATA)
7 (NO DATA)
8 (NO DATA)
9 (NO DATA)
10 (NO DATA)
11 (NO DATA)
FR-811 PCsoftware
X
0
0
100
200
300
400
500
600
700
800
900
1000
5 15 20 25 30 35 40 45 5010
[]
Refresh
Capture
Start
Stop
Graph
[sec]
Top Horizontal offset
(0.0 min)
0.0 sec
0-1000℃ 5s/ div
Sensor
TOP 0℃
0℃
0℃
PART
GUIDE TOP
GUIDE BOTTOM
BOARD
Select profile
(50) (P.22)
Input
comment
(P.22)
Displaying graph
(P.24)
Clearing graph (P.24)
Starting graph charting (P.24)
Stopping graph charting (P.24)
Saving graph image(BMP) (P.24)
Saving graph (CSV) (P.24)
Zone settings
(bottom heater)
(P.24)
Refresh
Start
Stop
Capture
Guide
Showing guide line
(P.24)
Sliding guide line
(P.24)
Top Horizonal offset
Reading existing files
Files stored on a PC can be opened. A single file can
contain up to a maximum of 50 profiles.
CAUTION
All currently open profile data on the PC will be
overwritten. Be careful not to delete profiles that
you need.
Max. 50
File data
Profile1
Profile50

Related product manuals