EasyManua.ls Logo

Hamworthy F70V - Size and Space Requirements

Hamworthy F70V
68 pages
Print Icon
To Next Page IconTo Next Page
To Next Page IconTo Next Page
To Previous Page IconTo Previous Page
To Previous Page IconTo Previous Page
Loading...
HAMWORTHY HEATING LTD
4
FLEET V series
500001213/G
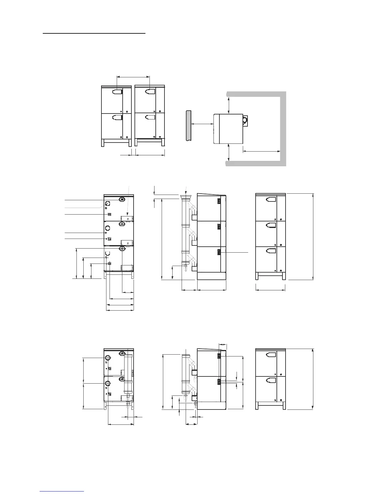
3.0 SIZE AND SPACE REQUIREMENTS
3.1 The Fleet boiler range has been designed to utilise minimum floor space, therefore it is important that the plant room
has sufficient ceiling height to allow for installation and connection to the flue system allowing for sufficient access at sides
and behind boiler for pipe work connections. See Figure 3.1
Figure 3.1.1 - Dimensions and clearances
750 cr
s
950 min
clearance
700
800 - F125/150V
650 - F40/100V
700
A
1435 2040
74crs
650 606 crs
36 3
51 4
713
1225
606crs614
1830
80
280
150
280
230
25
172
B
Flue Connection C
Front view Plan view
Rear view Side view
Fleet V Series - 3 high
Fleet V Series - 2 hig
h
Flue removed for clarity
Flow
Air inlet
Electric
Safety Valve
Gas
Return
274
610
140
570
638
650
50
400400

Table of Contents

Related product manuals