EasyManua.ls Logo

Harbor Freight Tools TITANIUM TIG200 - Wiring Diagram

Harbor Freight Tools TITANIUM TIG200
33 pages
Print Icon
To Next Page IconTo Next Page
To Next Page IconTo Next Page
To Previous Page IconTo Previous Page
To Previous Page IconTo Previous Page
Loading...
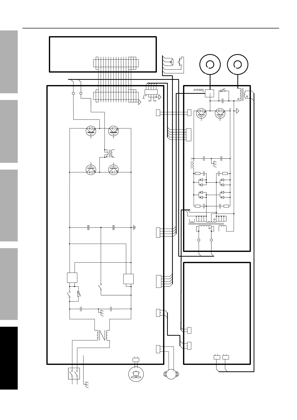
Page 30 <&(%$*4.8"4,7%H'*#$"&8#I%/7*,#*%4,77%JKLLLKLMMKNOPO1 Item 56825
?@<6AQ D@CEA6E@ER6S@?CR%T6GUCEV T6GUCEV%ACW?SETUP
T"("83%U",3(,5
1
3
-
4
+
2
BR02
1
3
-
4
+
2
BR01
1
2
3
GAS
1
2
3
CN0
Power Switch
Fan
7
5
6
8
4
1
Valve
1
2
HF2
1
2
HF1
1
2
3
4
LM
1
2
OUT
HFc
1
2
3
4
5
DR2
PWM3
18Vdp
Sensor
Output -
Output +
Torch Switch
1
2
3
4
5
CN3
1
2
CN2
DC+
DC-
55
55
v
B
A
2
1
2
1
4
5
13
7
15
3
2
9
12
10
8
16
1
11
F
22
20
+t
1
2
FAN1
1
2
3
HF
1
2
CN1
1
2
3
4
5
KEY
Foot Pedal
1
2
34
5
6
7
8
910
11
12
1314
1516
17
18
19
20
21
22
2324
2526
27
28
29
30
3132
33
34
CONT
12
34
56
78
910
1112
13
14
15
16
1718
19
20
21
22
2324
2526
27
28
29
30
3132
3334
CN1
High Frequency Board
Output Board
Primary Inverter Board
Control Board
EARTH

Related product manuals